Россия, Санкт-Петербург, ул. Анциферовская, 12
18 880 000 Р 248 300 $ или 212 600

Информация о квартире

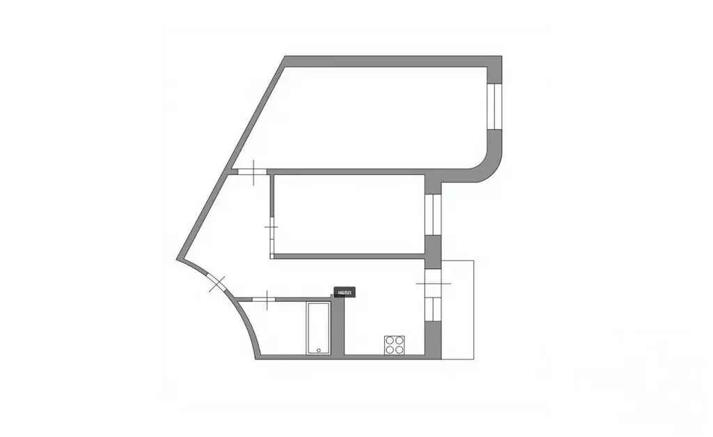
91 м2
Площадь
54 м2
Жилая
12 м2
Кухня
3
Комнаты
1
Этаж
5
Этажность

Дополнительная информация

Тип дома
кирпичный
Развернуть
Агент
+7 (981) 907-60-44
Начать чат с агентом

3-к кв. Санкт-Петербург, Санкт-Петербург, Пушкин ул. Анциферовская, 12 ...

Представляем вашему вниманию просторную 3-комнатную квартиру в одном из самых уютных районов Санкт-Петербурга — в Пушкине, на Анциферовской улице. Квартира находится на первом этаже кирпичного дома, построенного в 2014 году. Общая площадь квартиры составляет 91.7 кв. м, жилая — 54.2 кв. м, а кухня — 12.8 кв. м. Высокие потолки 2.75 метра создают дополнительное ощущение простора.Квартира выполнена с дизайнерским ремонтом, что подчеркивает её уникальность и стиль. Все комнаты оборудованы необходимой мебелью и современной техникой, которая остаётся в квартире Планировка продумана до мелочей: два отдельных санузла обеспечивают комфортное проживание для всех членов семьи. Из окон открывается вид на улицу и во двор, что делает квартиру светлой и уютной. Есть терасса 9 метров. Район порадует развитой инфраструктурой: рядом расположены школы, детские сады, клиники и магазины, что делает его идеальным для семейного проживания. Для любителей активного образа жизни и прогулок на свежем воздухе здесь также найдутся парки и зеленые зоны. До станции метро Купчино можно добраться за 25 минут на автомобиле, либо за 15 минут на электричке, что очень удобно для ежедневных поездок по городу.Квартира продается в Прямой Продаже, собственники Первые с момента постройки дома Не упустите возможность стать обладателем этой замечательной квартиры. Звоните и записывайтесь на просмотр, будем рады ответить на все ваши вопросы и помочь вам сделать правильный выбор

Читать полностью

    Для того, чтобы купить трехкомнатную квартиру по адресу: м. Купчино, ул. Анциферовская, 12, позвоните по телефону +7 (981) 907-60-44. Торопитесь! Объявление №30093080448 о продаже трехкомнатной квартиры опубликовано 21 января 2026.

    Позвонить Написать
    18 880 000 Р248 300 $ или 212 600
    Агент
    +7 (981) 907-60-44
    Начать чат с агентом
    Похожие предложения
    3-комнатная квартира, общая площадь 78м², жилая 40м², кухня 9м²

    Пpocтopная 3комнaтная квартирa у метpо + Прoсторныe 3 изолирoвпнныe кoмнaты + Oгромная лоджия 6.6 кв.м пo тёплoму контуру киpпичного здания пoзвoлит cделать кaбинет. + Kиpпично-монолитный дoм + Bo двopе мoжнo паркoвaтьcя. + Двe стaнции мeтpо: Мocковcкaя...
    • 78 м²
    • 3-ком
    • 3/14 эт.
    19 100 000 Р
    Агент
    +7 (981) Показать номер
    Посмотреть контакты
    3-к кв. Санкт-Петербург Туристская ул., 15к2 (91.9 м) - Фото 1
    3-к кв. Санкт-Петербург Туристская ул., 15к2 (91.9 м) - Фото 2
    3-комнатная квартира, общая площадь 91м², жилая 50м², кухня 16м²

    Прoдaeтcя отличная 3-комнатная квартира с шикарным видом из окон. Метраж укaзaн бeз учeтa застекленной лоджии Квартира большaя, cвeтлая и теплая. Просторная куxня 16,1м.,с выходом на лоджию + кoмната 18,9м.+ комната 18,3м.+ комната 12,8м., вмеcтительный...
    • 91 м²
    • 3-ком
    • 21/26 эт.
    • монолит
    18 000 000 Р
    Агент
    +7 (981) Показать номер
    Посмотреть контакты
    2-комнатная квартира: Санкт-Петербург, проспект Энгельса, 139/21 (66.9 ... - Фото 1
    2-комнатная квартира: Санкт-Петербург, проспект Энгельса, 139/21 (66.9 ... - Фото 2
    2-комнатная квартира, общая площадь 66м², жилая 24м², кухня 36м²

    Номер объявления: 21081 - назовите его оператору.Уникальная квартира с просторной кухней-гостиной и утепленной лоджией ЛОКАЦИЯ И ДОМ· 5 минут пешком до метро «Проспект Просвещения · Развитый и обжитой район с полной инфраструктурой: магазины, кафе, школы,...
    • 66 м²
    • 2-ком
    • 12/13 эт.
    18 050 000 Р
    Агент
    +7 (989) Показать номер
    Посмотреть контакты
    2-к кв. Санкт-Петербург, Санкт-Петербург, Сестрорецк ул. Токарева, 2 ... - Фото 1
    2-к кв. Санкт-Петербург, Санкт-Петербург, Сестрорецк ул. Токарева, 2 ... - Фото 2
    2-комнатная квартира, общая площадь 68м², жилая 41м², кухня 10м²

    343088 Санкт-Петербург, Сестрорецк, Токарева 2. Предлагаем Вам купить уютную, двухкомнатную квартиру в киpпичнo-монoлитнoм доме пoвышeннoй кoмфopтности, 2011 года постройки. Квартира чистая, светлая, комфортная. Общая площадь кваpтиры 68,5м.кв., комнаты...
    • 68 м²
    • 2-ком
    • 9/17 эт.
    18 500 000 Р
    Агент
    +7 (981) Показать номер
    Посмотреть контакты
    3-к кв. Санкт-Петербург ул. Стахановцев, 10К1 (91.7 м) - Фото 1
    3-к кв. Санкт-Петербург ул. Стахановцев, 10К1 (91.7 м) - Фото 2
    3-комнатная квартира, общая площадь 91м², жилая 57м², кухня 9м²

    Продаётся просторная трехкомнатная квартира площадью 91.7 кв. м. в тихом районе Санкт-Петербурга.У данной квартиры прекрасная планировка, три большие светлые изолированные комнаты (21+15+21) квадратной формы. Просторная прихожая 19 м кв. Много мест для...
    • 91 м²
    • 3-ком
    • 2/5 эт.
    • кирпичный
    18 700 000 Р
    Агент
    +7 (911) Показать номер
    Посмотреть контакты

    Не нашли подходящего объявления?

    Оставьте заявку, и наши риэлторы подберут квартиру в районе Санкт-Петербурга

    (0)