13 740 000 Р 176 500 $ или 151 800

Информация о квартире

50 м2
Площадь
13 м2
Жилая
18 м2
Кухня
1
Комната
3
Этаж
4
Этажность
Развернуть
Агент
+7 (988) 471-24-19
Начать чат с агентом

1-к кв. Санкт-Петербург, Санкт-Петербург, Сестрорецк Авиационная ул., ...

Срочно продаётся 2Е-квартира с одной спальней общей площадью 50.15 м2. в Курортном районе Санкт-Петербурга. Квартира расположена в малоэтажном комплексе бизнес класса в Сестрорецке. Идеальное место для комфортной семейной жизни в окружении зелёных массивов.О квартире:- Квартира находится на 3 этаже 4-этажного дома- Общая площадь квартиры 50.15 м2- Светлая спальня 13.65 м2- Просторная кухня-гостиная 18.00 м2- Совмещённый санузел 5.29 м2- Холл 7.11 м2- Балкон 1.54 м2PRO дом и район:- Территория комплекса закрытая, ведется круглосуточная охрана и видеонаблюдение. Дворы образуют приватные пространства, свободные от машин и доступа посторонних.- В составе комплекса запроектированы 4 детских сада на 810 мест и 2 школы на 1650 мест. - На территории предусмотрены прогулочные зоны с местами для отдыха, также имеется зона выгула и тренировки собак. Дома соединяются сетью велодорожек и благоустроенных прогулочных маршрутов. Для каждого сезона предусмотрен свой ландшафтный дизайн и растительность, в центре комплекса спроектирован большой парк.- Для автовладельцев оборудован многоуровневый паркинг и автостоянка, предусмотрены станции для заряда электромобилей и парковки велосипедов.- До метро Беговая — 5 минут езды на автомобиле. В пешей доступности расположены продовольственные магазины, медицинские учреждения, рестораны и кафе.Прямая продажа, один правообладатель.Не упустите свой шанс Квартира в наличии, звоните прямо сейчас

Читать полностью

    Для того, чтобы купить однокомнатную квартиру по адресу: м. Беговая, ул. Авиационная, 5к7, позвоните по телефону +7 (988) 471-24-19. Торопитесь! Объявление №30093040496 о продаже однокомнатной квартиры опубликовано Вчера.

    Позвонить Написать
    13 740 000 Р176 500 $ или 151 800
    Агент
    +7 (988) 471-24-19
    Начать чат с агентом
    Похожие предложения
    1-к кв. Санкт-Петербург, Санкт-Петербург, Сестрорецк Авиационная ул., ... - Фото 1
    1-к кв. Санкт-Петербург, Санкт-Петербург, Сестрорецк Авиационная ул., ... - Фото 2
    1-комнатная квартира, общая площадь 50м², жилая 13м², кухня 18м²

    Срочно продаётся 2Е-квартира с одной спальней общей площадью 50.15 м2. в Курортном районе Санкт-Петербурга. Квартира расположена в малоэтажном комплексе бизнес класса в Сестрорецке. Идеальное место для комфортной семейной жизни в окружении зелёных массивов.О...
    • 50 м²
    • 1-ком
    • 4/4 эт.
    13 600 000 Р
    Агент
    +7 (988) Показать номер
    Посмотреть контакты
    1-к кв. Санкт-Петербург, Санкт-Петербург, Сестрорецк Авиационная ул., ... - Фото 1
    1-к кв. Санкт-Петербург, Санкт-Петербург, Сестрорецк Авиационная ул., ... - Фото 2
    1-комнатная квартира, общая площадь 48м², жилая 14м², кухня 15м²

    Срочно продаётся 2Е-квартира с одной спальней общей площадью 48,25 м2. в Курортном районе Санкт-Петербурга. Квартира расположена в малоэтажном комплексе бизнес класса в Сестрорецке. Идеальное место для комфортной семейной жизни в окружении зелёных массивов.О...
    • 48 м²
    • 1-ком
    • 3/4 эт.
    13 940 000 Р
    Агент
    +7 (988) Показать номер
    Посмотреть контакты
    1-к кв. Санкт-Петербург, Санкт-Петербург, Сестрорецк Авиационная ул., ... - Фото 1
    1-к кв. Санкт-Петербург, Санкт-Петербург, Сестрорецк Авиационная ул., ... - Фото 2
    1-комнатная квартира, общая площадь 43м², кухня 15м²

    Продается уютная однокомнатная квартира в новом кирпичном доме 2025 года постройки. Общая площадь квартиры составляет 43.86 кв. м, из которых просторная кухня занимает 15.05 кв. м. Квартира расположена на 3 этаже 4-этажного дома. Высота потолков — 2.75...
    • 43 м²
    • 1-ком
    • 3/4 эт.
    • кирпичный
    13 000 000 Р
    Агент
    +7 (981) Показать номер
    Посмотреть контакты
    2-к кв. Санкт-Петербург, Санкт-Петербург, Сестрорецк Авиационная ул., ... - Фото 1
    2-к кв. Санкт-Петербург, Санкт-Петербург, Сестрорецк Авиационная ул., ... - Фото 2
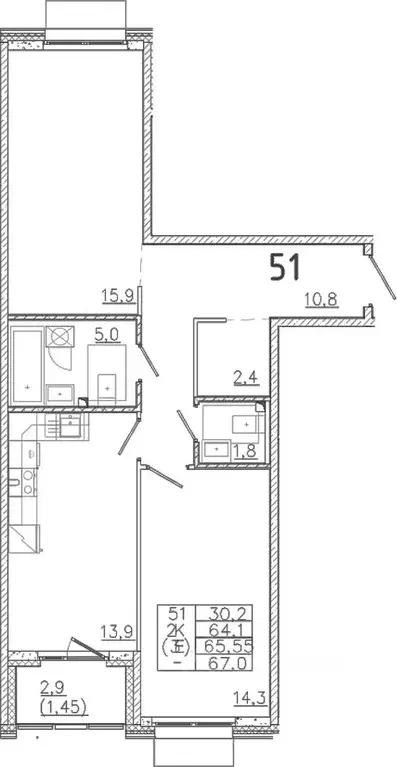
    2-комнатная квартира, общая площадь 65м², кухня 13м²

    Продается уютная 2-комнатная квартира в современном кирпичном доме 2024 года постройки. Общая площадь квартиры составляет 65,55 кв. м, а просторная кухня — 13,9 кв. м. Квартира расположена на 3 этаже 4-этажного дома, высота потолков — 2,75 метра. Окна...
    • 65 м²
    • 2-ком
    • 3/4 эт.
    • кирпичный
    14 900 000 Р
    Агент
    +7 (981) Показать номер
    Посмотреть контакты
    2-к кв. Санкт-Петербург Школьная ул., 128к1 (54.9 м) - Фото 1
    2-к кв. Санкт-Петербург Школьная ул., 128к1 (54.9 м) - Фото 2
    2-комнатная квартира, общая площадь 54м², жилая 25м², кухня 23м²

    ЕВРО- ДВУШКА плюс кухня-столовая Прямая Продажа Двухкомнатная квартира внутри квартала у Метро Беговая ( 5 мин пешком )--8 этаж. Комнаты изолированные (см. экспликацию помещений): N5-Кухня-столовая (23,6м2 )+ N6-комната-спальня с застекленной лоджией(13,5м2)...
    • 54 м²
    • 2-ком
    • 8/10 эт.
    • блочный
    14 950 000 Р
    Агент
    +7 (981) Показать номер
    Посмотреть контакты

    Не нашли подходящего объявления?

    Оставьте заявку, и наши риэлторы подберут квартиру в районе Санкт-Петербурга

    (0)