6 100 000 Р 77 680 $ или 66 440

Информация о квартире

20 м2
Площадь
студия
Комнат
18
Этаж
24
Этажность
Развернуть
Агент
+7 (931) 632-21-68
Начать чат с агентом

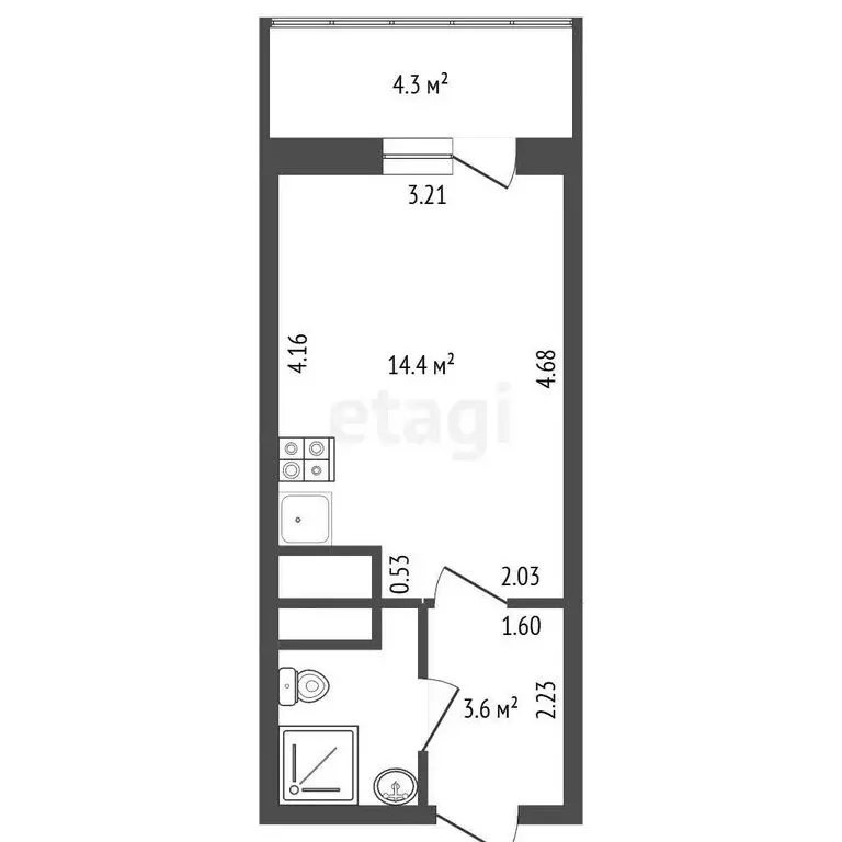
Квартира-студия: Санкт-Петербург, Плесецкая улица, 10 (20.9 м)

Продается квартира-студия в современном жилом комплексе «Полис на Плесецкой улице, 10. Объект характеризуется правильной квадратной планировкой, что обеспечивает рациональное использование каждого метра полезной площади. Ключевым преимуществом является панорамный вид на Лахтинский разлив и парк, создающий ощущение простора и наполняющий пространство светом. В квартире выполнен качественный ремонт с практичными материалами, установлена вся необходимая бытовая техника и мебель, которая остается новому владельцу. Дополнительный комфорт обеспечивает система электрического теплого пола и просторный застекленный балкон, который можно использовать как зону для отдыха или хранения. Инфраструктура комплекса и района полностью сформирована: в шаговой доступности расположены детские сады, школы, аптеки, супермаркеты и кафе. Остановки общественного транспорта находятся в пяти минутах ходьбы, обеспечивая быструю связь с центром города, а удобный выезд на ЗСД и КАД открывает отличную транспортную доступность для автомобилистов. В самом доме функционируют четыре лифта — два пассажирских и два грузовых, что гарантирует отсутствие очередей и удобство при переезде. Квартира продается одним взрослым собственником, без обременений, материнский капитал не использовался. Это готовое решение для комфортного проживания, инвестиции или сдачи в аренду в перспективном и динамично развивающемся районе.Звоните и записывайтесь на показ Для клиентов нашей компании помощь в одобрении ипотеки со сниженными ставками, а также юридическое сопровождение сделки.Номер в базе:. Код пользователя: 192675

Читать полностью

    Для того, чтобы купить студию по адресу: м. Комендантский проспект, Плесецкая улица, 10, позвоните по телефону +7 (931) 632-21-68. Торопитесь! Объявление №30092967001 о продаже студии опубликовано Вчера.

    Позвонить Написать
    6 100 000 Р77 680 $ или 66 440
    Агент
    +7 (931) 632-21-68
    Начать чат с агентом
    Похожие предложения
    Студия Санкт-Петербург аллея Арцеуловская, 21 (24.3 м) - Фото 1
    Студия Санкт-Петербург аллея Арцеуловская, 21 (24.3 м) - Фото 2
    студия, общая площадь 24м², жилая 17м²

    Продается уютная и светлая студия в ж.к. Чистое Небо Комплекс находится в престижном Приморском районе закрытая территория с детской площадкой и зонами отдыха. Транспортная доступность до метро Комендантский пр.Удобная планировка студии, можно отделить...
    • 24 м²
    • студия-ком
    • 17/27 эт.
    6 100 000 Р
    Агент
    +7 (911) Показать номер
    Посмотреть контакты
    Студия Санкт-Петербург ул. Плесецкая, 20к1 (24.5 м) - Фото 1
    Студия Санкт-Петербург ул. Плесецкая, 20к1 (24.5 м) - Фото 2
    студия, общая площадь 24м², жилая 14м²

    1705255 Уютная и ухоженная, теплая и комфортная, широкая и тихая студия ЖК от компании SetlGroup находится в Приморском районе города, создан как пешеходный, комфортный и просторный квартал, где всё необходимое рядом с домом: магазины, банки, школы,...
    • 24 м²
    • студия-ком
    • 8/25 эт.
    6 200 000 Р
    Агент
    +7 (911) Показать номер
    Посмотреть контакты
    Студия Санкт-Петербург просп. Авиаконструкторов, 63 (27.0 м) - Фото 1
    Студия Санкт-Петербург просп. Авиаконструкторов, 63 (27.0 м) - Фото 2
    студия, общая площадь 27м², жилая 18м²

    За объект уже внесли авансСтудия для серьёзного парня 27,3 м, 10 этаж, новый дом 2023 года- Строгий стиль, минимум пафоса — ремонт в мужском духе, заходи и живи.- Окна во двор — никакого городского шума, только тишина и концентрация.- Совмещённый санузел,...
    • 27 м²
    • студия-ком
    • 10/10 эт.
    • монолит
    6 200 000 Р
    Агент
    +7 (981) Показать номер
    Посмотреть контакты
    Студия Санкт-Петербург Комендантский просп., 69 (23.6 м) - Фото 1
    Студия Санкт-Петербург Комендантский просп., 69 (23.6 м) - Фото 2
    студия, общая площадь 23м², жилая 18м²

    ID: 1915724Продается просторная квартира в ЖК Чистое небо .Общая площадь квартиры с учетом площади балкона 26,9 кв.м.Отличная планировка квартиры: широкая комната 18 кв.м., застекленная просторная лоджия 2,6 кв.м., большой санузел. В квартире после ремонта...
    • 23 м²
    • студия-ком
    • 18/27 эт.
    6 000 000 Р
    Агент
    +7 (911) Показать номер
    Посмотреть контакты
    Студия Санкт-Петербург аллея Арцеуловская, 23к1 (25.5 м) - Фото 1
    Студия Санкт-Петербург аллея Арцеуловская, 23к1 (25.5 м) - Фото 2
    студия, общая площадь 25м², жилая 18м²

    Арт.Предлагается к продаже светлая квартира-студия площадью 25.5 квадратных метров на 18 этаже монолитного дома новой постройки (2017 год), расположенного в зеленом и спокойном районе Санкт-Петербурга - Коломяги, на Арцеуловской аллее, дом 23к1. комната...
    • 25 м²
    • студия-ком
    • 18/21 эт.
    • монолит
    6 100 000 Р
    Агент
    +7 (911) Показать номер
    Посмотреть контакты

    Не нашли подходящего объявления?

    Оставьте заявку, и наши риэлторы подберут квартиру в районе Санкт-Петербурга

    (0)