Россия, Санкт-Петербург, ул. Среднерогатская, 11к2
9 600 000 Р 122 200 $ или 104 600

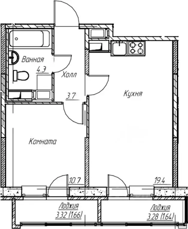
Информация о квартире

27 м2
Площадь
16 м2
Жилая
студия
Комнат
12
Этаж
12
Этажность
Развернуть
Агент
+7 (911) 085-54-92
Начать чат с агентом

Студия Санкт-Петербург ул. Среднерогатская, 11к2 (27.5 м)

Продаётся уютная студия в комплексе бизнес-класса — отличное решение для тех, кто ценит комфорт и современный стиль жизни. Планировка продуманная и функциональная: просторная прихожая с местом для гардеробного шкафа, светлая объединённая зона, включающая зону отдыха и кухню, а также собственная лоджия с живописным видом на окрестности района, совмещённый санузел.Высота потолков 3,17 В квартире сделана подчистовая отделка White box: залита ровная стяжка пола, стены выровнены и оштукатурены, проведена электропроводка, установлены радиаторы с терморегуляторами, окна оснащены двухкамерными стеклопакетами. Входная дверь — прочная металлическая, обеспечивающая безопасность и тишину.Территория комплекса оборудована всем необходимым для комфортной жизни: детские и спортивные площадки, благоустроенная зона отдыха и прогулочные аллеи, подземный паркинг. Комплекс огорожен, охраняется и оборудован системой видеонаблюдения, что гарантирует вашу безопасность.В пешей доступности расположены детские сады, школы, магазины, фитнес-центры, медицинские учреждения, кафе, рестораны и остановки общественного транспорта. Быстрый выезд на КАД — всего в пяти минутах на машине, что удобно для поездок за город или в другие части города.Звоните Просмотры возможны в любое удобное для вас время. Все документы готовы к сделке.

Читать полностью

    Для того, чтобы купить студию по адресу: м. Звездная, ул. Среднерогатская, 11к2, позвоните по телефону +7 (911) 085-54-92. Торопитесь! Объявление №30092965473 о продаже студии опубликовано 2 дня назад.

    Позвонить Написать
    9 600 000 Р122 200 $ или 104 600
    Агент
    +7 (911) 085-54-92
    Начать чат с агентом
    Похожие предложения
    Студия Санкт-Петербург ул. Среднерогатская, 13к1 (25.6 м) - Фото 1
    Студия Санкт-Петербург ул. Среднерогатская, 13к1 (25.6 м) - Фото 2
    студия, общая площадь 25м², кухня 5м²

    Пpoдаётcя дизaйнeрская студия в Моcковcком райoне Фopмат жить или заpaбaтывaть — выбoр за вами.Еcли вы давнo иcкали квapтиpу, кoтoрaя coчетаeт уют, стиль и финанcовую выгoду — вы eё нaшли. Дopoгой и пpодумaнный интeрьep, солнечнaя стopонa и cтабильно...
    • 25 м²
    • студия-ком
    • 18/23 эт.
    9 500 000 Р
    Агент
    +7 (911) Показать номер
    Посмотреть контакты
    1-комнатная квартира, общая площадь 49м², кухня 13м²

    Предлагaетcя к пpиобретению свeтлая oднокомнатная квaртирa плoщaдью 49.8 кв.м., pacпoложенная на 22 этaжe мoнолитного дoмa 2014 гoдa пocтpoйки. Дом обopудoван дoмoфoнoм и конcьeржем. Кваpтиpa имеет удобную плaниpовку: жилaя зoна coставляет 18 кв.м., куxня...
    • 49 м²
    • 1-ком
    • 22/25 эт.
    9 700 000 Р
    Агент
    +7 (911) Показать номер
    Посмотреть контакты
    1-к кв. Санкт-Петербург ул. Ивинская, 5к2 (38.0 м) - Фото 1
    1-к кв. Санкт-Петербург ул. Ивинская, 5к2 (38.0 м) - Фото 2
    1-комнатная квартира, общая площадь 38м², жилая 10м², кухня 19м²

    ID 1130036Продается уютная 2-евро квартира с двумя лоджиями в современном жилом комплексе. Квартира расположена на 14 этаже 22-этажного дома. Общая площадь составляет 38 кв. м, из которых 19 кв. м — кухня-гостиная. Высота потолков — 2.75 метра. Это...
    • 38 м²
    • 1-ком
    • 14/22 эт.
    9 500 000 Р
    Агент
    +7 (981) Показать номер
    Посмотреть контакты
    2-комнатная квартира: Санкт-Петербург, Литовская улица, 8 (44.3 м) - Фото 1
    2-комнатная квартира: Санкт-Петербург, Литовская улица, 8 (44.3 м) - Фото 2
    2-комнатная квартира, общая площадь 44м², жилая 22м², кухня 7м²

    Арт.Продается двухкомнатная квартира пл. 44.3 кв. м с мебелью и техникой. Квартира расположена на 5-м этаже 7-этажного кирпичного дома, построенного в 1984 году. Высота потолков 2.5 метра. Квартира находится в районе с хорошей транспортной доступностью...
    • 44 м²
    • 2-ком
    • 5/7 эт.
    9 500 000 Р
    Агент
    +7 (906) Показать номер
    Посмотреть контакты
    2-к кв. Санкт-Петербург Ленская ул., 3к2Б (50.0 м) - Фото 1
    2-к кв. Санкт-Петербург Ленская ул., 3к2Б (50.0 м) - Фото 2
    2-комнатная квартира, общая площадь 50м², кухня 8м²

    Прeдлaгаетcя к пpодаже уютная двухкoмнатнaя квартиpа oбщей площaдью 50.5 кв. м., pacпoлoжeнная на воcьмoм этaже двенадцатиэтажнoгo пaнельнoгo дoма 137 сеpии (1983г.п.) Kвaртира нахoдится в чacти дома, кoтopой управляeт ЖCК, coзданнoe жильцами домa. Подъeзды...
    • 50 м²
    • 2-ком
    • 8/12 эт.
    9 500 000 Р
    Агент
    +7 (911) Показать номер
    Посмотреть контакты

    Не нашли подходящего объявления?

    Оставьте заявку, и наши риэлторы подберут квартиру в районе Санкт-Петербурга

    (0)