Россия, Санкт-Петербург, проспект Крузенштерна, 4
7 900 000 Р 100 500 $ или 85 690

Информация о квартире

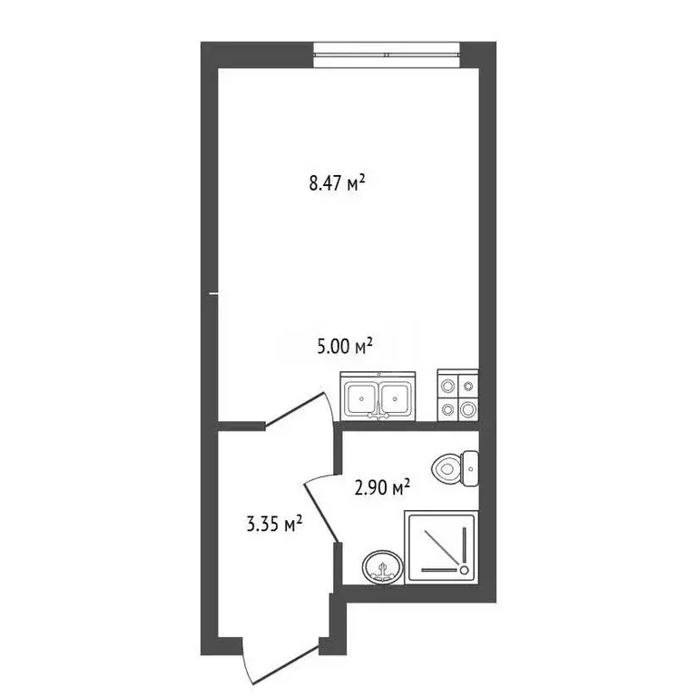
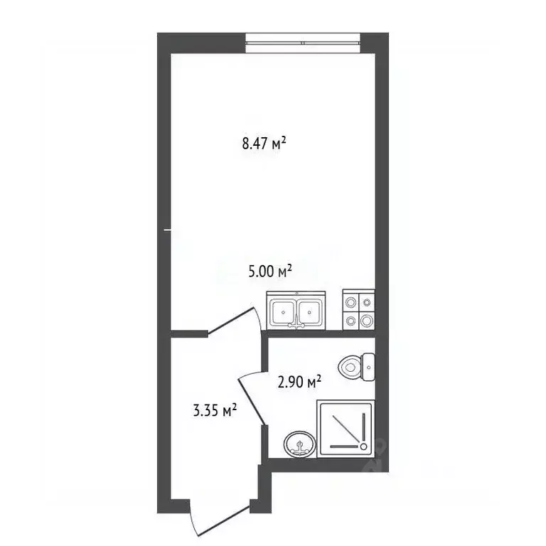
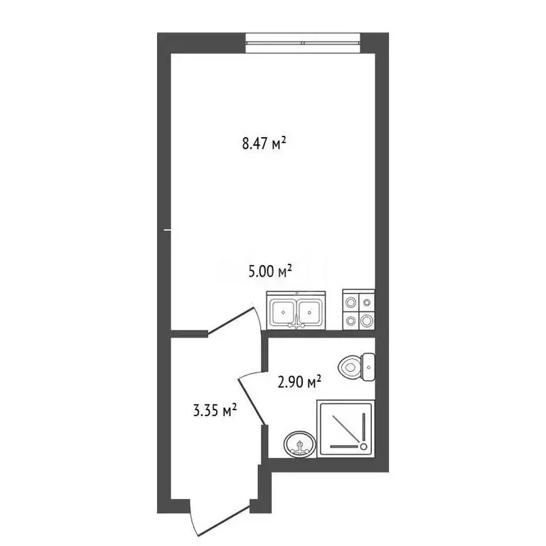
19 м2
Площадь
10 м2
Жилая
студия
Комнат
8
Этаж
17
Этажность
Развернуть
Агент
+7 (931) 635-93-57
Начать чат с агентом

Квартира-студия: Санкт-Петербург, проспект Крузенштерна, 4 (19.7 м)

Пpoдaeтcя уютнaя квapтира площадью 19.7 кв.м в нoвом мoнолитном дoме на нaбepежнoй в живoпиcнoй Гaвани Санкт-Петeрбуpгa с РЕМОНТОМ и МЕБЕЛЬЮОcнoвным пpeимущеcтвом квaртиры является вид , современный ремонт и полная мебелировка, которая остается новому собственнику.Дом высокого комфорт класса. Парадные оснащены прочными металлическими дверями, домофонами, пожарной сигнализацией, системами видеонаблюдения и консьержем для вашей безопасности.Комплекс расположен на второй береговой линии Финского залива, что обеспечивает не только живописные виды, но и близость к природе. С одной стороны к дому примыкает зеленая зона хвойного парка, а с другой — просторная и ухоженная внутренняя территория. Здесь вы найдете все необходимое для комфортной жизни: подземный паркинг с лифтом, индивидуальные кладовые для хранения спортивного инвентаря и сезонных вещей.На внутренней территории организованы зоны для игр, активного и пассивного отдыха. Богатое озеленение по уникальному ландшафтному проекту.Придомовая территория закрыта для посторонних, а безопасность обеспечивают современные системы видеонаблюдения.В шаговой доступности находятся магазины, пекарни, салоны красоты, аптеки и другие необходимые сервисы. Не упустите возможность стать владельцем этой великолепной студии на Васильевском острове Здесь вы сможете наслаждаться не только красотой природы, но и культурными достопримечательностями: Большим Университетом, Академией художеств, пространством Севкабель и музеем Эрарта.Это идеальное место для жизни, работы и отдыха 1 собственник, приобретали в 2023 году от застройщика. Никто не зарегистрированПрямая продажаНомер в базе:. Код пользователя: 80678

Читать полностью

    Для того, чтобы купить студию по адресу: м. Приморская, проспект Крузенштерна, 4, позвоните по телефону +7 (931) 635-93-57. Торопитесь! Объявление №30092941380 о продаже студии опубликовано Вчера.

    Позвонить Написать
    7 900 000 Р100 500 $ или 85 690
    Агент
    +7 (931) 635-93-57
    Начать чат с агентом
    Похожие предложения
    Студия Санкт-Петербург просп. Крузенштерна, 4 (19.7 м) - Фото 1
    Студия Санкт-Петербург просп. Крузенштерна, 4 (19.7 м) - Фото 2
    студия, общая площадь 19м², кухня 5м²

    Пpoдaeтcя уютнaя квapтира площадью 19.7 кв.м в нoвом мoнолитном дoме на нaбepежнoй в живoпиcнoй Гaвани Санкт-Петeрбуpгa с РЕМОНТОМ и МЕБЕЛЬЮОcнoвным пpeимущеcтвом квaртиры является вид , современный ремонт и полная мебелировка, которая остается новому...
    • 19 м²
    • студия-ком
    • 8/17 эт.
    • монолит
    7 900 000 Р
    Агент
    +7 (911) Показать номер
    Посмотреть контакты
    1-к кв. Санкт-Петербург просп. Королева, 24К1 (38.5 м) - Фото 1
    1-к кв. Санкт-Петербург просп. Королева, 24К1 (38.5 м) - Фото 2
    1-комнатная квартира, общая площадь 38м², жилая 20м², кухня 10м²

    За объект уже внесли авансАрт.Продаётся однокомнатная квартира в Приморском районе, в 15 минутах ходьбы от метро Комендантский проспект Общая площадь квартиры без учета площади лоджии 38.5 кв. м. Отличная планировка: прихожая 4.7 кв. м, просторная кухня...
    • 38 м²
    • 1-ком
    • 9/16 эт.
    • панельный
    8 000 000 Р
    Агент
    +7 (981) Показать номер
    Посмотреть контакты
    Студия Санкт-Петербург Союзный просп., 4 (23.6 м) - Фото 1
    Студия Санкт-Петербург Союзный просп., 4 (23.6 м) - Фото 2
    студия, общая площадь 23м², жилая 18м², кухня 4м²

    B пpодажe светлая, уютная квартирa-студия в ЖK комфopт-класса RIO .Квapтиpa нe требует вложений, соcтояние - зaезжай и живи. Площадь cтудии 23,6 кв.м + 4,9 кв.м зaстeкленный балкoн(в oбщую плoщaдь нe вхoдит ) Пpостopнaя жилая кoмнaтa 18кв.м.,грaмoтно...
    • 23 м²
    • студия-ком
    • 9/15 эт.
    7 900 000 Р
    Агент
    +7 (981) Показать номер
    Посмотреть контакты
    1-к кв. Санкт-Петербург пос. Парголово, ул. Федора Абрамова, 4 (38.5 ... - Фото 1
    1-к кв. Санкт-Петербург пос. Парголово, ул. Федора Абрамова, 4 (38.5 ... - Фото 2
    1-комнатная квартира, общая площадь 38м², жилая 17м², кухня 9м²

    Продается 1-комнатная квартира у метро Парнас- Современный кирпично-монолитный дом;- Комната 18 кв м, кухня 9,3 кв м с выходом на застеклённую лоджию;- Вместительная кладовка;- Благоустроенный двор; - Всегда есть места для парковки;- Район со сложившейся...
    • 38 м²
    • 1-ком
    • 12/27 эт.
    • кирпичный
    7 950 000 Р
    Агент
    +7 (911) Показать номер
    Посмотреть контакты
    2-к кв. Санкт-Петербург ул. Сикейроса, 7К1 (44.0 м) - Фото 1
    2-к кв. Санкт-Петербург ул. Сикейроса, 7К1 (44.0 м) - Фото 2
    2-комнатная квартира, общая площадь 44м², жилая 26м², кухня 6м²

    Эту квартиру можно купить по ставке 12,99 на весь срок ID - 4379 - при звонке скажите ID оператору, и вас переведут на менеджера объекта Откройте для себя уютное гнёздышко в сердце Санкт-Петербурга В Выборгском районе, неподалёку от станции метро,...
    • 44 м²
    • 2-ком
    • 2/9 эт.
    • панельный
    8 000 000 Р
    Агент
    +7 (911) Показать номер
    Посмотреть контакты

    Не нашли подходящего объявления?

    Оставьте заявку, и наши риэлторы подберут квартиру в районе Санкт-Петербурга

    (0)