Россия, Санкт-Петербург, Сестрорецк, Авиационная улица, 5к2
22 920 000 Р 294 500 $ или 253 200

Информация о квартире

98 м2
Площадь
42 м2
Жилая
16 м2
Кухня
3
Комнаты
3
Этаж
4
Этажность
Развернуть
Агент
+7 (963) 319-14-81
Начать чат с агентом

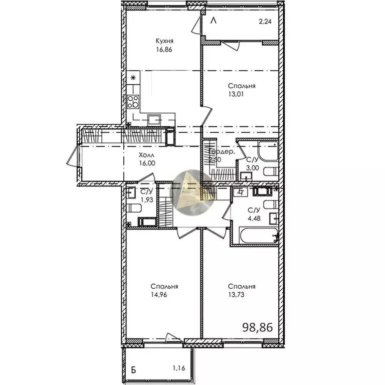
3-комнатная квартира: Сестрорецк, Авиационная улица, 5к2 (98.86 м)

Срочно продаётся 4Е-квартира с тремя спальнями общей площадью 98.86 м2. в Курортном районе Санкт-Петербурга. Квартира расположена в малоэтажном комплексе бизнес класса в Сестрорецке. Идеальное место для комфортной семейной жизни в окружении зелёных массивов.О квартире:- Квартира находится на 3 этаже 4-этажного дома- Общая площадь квартиры 98.86 м2- Мастер-спальня 13.01 м2 с отдельным санузлом 3.00 и гардеробной 2.50 м2- Детские комнаты 14.96 и 13.73 м2- Просторная кухня-гостиная 16.86 м2- Раздельный санузел 4.48 + 1.93 м2- Балкон 1.16 м2- Лоджия 2.24 м2PRO дом и район:- Территория комплекса закрытая, ведется круглосуточная охрана и видеонаблюдение. Дворы образуют приватные пространства, свободные от машин и доступа посторонних.- В составе комплекса запроектированы 4 детских сада на 810 мест и 2 школы на 1650 мест. - На территории предусмотрены прогулочные зоны с местами для отдыха, также имеется зона выгула и тренировки собак. Дома соединяются сетью велодорожек и благоустроенных прогулочных маршрутов. Для каждого сезона предусмотрен свой ландшафтный дизайн и растительность, в центре комплекса спроектирован большой парк.- Для автовладельцев оборудован многоуровневый паркинг и автостоянка, предусмотрены станции для заряда электромобилей и парковки велосипедов.- До метро Беговая — 5 минут езды на автомобиле. В пешей доступности расположены продовольственные магазины, медицинские учреждения, рестораны и кафе.Прямая продажа, один правообладатель.Не упустите свой шанс Квартира в наличии, звоните прямо сейчас

Читать полностью

    Для того, чтобы купить трехкомнатную квартиру по адресу: м. Беговая, Сестрорецк, Авиационная улица, 5к2, позвоните по телефону +7 (963) 319-14-81. Торопитесь! Объявление №30092940425 о продаже трехкомнатной квартиры опубликовано 14 января 2026.

    Позвонить Написать
    22 920 000 Р294 500 $ или 253 200
    Агент
    +7 (963) 319-14-81
    Начать чат с агентом
    Похожие предложения
    3-комнатная квартира: Санкт-Петербург, Приморский проспект, 141к2 ... - Фото 1
    3-комнатная квартира: Санкт-Петербург, Приморский проспект, 141к2 ... - Фото 2
    3-комнатная квартира, общая площадь 79м², жилая 47м², кухня 14м²

    Код объекта: 1996711.Идеальная семейная квартира на Приморском проспекте Расположение и инфраструктураКвартира по адресу Приморский проспект, 141к2 в Санкт-Петербурге — это идеальное сочетание комфорта и доступности. Приморский район славится своей развитой...
    • 79 м²
    • 3-ком
    • 7/12 эт.
    22 000 000 Р
    Агент
    +7 (905) Показать номер
    Посмотреть контакты
    2-комнатная квартира: Сестрорецк, улица Инструментальщиков, 18 (60.29 ... - Фото 1
    2-комнатная квартира: Сестрорецк, улица Инструментальщиков, 18 (60.29 ... - Фото 2
    2-комнатная квартира, общая площадь 60м², жилая 24м², кухня 19м²

    Срочно продаётся 3Е квартира общей площадью 60,29 м2. в Курортном районе Санкт-Петербурга. Квартира в малоэтажном доме бизнес-класса на берегу Невской губы. Идеальное место для комфортной городской жизни в живописном окружении О квартире:- Квартира находится...
    • 60 м²
    • 2-ком
    • 3/5 эт.
    22 800 000 Р
    Агент
    +7 (963) Показать номер
    Посмотреть контакты
    2-к кв. Санкт-Петербург Приморский просп., 137к2 (73.3 м) - Фото 1
    2-к кв. Санкт-Петербург Приморский просп., 137к2 (73.3 м) - Фото 2
    2-комнатная квартира, общая площадь 73м², жилая 37м², кухня 16м²

    1-92076 В ЖК Золотая Гавань от застройщика ЛенСпецСМУ на 4 этаже предлагается двухкомнатная квартира 73,3 м с современным ремонтом. В комплексег) три лифта, консьерж и охраняемая территория с видеонаблюдением.Квартира имеет кухню 16 м, две комнаты 19...
    • 73 м²
    • 2-ком
    • 4/25 эт.
    22 580 000 Р
    Агент
    +7 (981) Показать номер
    Посмотреть контакты
    2-комнатная квартира: Сестрорецк, Авиационная улица, 5к8 (84.04 м) - Фото 1
    2-комнатная квартира: Сестрорецк, Авиационная улица, 5к8 (84.04 м) - Фото 2
    2-комнатная квартира, общая площадь 84м², жилая 34м², кухня 18м²

    Срочно продаётся 3Е-квартира с двумя спальнями общей площадью 84.04 м2. в Курортном районе Санкт-Петербурга. Квартира расположена в малоэтажном комплексе бизнес класса в Сестрорецке. Идеальное место для комфортной семейной жизни в окружении зелёных массивов.О...
    • 84 м²
    • 2-ком
    • 2/4 эт.
    22 240 000 Р
    Агент
    +7 (963) Показать номер
    Посмотреть контакты
    2-комнатная квартира: Сестрорецк, Авиационная улица, 5к8 (84.04 м) - Фото 1
    2-комнатная квартира: Сестрорецк, Авиационная улица, 5к8 (84.04 м) - Фото 2
    2-комнатная квартира, общая площадь 84м², жилая 34м², кухня 18м²

    Срочно продаётся 3Е-квартира с двумя спальнями общей площадью 84.04 м2. в Курортном районе Санкт-Петербурга. Квартира расположена в малоэтажном комплексе бизнес класса в Сестрорецке. Идеальное место для комфортной семейной жизни в окружении зелёных массивов.О...
    • 84 м²
    • 2-ком
    • 4/4 эт.
    22 800 000 Р
    Агент
    +7 (963) Показать номер
    Посмотреть контакты

    Не нашли подходящего объявления?

    Оставьте заявку, и наши риэлторы подберут квартиру в районе Санкт-Петербурга

    (0)