Россия, Санкт-Петербург, Большой Сампсониевский просп., 20
17 900 000 Р 230 000 $ или 197 700

Информация о квартире

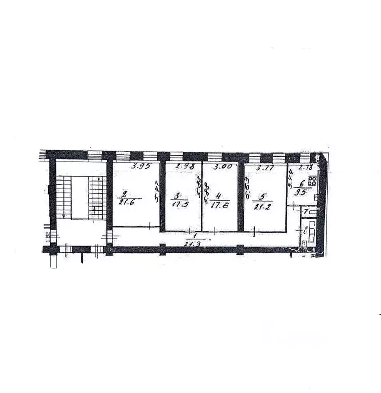
113 м2
Площадь
77 м2
Жилая
9 м2
Кухня
4
Комнаты
2
Этаж
5
Этажность

Дополнительная информация

Тип дома
кирпичный
Развернуть
Агент
+7 (981) 259-17-17
Начать чат с агентом

4-к кв. Санкт-Петербург Большой Сампсониевский просп., 20 (113.6 м)

Прямая продажа Квартира не коммунальная. Дом с железобетонными перекрытиями, кап.ремонт 1962 года. Высота потолков 3.07 м. Есть лифт. 4 квартиры на площадке. Горячая вода - от газовой колонки. Все окна выходят в просторный зелёный двор с детской площадкой, закрытый от посторонних машин. Достаточно мест для парковки. Есть свой пульт от ворот. Два взрослых собственника, никто не прописан. Обременений нет. Полная стоимость в договоре купли-продажи. Незначительная перепланировка: первая от входной двери комната разделена на две части перегородкой. Квартира требует ремонта, это бывшая коммуналка . В одной комнате установлены стеклопакеты. Внизу на первом этаже - коммерческое помещение. Отличное расположение: 10 мин. пешком от ст.м. Площадь Ленина и Финляндского вокзала. Рядом находятся Военно-медицинская академия и БЦ Петровский форт . Удобная транспортная и пешеходная доступность до Петроградки, набережных Невы и центра города.

Читать полностью

    Для того, чтобы купить четырехкомнатную квартиру по адресу: м. Площадь Ленина, Большой Сампсониевский просп., 20, позвоните по телефону +7 (981) 259-17-17. Торопитесь! Объявление №30092933324 о продаже четырехкомнатной квартиры опубликовано 14 января 2026.

    Позвонить Написать
    17 900 000 Р230 000 $ или 197 700
    Агент
    +7 (981) 259-17-17
    Начать чат с агентом
    Похожие предложения
    Продам 5 к.кв.112м2, ул.Ак.Лебедева 12, м.пл.Ленина-8м/пешком. - Фото 1
    Продам 5 к.кв.112м2, ул.Ак.Лебедева 12, м.пл.Ленина-8м/пешком. - Фото 2
    Продам 5 к.кв.112м2, ул.Ак.Лебедева 12, м.пл.Ленина-8м/пешком. - Фото 3
    Продам 5 к.кв.112м2, ул.Ак.Лебедева 12, м.пл.Ленина-8м/пешком. - Фото 4
    Продам 5 к.кв.112м2, ул.Ак.Лебедева 12, м.пл.Ленина-8м/пешком. - Фото 5
    Продам 5 к.кв.112м2, ул.Ак.Лебедева 12, м.пл.Ленина-8м/пешком. - Фото 6
    Продам 5 к.кв.112м2, ул.Ак.Лебедева 12, м.пл.Ленина-8м/пешком. - Фото 7
    Продам 5 к.кв.112м2, ул.Ак.Лебедева 12, м.пл.Ленина-8м/пешком. - Фото 8
    Продам 5 к.кв.112м2, ул.Ак.Лебедева 12, м.пл.Ленина-8м/пешком. - Фото 9
    Продам 5 к.кв.112м2, ул.Ак.Лебедева 12, м.пл.Ленина-8м/пешком. - Фото 10
    Продам 5 к.кв.112м2, ул.Ак.Лебедева 12, м.пл.Ленина-8м/пешком. - Фото 11
    Продам 5 к.кв.112м2, ул.Ак.Лебедева 12, м.пл.Ленина-8м/пешком. - Фото 12
    Продам 5 к.кв.112м2, ул.Ак.Лебедева 12, м.пл.Ленина-8м/пешком. - Фото 13
    Продам 5 к.кв.112м2, ул.Ак.Лебедева 12, м.пл.Ленина-8м/пешком. - Фото 14
    Продам 5 к.кв.112м2, ул.Ак.Лебедева 12, м.пл.Ленина-8м/пешком. - Фото 15
    Продам 5 к.кв.112м2, ул.Ак.Лебедева 12, м.пл.Ленина-8м/пешком. - Фото 16
    Продам 5 к.кв.112м2, ул.Ак.Лебедева 12, м.пл.Ленина-8м/пешком. - Фото 17
    Продам 5 к.кв.112м2, ул.Ак.Лебедева 12, м.пл.Ленина-8м/пешком. - Фото 18
    Продам 5 к.кв.112м2, ул.Ак.Лебедева 12, м.пл.Ленина-8м/пешком. - Фото 19
    Продам 5 к.кв.112м2, ул.Ак.Лебедева 12, м.пл.Ленина-8м/пешком. - Фото 20
    5-комнатная квартира, без ремонта, общая площадь 112м², жилая 72м², кухня 13м², деревянные окна

    Центр Санкт-Петербурга:Метро"пл. Ленина"8-10 минут пешком, новый лифт, красивый фасад, здание- памятник, объект культурного наследия Доходный дом "Российского общества страхования капиталов и доходов "Жизнь", в стиле модерн, неоклассицизм, архитектор...
    • 112 м²
    • 5-ком
    • 4/7 эт.
    • кирпичный
    19 000 000 Р
    +7 (911) Показать номер
    Агентство
    АН "АТЛАНТА"
    Посмотреть контакты
    2-к кв. Санкт-Петербург Большой Сампсониевский просп., 18 (70.0 м) - Фото 1
    2-к кв. Санкт-Петербург Большой Сампсониевский просп., 18 (70.0 м) - Фото 2
    2-комнатная квартира, общая площадь 70м², жилая 37м², кухня 10м²

    1705340 Выборгский район, Большой Сампсониевский проспект, д 18, продается двухкомнатная квартира. Общая площадь 69 кв.м., комнаты изолированные (21,3+16,1), кухня 10,5 кв.м., потолки 3 м, раздельный санузел. Окна выходят в благоустроенный двор.Околодомовая...
    • 70 м²
    • 2-ком
    • 1/5 эт.
    • кирпичный
    19 000 000 Р
    Агент
    +7 (911) Показать номер
    Посмотреть контакты
    5-к кв. Санкт-Петербург пос. Парголово, ул. Тихоокеанская, 18к2 (119.7 ... - Фото 1
    5-к кв. Санкт-Петербург пос. Парголово, ул. Тихоокеанская, 18к2 (119.7 ... - Фото 2
    5-комнатная квартира, общая площадь 119м², жилая 56м², кухня 16м²

    Продается 5-ти комнатная квартира в Парголово О квартире:пять изолированных комнатпросторный коридор 21м2большая кухня 16,9 м2выполнен качественный ремонтдве лоджии (из кухни и одной комнаты)О доме:монолитный дом 2020 года постройкивнутри и снаружи дома...
    • 119 м²
    • 5-ком
    • 5/14 эт.
    • монолит
    17 999 000 Р
    Агент
    +7 (981) Показать номер
    Посмотреть контакты
    3-к кв. Санкт-Петербург Парашютная ул., 61к1 (71.9 м) - Фото 1
    3-к кв. Санкт-Петербург Парашютная ул., 61к1 (71.9 м) - Фото 2
    3-комнатная квартира, общая площадь 71м², жилая 41м², кухня 10м²

    В стильном и современном жилом комплексе Шуваловский замечательная семейная квартира готова принять в объятья своих новых хозяев В ней вас ждет идеальная планировка: - окна выходят на две стороны: восток и запад, что позволяет наполнить комнаты естественным...
    • 71 м²
    • 3-ком
    • 7/20 эт.
    • монолит
    18 000 000 Р
    Агент
    +7 (911) Показать номер
    Посмотреть контакты
    2-комнатная квартира: Санкт-Петербург, Институтский проспект, 3к3 ... - Фото 1
    2-комнатная квартира: Санкт-Петербург, Институтский проспект, 3к3 ... - Фото 2
    2-комнатная квартира, общая площадь 66м², жилая 40м², кухня 10м²

    ID:Прямая продажа отличной просторной квартиры в одной из лучших локаций города. До входа в парк Лесотехнической академии — 250 м, до Удельного парка и Сосновки — 20 мин пешком, до метро пл. Мужества — 15 мин. Поликлиника, детский сад, гимназия №74 —...
    • 66 м²
    • 2-ком
    • 10/10 эт.
    17 500 000 Р
    Агент
    +7 (981) Показать номер
    Посмотреть контакты

    Не нашли подходящего объявления?

    Оставьте заявку, и наши риэлторы подберут квартиру в районе Санкт-Петербурга

    (0)