Реализация объекта недвижимости приостановлена

Информация о квартире

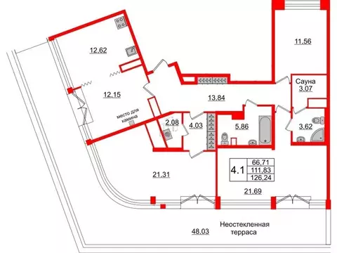
223.0 м2
Площадь
50.0 м2
Кухня
4
Комнаты
5
Этаж
5
Этажность

Дополнительная информация

Тип дома
монолит
Развернуть

4-к кв. Санкт-Петербург, Санкт-Петербург, Зеленогорск Приморское ш., ...

Просторная 4-комнатная квартира с видом на залив: ваш оазис в Санкт-Петербурге Ищете жильё, где сочетаются комфорт мегаполиса и близость к природе? Представляем вашему вниманию уникальную 4-комнатную квартиру в ЖК Курортные просторы по адресу: Приморское шоссе, дом 549, литера А. Почему эта квартира — находка для вас? Пятый этаж пятиэтажного дома — никаких соседей сверху, только тишина и простор. Панорамные окна в трёх направлениях (север, восток, юг): наслаждайтесь разными видами и оттенками солнечного света в течение всего дня. Высокие потолки (3 метра) — создают ощущение свободы и позволяют реализовать любые дизайнерские решения. Общая площадь 223 м — пространство для жизни без ограничений. Функциональная планировка: Большая кухня-гостиная — идеальное место для семейных ужинов и дружеских встреч. Три просторные спальни — комфорт для всей семьи. Кабинет — рабочее пространство, где ничто не будет отвлекать от дел. (Также есть возможность дополнительно организовать кабинет как четвёртую комнату — гибкость в использовании пространства ) Расположение — главный козырь: Всего 550 метров до берега Финского залива Представьте утренние пробежки с видом на воду или вечерние закаты на пляже. Развитая инфраструктура в шаговой доступности: Комсомольский сквер — для спокойных прогулок на свежем воздухе. Зеленогорский ПКиО — для активного отдыха всей семьёй. Яхт-клуб — для любителей морских прогулок. Открытый бассейн и спортивная площадка — для поддержания формы. Школы и детские сады — всё для комфорта вашей семьи. Кафе, торговые центры — для повседневных покупок и отдыха. Зоопарк и бильярдная — для досуга. Транспортная доступность: Остановка общественного транспорта — в 350 метрах от дома. Удобный доступ к КАД — по Приморскому шоссе (30 км). Близость к станциям метро (Чёрная речка, Площадь Ленина, Проспект Просвещения) — легко добраться в любую точку города. Дополнительные преимущества: Паркинг на 60 автомобилей в цокольном этаже — больше не нужно искать место для машины. Фитнес-клуб в пристроенном помещении — забота о здоровье без выезда из комплекса.Эта квартира — не просто жильё, а пространство для жизни, отдыха и вдохновения. Здесь каждая деталь продумана для вашего комфорта. Не упустите шанс стать владельцем этого уникального объекта Звоните прямо сейчас, чтобы узнать больше и договориться о просмотре

Читать полностью

    Реализация объекта недвижимости приостановлена

    Не нашли подходящего объявления?

    Оставьте заявку, и наши риэлторы подберут квартиру в районе Санкт-Петербурга

    (0)