43 731 000 Р 556 600 $ или 474 300

Информация о квартире

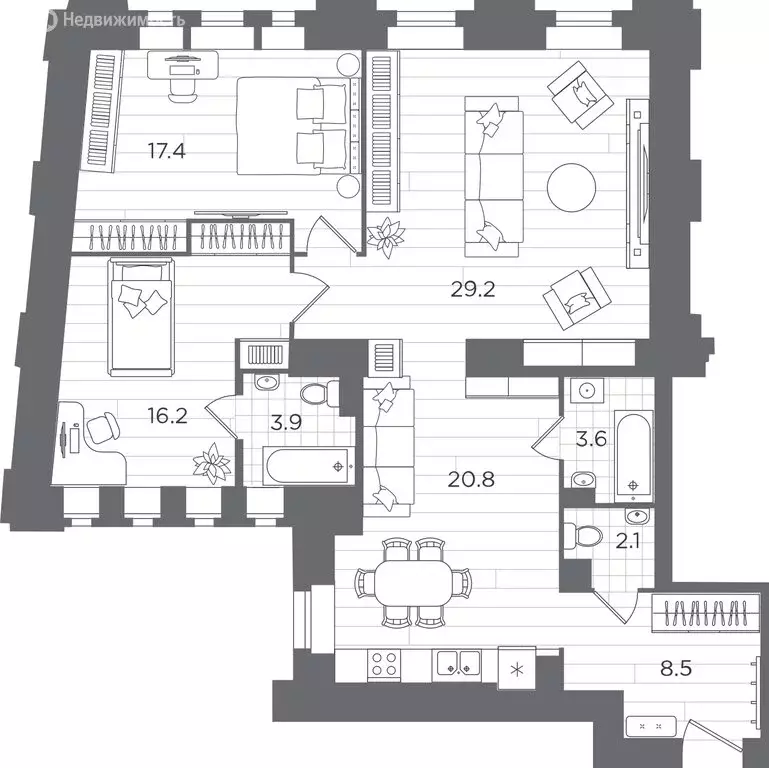
101 м2
Площадь
62 м2
Жилая
20 м2
Кухня
3
Комнаты
2
Этаж
7
Этажность
Развернуть
Агент
+7 (981) 821-20-38
Начать чат с агентом

3-комнатная квартира: Санкт-Петербург, наб. Реки Карповки, рядом с д. ...

Apт.2062172. Продаются 3-комн. апартаменты от застройщика в ЖК Северная корона на 2 этаже. Апартаменты без отделки, новый владелец может сделать ремонт по индивидуальному дизайн-проекту. Общая площадь: 101.7 кв.м., жилая: 62.8 кв.м., площадь просторной кухни-столовой: 20.8 кв.м. Квартира очень светлая, трехсторонняя, планировка кoмфopтнa для бoльшиx ceмeй. В апартаментах один совмещенный и один раздельный санузел. Высота потолков 3.3 м. 3 корпус дома «Северная Корона представляет собой реконструкцию исторического здания доходного дома М.К. Покотиловой. Доходный дом строился в неоклассическом стиле – с рустированными пилястрами, балюстрадой, барельефами в виде путти, ваз и сатиров, а также маскаронами львов в замковых камнях арок первого этажа. Основное здание было четырехэтажным, а боковые крылья – трехэтажными. Данное решение ступенчатой композиции было продиктовано близостью Карповского переулка – более высокую часть архитектор увел вглубь участка. Конструкция здания производилась согласно канонам неоклассической архитектуры: массивные стены достигают толщины в 1 метр, а высота потолков доходит до 3,4 метра. Кроме того, на первом и втором этажах выполнены сложные окна – двойные и тройные. Они состоят из двух и трех оконных проемов, которые объединены общими декоративными элементами в виде барельефов. Апартаменты находятся в корпусе 3. Дом монолитно-блочный, одноподъездный, высотой 7 этажей. В подъезде 3 грузовых лифта. Строительство завершено, дом сдан в 4 квартале 2023 года. Оформление сделки по договору купли-продажи. В шаговой доступности от дома находятся станции метро (расстояние по прямой): «Петроградская (500 м), «Чкаловская (1.3 км), «Горьковская (1.7 км), «Чёрная речка (1.7 км), также недалеко от этого корпуса находятся станции метро: «Чернышевская , «Спортивная . Премиальный жилой комплекс Северная коронаасположился в парадной части Петроградской стороны на пересечении ее главного проспекта — Каменноостровского и набережной реки Карповки.Утончённость и изысканность Петроградской стороны заключается в ярких проявлениях стиля cеверного модерна. Архитектура премиального дома «Северная корона — это современное воплощение и новое развитие архитектуры северного модерна. Особенность и уникальность дома в его протяженности вдоль реки Карповки. Фасад исключает монотонность, линии интегрированы в канву курдонера и внутренних общественных пространств, обращённых как в сторону Каменноостровского проспекта, так и Иоановского монастыря. Все квартиры в полной мере можно назвать видовыми – они открыты историческому окружению и ландшафтной архитектуре. Что дарит владельцам единственные в своем роде захватывающие виды.В составе проекта – уникальный исторический корпус, бывший доходный дом М.К. Покотиловой. Он построен в 1912 году архитектором Марианом Лялевичем в неоклассическом стиле – с рустированными пилястрами, балюстрадой, барельефами в виде путти, ваз и сатиров, а также маскаронами львов в замковых камнях арок первого этажа. Дом утратил исторический облик вгг., и мы бережно восстанавливаем его облик и проводим реконструкцию, которая вдохнет в него новую жизнь с помощью современных технологий.Этажность: 4 - 9 этажей.Дом СДАН. Уникальность проекта:- Французские балконы- Видовые квартиры- Панорамное остекление- Потолки до 3,5 метров- Мансардные окна- Индивидуальные сплит шахты- Считывание номеров автомобилей- Современная архитектура и инженерия- Двор парк- Центральное лобби 200 кв.м.

Читать полностью

    Для того, чтобы купить трехкомнатную квартиру по адресу: м. Петроградская, Реки Карповки наб., рядом с д. 31, позвоните по телефону +7 (981) 821-20-38. Торопитесь! Объявление №30092819720 о продаже трехкомнатной квартиры опубликовано 05 января 2026.

    Позвонить Написать
    43 731 000 Р556 600 $ или 474 300
    Агент
    +7 (981) 821-20-38
    Начать чат с агентом
    Похожие предложения
    3-комнатная квартира: Санкт-Петербург, наб. Реки Карповки, рядом с д. ... - Фото 1
    3-комнатная квартира: Санкт-Петербург, наб. Реки Карповки, рядом с д. ... - Фото 2
    3-комнатная квартира, общая площадь 101м², жилая 62м², кухня 20м²

    Apт.2062172. 3-комн. апартаменты в ЖК Северная корона на 2 этаже. Апартаменты без отделки, после выдачи ключей можно делать ремонт. Общая площадь: 101.7 кв.м., жилая: 62.8 кв.м., площадь просторной кухни-столовой: 20.8 кв.м. Квартира без проходных комнат,...
    • 101 м²
    • 3-ком
    • 2/7 эт.
    43 731 000 Р
    Агент
    +7 (981) Показать номер
    Посмотреть контакты
    Продажа квартиры, м. Петроградская, Карповский пер. - Фото 1
    Продажа квартиры, м. Петроградская, Карповский пер. - Фото 2
    Продажа квартиры, м. Петроградская, Карповский пер. - Фото 3
    Продажа квартиры, м. Петроградская, Карповский пер. - Фото 4
    Продажа квартиры, м. Петроградская, Карповский пер. - Фото 5
    Продажа квартиры, м. Петроградская, Карповский пер. - Фото 6
    Продажа квартиры, м. Петроградская, Карповский пер. - Фото 7
    Продажа квартиры, м. Петроградская, Карповский пер. - Фото 8
    Продажа квартиры, м. Петроградская, Карповский пер. - Фото 9
    Продажа квартиры, м. Петроградская, Карповский пер. - Фото 10
    Продажа квартиры, м. Петроградская, Карповский пер. - Фото 11
    3-комнатная квартира, общая площадь 101м², жилая 63м², кухня 21м²

    Трехкомнатные апартаменты в историческом особняке Тихий Карповский переулок из Ваших окон, высокие потолки 3.4 метра. Изысканный лобби и премиальная инфраструктура. Полная реконструкция, паркинг.
    • 101 м²
    • 3-ком
    • 3/7 эт.
    • кирпичный
    43 731 000 Р
    PRO
    +7 (812) Показать номер
    Посмотреть контакты
    2-к кв. Санкт-Петербург просп. Малый Петроградской стороны, 79-81-83 ... - Фото 1
    2-к кв. Санкт-Петербург просп. Малый Петроградской стороны, 79-81-83 ... - Фото 2
    2-комнатная квартира, общая площадь 69м², жилая 33м², кухня 20м²

    Арт.Лучшее предложение: квартира с только что выполненным ремонтом, в клубном доме Мадонна Бенуа . Дом был построен в 1955 году в неоклассическом стиле архитектором Логином Шретером, продолжателем знаменитой династии Бенуа. В 2023 году была произведена...
    • 69 м²
    • 2-ком
    • 2/6 эт.
    • кирпичный
    44 800 000 Р
    Агент
    +7 (911) Показать номер
    Посмотреть контакты
    3-комнатная квартира: Санкт-Петербург, Исполкомская улица, 17 (107.3 ... - Фото 1
    3-комнатная квартира: Санкт-Петербург, Исполкомская улица, 17 (107.3 ... - Фото 2
    3-комнатная квартира, общая площадь 107м², жилая 64м², кухня 19м²

    Арт.Предлагаем Вашему вниманию просторную 3К квартиру в доме бизнес класса ЖК Дипломат Преимущества расположения Комплекс находится в историческом районе Пески, который является частью Центральногоайона. Ближайшая станция метро пл. Александра Невского...
    • 107 м²
    • 3-ком
    • 7/10 эт.
    43 002 000 Р
    Агент
    +7 (963) Показать номер
    Посмотреть контакты
    3-к кв. Санкт-Петербург 15-я Васильевского острова линия, 84 (120.1 м) - Фото 1
    3-к кв. Санкт-Петербург 15-я Васильевского острова линия, 84 (120.1 м) - Фото 2
    3-комнатная квартира, общая площадь 120м², жилая 78м², кухня 37м²

    Код объекта: 1973962.Уникальное предложение на рынке недвижимости Санкт-Петербурга Продаётся просторная трёхкомнатная квартира на 15-й линии Васильевского острова, 84 — идеальный выбор для тех, кто ценит комфорт и современный стиль жизни. Квартира расположена...
    • 120 м²
    • 3-ком
    • 1/8 эт.
    45 000 000 Р
    Агент
    +7 (911) Показать номер
    Посмотреть контакты

    Не нашли подходящего объявления?

    Оставьте заявку, и наши риэлторы подберут квартиру в районе Санкт-Петербурга

    (0)