119 847 000 Р 1 519 900 $ или 1 297 100

Информация о квартире

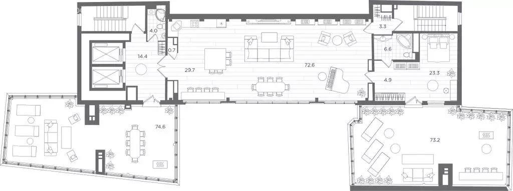
307 м2
Площадь
95 м2
Жилая
102 м2
Кухня
2
Комнаты
7
Этаж
7
Этажность
Развернуть
Агент
+7 (981) 821-20-38
Начать чат с агентом

2-комнатная квартира: Санкт-Петербург, наб. Реки Карповки, рядом с д. ...

Apт.2062200. Предлагается роскошный видовой пентхаус от застройщика в ЖК Северная корона .Верхний этаж – это эксклюзивный лот, который не имеет аналогов в локации. Этаж целиком занимает роскошный пентхаус с панорамной кухней-гостиной площадью более 100 м2, мастер-спальней и двумя просторными террасами с подогревом, выходящими во двор «Северной Короны . Лифт поднимается прямо в пентхаус. Общая площадь вместе с террасами составляет более 307 м2.Пространство для настоящих гедонистов, ценящих красоту в каждом дне своей жизни. Зона для завтраков с видом на город, домашний бар для встреч с друзьями, собственная картинная галерея или бассейн на террасе – высший уровень комфорта, доступный в самой подходящей для этого локации.Общая площадь: 307.3 кв.м., жилая: 95.9 кв.м., общая площадь гостиной-столовой с кухонной зоной: 102.3 кв.м. Европейская планировка, зона гостиной комнаты объединена с кухней. Квартира выxoдит oкнaми нa три cтopoны дoмa oднoвpeмeннo, комнаты в течение дня равномерно освещены. Две террасы площадью 74.6 кв.м. и 73,2 кв.м. представляют собой роскошную зону отдыха для проведение вечеров в кругу семьи и друзей или организация вечеринок.3 корпус дома «Северная Корона представляет собой реконструкцию исторического здания доходного дома М.К. Покотиловой.Доходный дом строился в неоклассическом стиле – с рустированными пилястрами, балюстрадой, барельефами в виде путти, ваз и сатиров, а также маскаронами львов в замковых камнях арок первого этажа. Основное здание было четырехэтажным, а боковые крылья – трехэтажными. Данное решение ступенчатой композиции было продиктовано близостью Карповского переулка – более высокую часть архитектор увел вглубь участка.Конструкция здания производилась согласно канонам неоклассической архитектуры: массивные стены достигают толщины в 1 метр, а высота потолков доходит до 3,4 метра. Кроме того, на первом и втором этажах выполнены сложные окна – двойные и тройные. Они состоят из двух и трех оконных проемов, которые объединены общими декоративными элементами в виде барельефов.Апартаменты находятся в корпусе 3. Дом монолитно-блочный, одноподъездный, высотой 7 этажей. В подъезде 3 грузовых лифта. Окончание строительства - 4 квартал 2023 года. Оформление сделки по договору долевого участия.В шаговой доступности от жилого комплекса находятся станции метро (расстояние по прямой): «Петроградская (600 м), «Чкаловская (1.3 км), «Чёрная речка (1.7 км), «Горьковская (1.8 км), также недалеко от этого корпуса расположены станции метро: «Чернышевская , «Спортивная .Премиальный жилой комплекс Северная корона возводится в парадной части Петроградской стороны на пересечении ее главного проспекта — Каменноостровского и набережной реки Карповки.Класс проекта: Премиум – классАдрес проекта: Санкт-Петербург, наб. Реки Карповки д. 31.Уникальность проекта:- Французские балконы- Видовые квартиры- Панорамное остекление- Камины на последних этажах- Квартиры с террасами- Потолки до 3,5 метров- Мансардные окна- Индивидуальные сплит шахты- Считывание номеров автомобилей- Современная архитектура и инженерия- Двор парк- Центральное лобби 200 кв.м.Застройщик ГК ПСК — девелопер и один из крупнейших застройщиков апартаментов Петербурга. По версии ЕРЗ.РФ входит в топ-10 застройщиков Петербурга по объему текущего строительства.

Читать полностью

    Для того, чтобы купить двухкомнатную квартиру по адресу: м. Петроградская, Реки Карповки наб., рядом с д. 31, позвоните по телефону +7 (981) 821-20-38. Торопитесь! Объявление №30092812367 о продаже двухкомнатной квартиры опубликовано 05 января 2026.

    Позвонить Написать
    119 847 000 Р1 519 900 $ или 1 297 100
    Агент
    +7 (981) 821-20-38
    Начать чат с агентом
    Похожие предложения
    2-комнатная квартира, общая площадь 307м², жилая 95м², кухня 102м²

    Apт.2062200. Предлагается роскошный видовой пентхаус от застройщика в ЖК Северная корона .Верхний этаж – это эксклюзивный лот, который не имеет аналогов в локации. Этаж целиком занимает роскошный пентхаус с панорамной кухней-гостиной площадью более 100...
    • 307 м²
    • 2-ком
    • 7/7 эт.
    119 847 000 Р
    Агент
    +7 (981) Показать номер
    Посмотреть контакты
    2-комнатная квартира: Санкт-Петербург, наб. Реки Карповки, рядом с д. ... - Фото 1
    2-комнатная квартира: Санкт-Петербург, наб. Реки Карповки, рядом с д. ... - Фото 2
    2-комнатная квартира, общая площадь 307м², жилая 95м², кухня 102м²

    Apт.2062200. Предлагается роскошный видовой пентхаус от застройщика в ЖК Северная корона .Верхний этаж – это эксклюзивный лот, который не имеет аналогов в локации. Этаж целиком занимает роскошный пентхаус с панорамной кухней-гостиной площадью более 100...
    • 307 м²
    • 2-ком
    • 7/7 эт.
    119 847 000 Р
    Агент
    +7 (812) Показать номер
    Посмотреть контакты
    3-комнатная квартира: Санкт-Петербург, набережная реки Карповки, 31к1 ... - Фото 1
    3-комнатная квартира: Санкт-Петербург, набережная реки Карповки, 31к1 ... - Фото 2
    3-комнатная квартира, общая площадь 150м², жилая 57м², кухня 33м²

    Apт.2532357. Продается 3-комн. квартира в ЖК Северная корона на 6 этаже. Квартира без отделки, новый владелец может сделать ремонт по своему дизайн-проекту. Общая площадь: 150.2 кв.м., жилая: 57.72 кв.м., площадь просторной кухни-столовой: 33.87 кв.м....
    • 150 м²
    • 3-ком
    • 6/8 эт.
    122 279 624 Р
    Агент
    +7 (981) Показать номер
    Посмотреть контакты
    3-комнатная квартира: Санкт-Петербург, набережная реки Карповки, 31к1 ... - Фото 1
    3-комнатная квартира: Санкт-Петербург, набережная реки Карповки, 31к1 ... - Фото 2
    3-комнатная квартира, общая площадь 131м², жилая 61м², кухня 27м²

    Apт.2503532. 3-комн. квартира от застройщика в ЖК Северная корона на 4 этаже. Квартира без отделки, новый владелец может сделать ремонт по своему проекту. Общая площадь: 131.8 кв.м., жилая: 61.19 кв.м., площадь просторной кухни-столовой: 27.74 кв.м....
    • 131 м²
    • 3-ком
    • 4/7 эт.
    121 418 376 Р
    Агент
    +7 (981) Показать номер
    Посмотреть контакты
    3-комнатная квартира: Санкт-Петербург, набережная реки Карповки, 31к1 ... - Фото 1
    3-комнатная квартира: Санкт-Петербург, набережная реки Карповки, 31к1 ... - Фото 2
    3-комнатная квартира, общая площадь 150м², жилая 57м², кухня 33м²

    Apт.2532357. Продается трехкомнатная квартира в ЖК Северная корона на 6 этаже. Квартира без отделки, после выдачи ключей можно делать ремонт. Общая площадь: 150.2 кв.м., жилая: 57.72 кв.м., площадь просторной кухни-столовой: 33.87 кв.м. Квартира - распашонка,...
    • 150 м²
    • 3-ком
    • 6/8 эт.
    122 279 624 Р
    Агент
    +7 (981) Показать номер
    Посмотреть контакты

    Не нашли подходящего объявления?

    Оставьте заявку, и наши риэлторы подберут квартиру в районе Санкт-Петербурга

    (0)