11 500 000 Р 147 000 $ или 124 900

Информация о квартире

64 м2
Площадь
40 м2
Жилая
6 м2
Кухня
3
Комнаты
4
Этаж
4
Этажность

Дополнительная информация

Тип дома
кирпичный
Развернуть
Агент
+7 (981) 160-55-85
Начать чат с агентом

3-к кв. Санкт-Петербург, Санкт-Петербург, Петергоф Константиновская ...

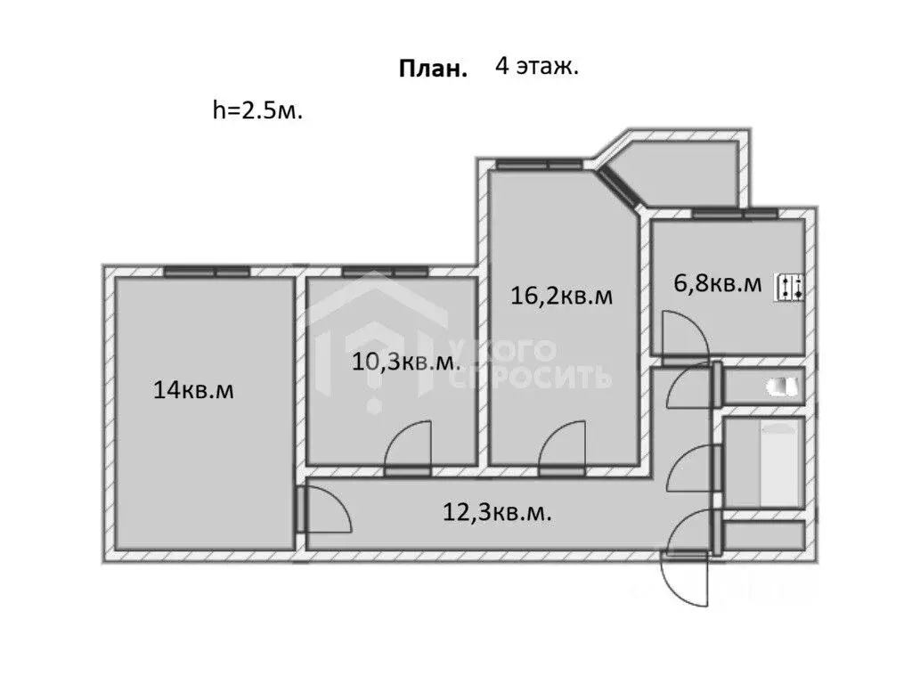
Код объекта: 1984285.Уникальное предложение Квартира в самом центре Петергофа.Санкт-Петербург, город Петергоф, ул. Константиновская, 23/13Предлагается трехкомнатная квартира на четвертом этаже четырехэтажного кирпичного дома 1978 года постройки. Есть технический этаж. Общая площадь квартиры 64,8 кв. м. Балкон. Хорошая планировка, комнаты изолированные: 16,2 кв. м + 10,3 кв. м + 14 кв. м. Кухня 6,8 кв. м. Просторный коридор 12,3 кв. м с вместительной кладовой. Санузел раздельный. Окна выходят на Константиновскую улицу. В квартире требуется ремонт.Зеленый двор с детской площадкой.Экологически чистый район Петербурга, являющийся точкой притяжения туристов благодаря своей неповторимой исторической красоте и уникальности. Достопримечательности рядом: музей-заповедник со знаменитыми фонтанами, Колонистский парк и Ольгин пруд, Собор Петра и Павла, Александрийский парк.Вся необходимая инфраструктура в пешей доступности: школы, детские сады, поликлиника, банки, почта, рынок, сетевые магазины.Удобная транспортная доступность: рядом с домом автобусные остановки, до ж/д станции Новый Петергоф 20 минут пешком. До метро 30 минут на транспорте.Прямая продажа. Один взрослый собственник. Никто не зарегистрирован. Документы в порядке. Долгов и обременений нет.

Читать полностью

    Для того, чтобы купить трехкомнатную квартиру по адресу: м. Ленинский проспект, Константиновская ул., 23/13, позвоните по телефону +7 (981) 160-55-85. Торопитесь! Объявление №30092794367 о продаже трехкомнатной квартиры опубликовано Вчера.

    Позвонить Написать
    11 500 000 Р147 000 $ или 124 900
    Агент
    +7 (981) 160-55-85
    Начать чат с агентом
    Похожие предложения
    2-к кв. Санкт-Петербург Ленинский просп., 137 (49.1 м) - Фото 1
    2-к кв. Санкт-Петербург Ленинский просп., 137 (49.1 м) - Фото 2
    2-комнатная квартира, общая площадь 49м², жилая 29м², кухня 7м²

    1705440 Предлагаем к продаже светлую уютную двухкомнатную квартиру в пешей доступности от метро Ленинский проспект Квартира расположена на 4-м этаже теплого кирпичного 18-ти этажного дома.Два лифта грузовой и пассажирский, в холле работает бдительный...
    • 49 м²
    • 2-ком
    • 4/18 эт.
    • кирпичный
    11 900 000 Р
    Агент
    +7 (911) Показать номер
    Посмотреть контакты
    1-к кв. Санкт-Петербург Ленинский просп., 147к2 (47.4 м) - Фото 1
    1-к кв. Санкт-Петербург Ленинский просп., 147к2 (47.4 м) - Фото 2
    1-комнатная квартира, общая площадь 47м², жилая 20м², кухня 20м²

    ID: 1915725В продаже стильная евродвушка вблизи двух станций метро. Теплый кирпично-монолитный дом 2010 г.п., закрытая территория, паркинг подземный и открытый на территории ЖК. Квартира с приятным дизайнерским ремонтом, продуманы все мелочи. Просторная...
    • 47 м²
    • 1-ком
    • 6/14 эт.
    12 490 000 Р
    Агент
    +7 (989) Показать номер
    Посмотреть контакты
    2-к кв. Санкт-Петербург Ленинский просп., 92К3 (51.4 м) - Фото 1
    2-к кв. Санкт-Петербург Ленинский просп., 92К3 (51.4 м) - Фото 2
    2-комнатная квартира, общая площадь 51м², жилая 30м², кухня 7м²

    Номер объявления: 20609 - назовите его оператору. Предлагается к продаже просторная семейная 2 ккв квартира с качественным ремонтом. Квартира расположена на 13 этаже и имеет прекрасный вид из окна.Квартира имеет комфортную планировку. Комнаты правильной...
    • 51 м²
    • 2-ком
    • 13/16 эт.
    • панельный
    11 700 000 Р
    Агент
    +7 (911) Показать номер
    Посмотреть контакты
    2-к кв. Санкт-Петербург Ленинский просп., 68 (59.3 м) - Фото 1
    2-к кв. Санкт-Петербург Ленинский просп., 68 (59.3 м) - Фото 2
    2-комнатная квартира, общая площадь 59м², жилая 31м², кухня 12м²

    ID: 1915716В продаже двухкомнатная квартира в новом доме. Дом комфорт-класса.Удобное планировочное решение, грамотное использование пространства.Светлые уютные комнаты. Большая кухня. Просторный коридор с нишей для вместительного шкафа.Во дворе спортивные...
    • 59 м²
    • 2-ком
    • 3/20 эт.
    11 500 000 Р
    Агент
    +7 (981) Показать номер
    Посмотреть контакты
    1-к кв. Санкт-Петербург Кубинская ул., 76к1 (34.0 м) - Фото 1
    1-к кв. Санкт-Петербург Кубинская ул., 76к1 (34.0 м) - Фото 2
    1-комнатная квартира, общая площадь 34м², жилая 14м², кухня 10м²

    Продается уютная однокомнатная квартира площадью 34 кв. м в современном монолитно-кирпичном доме, построенном в 2025 году. Квартира находится на 12-м этаже 12-этажного дома. Высота потолков составляет 3 метра, что добавляет ощущение простора. Удобная...
    • 34 м²
    • 1-ком
    • 12/12 эт.
    12 300 000 Р
    Агент
    +7 (981) Показать номер
    Посмотреть контакты

    Не нашли подходящего объявления?

    Оставьте заявку, и наши риэлторы подберут квартиру в районе Санкт-Петербурга

    (0)