Реализация объекта недвижимости приостановлена

Информация о квартире

32.0 м2
Площадь
10.0 м2
Жилая
15.0 м2
Кухня
1
Комната
4
Этаж
21
Этажность
Развернуть

1-комнатная квартира: Санкт-Петербург, Пахомовская улица, 10к4 (32.5 ...

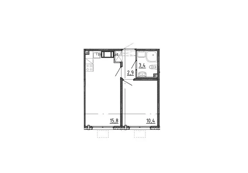
В новом проекте Ручьи 2 продается однокомнатная квартира 32,5м2 с просторной кухней.Метро «Академическая - 10 минутах транспортом, 2 км до выезда на КАД.Жилая - 10,4м2Кухня - 15,8м2Совмещенный санузел - 3,4м2Жилой комплекс расположен в Красногвардейском районе с развитой инфраструктурой и сетью общественного транспорта. В пешей доступности работают торговые центры и магазины, отделения почты и банков, кафе, рестораны, медицинские учреждения и спортивные комплексы. Двор закрыт от машин. Проект включает в себя два детских сада, школу, медицинские и спортивные объекты, а также магазины на первых этажах. Звоните, расскажу о квартире подробнее.

Читать полностью

    Реализация объекта недвижимости приостановлена

    Не нашли подходящего объявления?

    Оставьте заявку, и наши риэлторы подберут квартиру в районе Санкт-Петербурга

    (0)