24 750 000 Р 316 400 $ или 268 700

Информация о квартире

86 м2
Площадь
61 м2
Жилая
12 м2
Кухня
3
Комнаты
5
Этаж
16
Этажность

Дополнительная информация

Тип дома
кирпичный
Развернуть
Агент
+7 (911) 167-53-08
Начать чат с агентом

3-к кв. Санкт-Петербург Комендантский просп., 34к1 (86.0 м)

Продается просторная 3-комнатная квартира 86.2 м на Комендантском пр., 34к1 ПРОДАЖА БЕЗ КОМИССИИ ОДОБРЕНИЕ ИПОТЕКИ В ПОДАРОК Продается отличная трехкомнатная квартира в популярном Приморском районе. Идеальный вариант для комфортной жизни. Адрес: Комендантский проспект, 34к1. Площадь: 86.2 кв. м + лоджия (общая 91 кв. м). Этаж: 5-й из 16-ти. В доме есть пассажирский и грузовой лифты. Кирпичный дом с отличной тепло и шумо изоляцией, 2000 года постройки, в отличном состоянии. В подъезде работает консьерж. Высота потолков: 2.54 м. Просторная планировка. Окна выходят на улицу и во двор, что обеспечивает хорошую инсоляцию проветривание. Комнаты просторные и светлые. Сделан ремонт. Кухня-столовая полностью оборудована техникой и мебелью (посудомоечная машина не установлена). Санузел раздельный — большое преимущество для семьи. Возможна продажа с полной меблировкой, техникой и посудой или без (обсуждается отдельно). Преимущества дома и района: Инфраструктура: В шаговой доступности школы, детские сады, магазины, аптеки. Транспорт: До станции метро Комендантский проспект всего 10-15 минут пешком. Рядом автобусная остановка. Парковка: Есть наземная парковка, место для автомобиля найти легко. Отдых: Район зеленый, много пространств для пеших и велопрогулок. Квартира готова к проживанию Звоните прямо сейчас и договоритесь о просмотре

Читать полностью

    Для того, чтобы купить трехкомнатную квартиру по адресу: м. Комендантский проспект, Комендантский пр-кт., 34к1, позвоните по телефону +7 (911) 167-53-08. Торопитесь! Объявление №30092399317 о продаже трехкомнатной квартиры опубликовано 23 декабря 2025.

    Позвонить Написать
    24 750 000 Р316 400 $ или 268 700
    Агент
    +7 (911) 167-53-08
    Начать чат с агентом
    Похожие предложения
    4-к кв. Санкт-Петербург Комендантский просп., 27К1 (105.0 м) - Фото 1
    4-к кв. Санкт-Петербург Комендантский просп., 27К1 (105.0 м) - Фото 2
    4-комнатная квартира, общая площадь 105м², жилая 66м², кухня 15м²

    ID: 1915750Просторная 4-комнатная квартира 105 кв.м. у метро Комендантский проспект . Ремонт, мебель. Для большой семьи.Прямая продажа. Один взрослый собственник. Никто не зарегистрирован. Полная цена в Договоре. Без обременений. Без перепланировок....
    • 105 м²
    • 4-ком
    • 9/15 эт.
    • кирпичный
    25 000 000 Р
    Агент
    +7 (981) Показать номер
    Посмотреть контакты
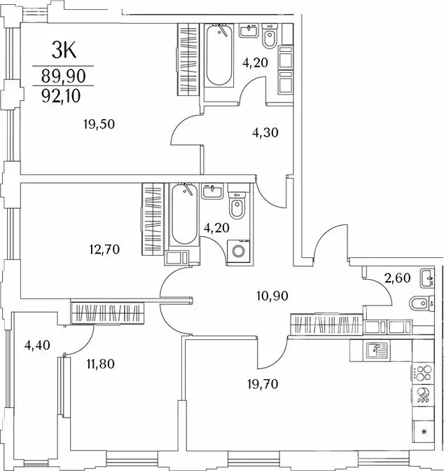
    3-к кв. Санкт-Петербург Богатырский просп., 22к1 (89.9 м) - Фото 1
    3-к кв. Санкт-Петербург Богатырский просп., 22к1 (89.9 м) - Фото 2
    3-комнатная квартира, общая площадь 89м², жилая 63м², кухня 12м²

    В продаже уютная 3-комнатная квартира, расположенная в кирпичном доме на Болатырском 22 корпус 1.Дом построен в 2011 году и является одним из самых престижных в этой локации.Основное преимущество квартиру - удобная планировка, сочетающая в себе 2 отдельные...
    • 89 м²
    • 3-ком
    • 10/17 эт.
    24 690 000 Р
    Агент
    +7 (981) Показать номер
    Посмотреть контакты
    3-к кв. Санкт-Петербург Планерная ул., 99 (92.8 м) - Фото 1
    3-к кв. Санкт-Петербург Планерная ул., 99 (92.8 м) - Фото 2
    3-комнатная квартира, общая площадь 92м², жилая 44м², кухня 19м²

    342772 Жилой комплекс Тайм Сквер состоит из 13 корпусов, в каждом из которых по 13 этажей. Слово Тайм (в переводе с английского языка time — время) в названии жилого комплекса обыгрывается ключевым архитектурным решением. Каждый из корпусов, расположенных...
    • 92 м²
    • 3-ком
    • 11/13 эт.
    • монолит
    25 590 000 Р
    Агент
    +7 (981) Показать номер
    Посмотреть контакты
    3-комнатная квартира: Санкт-Петербург, Богатырский проспект, 22к1 ... - Фото 1
    3-комнатная квартира: Санкт-Петербург, Богатырский проспект, 22к1 ... - Фото 2
    3-комнатная квартира, общая площадь 89м², жилая 63м², кухня 12м²

    В продаже уютная 3-комнатная квартира, расположенная в кирпичном доме на Болатырском 22 корпус 1.Дом построен в 2011 году и является одним из самых престижных в этой локации.Основное преимущество квартиру - удобная планировка, сочетающая в себе 2 отдельные...
    • 89 м²
    • 3-ком
    • 10/17 эт.
    24 690 000 Р
    Агент
    +7 (961) Показать номер
    Посмотреть контакты
    3-комнатная квартира: Санкт-Петербург, ул. Глухарская (92.8 м) - Фото 1
    3-комнатная квартира: Санкт-Петербург, ул. Глухарская (92.8 м) - Фото 2
    3-комнатная квартира, общая площадь 92м², жилая 44м², кухня 19м²

    №342772 Жилой комплекс «Тайм Сквер состоит из 13 корпусов, в каждом из которых по 13 этажей. Слово «Тайм (в переводе с английского языка time — время) в названии жилого комплекса обыгрывается ключевым архитектурным решением. Каждый из корпусов, расположенных...
    • 92 м²
    • 3-ком
    • 11/13 эт.
    25 590 000 Р
    Агент
    +7 (812) Показать номер
    Посмотреть контакты

    Не нашли подходящего объявления?

    Оставьте заявку, и наши риэлторы подберут квартиру в районе Санкт-Петербурга

    (0)