Россия, Санкт-Петербург, Серебристый бул., 34К1

Реализация объекта недвижимости приостановлена

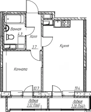
Информация о квартире

60.0 м2
Площадь
42.0 м2
Жилая
6.0 м2
Кухня
3
Комнаты
8
Этаж
9
Этажность

Дополнительная информация

Тип дома
панельный
Развернуть

3-к кв. Санкт-Петербург Серебристый бул., 34К1 (60.0 м)

Продается уютная 3-комнатная квартира в районе метро Пионерская . Общая площадь 60 кв. м, жилая площадь составляет 42 кв. м. Квартира расположена на 8 этаже 9-этажного панельного дома, построенного в 1978 году. Высота потолков — 2,6 метра, окна выходят во двор, поэтому в квартире тихо и спокойно. До метро можно дойти пешком за 22 минуты.Площадь кухни — 6,2 кв. м, оптимальная для приготовления и приема пищи. Санузел раздельный, что удобно для семьи. Есть балкон, где можно организовать зону хранение.Дом в хорошем состоянии, оснащен пассажирским лифтом. Во дворе предусмотрена наземная парковка, поэтому можно удобно оставлять автомобиль рядом с домом. Район обладает развитой инфраструктурой, в пешей доступности находятся школы, детские сады, клиники и магазины, что делает проживание здесь комфортным и удобным для всей семьи.Квартира свободна от обременений, возможна продажа в ипотеку. Все документы готовы к сделке, что позволяет быстро выйти на подписание договора. Приглашаем вас на просмотр Записывайтесь на удобное для вас время, чтобы оценить все преимущества этой квартиры.

Читать полностью

    Реализация объекта недвижимости приостановлена

    Не нашли подходящего объявления?

    Оставьте заявку, и наши риэлторы подберут квартиру в районе Санкт-Петербурга

    (0)