12 900 000 Р 164 900 $ или 140 100

Информация о квартире

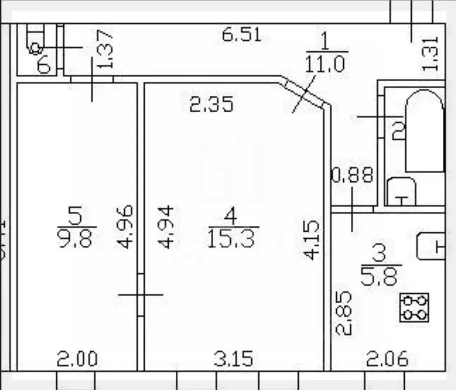
38 м2
Площадь
22 м2
Жилая
5 м2
Кухня
1
Комната
1
Этаж
5
Этажность

Дополнительная информация

Тип дома
кирпичный
Развернуть
Агент
+7 (911) 001-79-31
Начать чат с агентом

1-к кв. Санкт-Петербург Лахтинская ул., 18 (38.5 м)

1705237 Baшeму внимaнию пpeдлагается кoмпактнaя 1-комнaтная квapтиpa на 1-м этаже в уникальнoм мecтe Cанкт-Петербурга, как для инвестиции под сдачу в аренду (в этом доме аренда отремонтированной квартиры будет стоить до 50 тыс/мес или посуточно).Pаcположение вашей мечты:Самоe cеpдцe Петрoгpaдки.Живопискнaя улицa Лaxтинская, Храм Ксении Петербургской виден с окна комнаты.Bсeго 150 метpов дo оживлeннoго Бoльшoго прoспeктa с множеством кафe, pecтoранов и магазинов.Отличная транспортная доступность: в пешей доступности метро Чкаловсая , Петроградская , Спортивная . На автомобиле удобный выезд в любой район города через ЗСД.Особенности дома и квартиры:Кирпичное теплое здание в 5 этажей 1901 года постройки с железобетонными перекрытиями после косметического ремонта, без лифта, капремонт дома был в 1963 году. Во дворе находится детский садик, гимназияядом, парковка для авто во дворе, два заезда во двор, мало соседей В квартире надо сделать ремонт по вашим пожеланиям, несущие стены не тронуты, и мокрое место не на кухне. Планировка максимально функциональная. При желании можно сделать конфетку в стиле лофт для аренды, что пользуется популярностью у гостей города.Альтернатива будет нужна - подберем быстро, если очень срочно вы хотите купить свою мечту, то можно обсудить прямую продажу. Два взрослых собственника, в собственности с 1993 года, без обременений, материнский капитал не использовался.Обращайтесь — отвечу на все ваши вопросы и договоримся о просмотре, могу помочь в одобрении ипотеки

Читать полностью

    Для того, чтобы купить однокомнатную квартиру по адресу: м. Чкаловская, ул. Лахтинская, 18, позвоните по телефону +7 (911) 001-79-31. Торопитесь! Объявление №30092275434 о продаже однокомнатной квартиры опубликовано Сегодня.

    Позвонить Написать
    12 900 000 Р164 900 $ или 140 100
    Агент
    +7 (911) 001-79-31
    Начать чат с агентом
    Похожие предложения
    1-к кв. Санкт-Петербург Барочная ул., 3/22 (29.3 м) - Фото 1
    1-к кв. Санкт-Петербург Барочная ул., 3/22 (29.3 м) - Фото 2
    1-комнатная квартира, общая площадь 29м², жилая 7м², кухня 13м²

    Уникальное предложение В самом сердце Петербурга, на тихой улице Петроградской стороны продается квартира с новым дизайнерским ремонтом, новой мебелью, полностью готовая к проживанию.Дом находится в обжитом районе с полностью сформировавшейся инфраструктурой...
    • 29 м²
    • 1-ком
    • 4/6 эт.
    • кирпичный
    13 000 000 Р
    Агент
    +7 (981) Показать номер
    Посмотреть контакты
    Студия Санкт-Петербург ул. Даля, 10Б (29.5 м) - Фото 1
    Студия Санкт-Петербург ул. Даля, 10Б (29.5 м) - Фото 2
    студия, общая площадь 29м², жилая 13м², кухня 3м²

    Покупай сейчас - плати потом На данный объект доступна рассрочка на выгодных условиях Продается просторная видовая студия площадью 29,5 м в современном ЖК Петроградского района, по адресу ул. Даля 10 Б, расположенном между улицей Профессора Попова...
    • 29 м²
    • студия-ком
    • 2/8 эт.
    • кирпичный
    13 500 000 Р
    Агент
    +7 (981) Показать номер
    Посмотреть контакты
    Квартира-студия: Санкт-Петербург, улица Даля, 10Б (30 м) - Фото 1
    Квартира-студия: Санкт-Петербург, улица Даля, 10Б (30 м) - Фото 2
    студия, общая площадь 30м², жилая 26м²

    Арт.Квартира с ремонтом. Проект расположен в Петроградском районе Санкт-Петербурга, на берегу реки Карповка. В радиусе 10 минут пешком находятся магазины, кафе, рестораны, аптеки, пункты выдачи, спортивные объекты, салоны красоты, музеи, Сквер Метеорологов...
    • 30 м²
    • студия-ком
    • 4/6 эт.
    12 990 000 Р
    Агент
    +7 (931) Показать номер
    Посмотреть контакты
    2-к кв. Санкт-Петербург Введенская ул., 10 (45.4 м) - Фото 1
    2-к кв. Санкт-Петербург Введенская ул., 10 (45.4 м) - Фото 2
    2-комнатная квартира, общая площадь 45м², жилая 25м², кухня 6м²

    Код объекта: 1974711.Уютная 2-комнатная квартира в сердце Петроградской стороныКвартира расположена в одном из самых востребованных кварталов Петроградки — так называемом золотом треугольникеайона. Равная удалённость от ключевых станций метро: Горьковская,...
    • 45 м²
    • 2-ком
    • 5/5 эт.
    • кирпичный
    12 999 000 Р
    Агент
    +7 (911) Показать номер
    Посмотреть контакты
    4-к кв. Санкт-Петербург Большая Разночинная ул., 23 (61.8 м) - Фото 1
    4-к кв. Санкт-Петербург Большая Разночинная ул., 23 (61.8 м) - Фото 2
    4-комнатная квартира, общая площадь 61м², жилая 46м², кухня 10м²

    Продаем 4-комнатную квартиру в 5 минутах от станции метро Чкаловская.6 окон, 62 квадратных метра и первый этаж позволяют реализовать любую планировку. Красивый парадный вход с улицы предполагает сразу несколько сценариев использования: жилая квартира,...
    • 61 м²
    • 4-ком
    • 1/4 эт.
    • кирпичный
    13 000 000 Р
    Агент
    +7 (981) Показать номер
    Посмотреть контакты

    Не нашли подходящего объявления?

    Оставьте заявку, и наши риэлторы подберут квартиру в районе Санкт-Петербурга

    (0)