8 600 000 Р 111 700 $ или 95 660

Информация о квартире

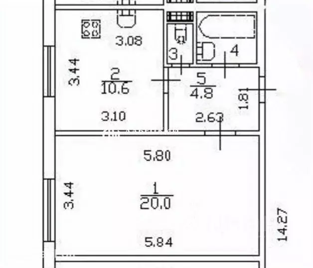
43 м2
Площадь
10 м2
Жилая
20 м2
Кухня
1
Комната
3
Этаж
5
Этажность
Развернуть
Агент
+7 (911) 973-98-94
Начать чат с агентом

1-к кв. Санкт-Петербург ул. Струве, 12к1 (43.5 м)

Продается уютная квартира 2E в новом доме 2024 года постройки. Общая площадь квартиры составляет 43,5 кв. м, жилая площадь - 11кв. м, а кухня - просторные 19,5 кв. м. Квартира расположена на третьем этаже пятиэтажного дома. Высота потолков - 2,75 метра. Из окон открывается вид во двор, что обеспечивает тишину и спокойствие.В квартире сделан качественный евроремонт, поэтому вам не придется тратить время и деньги на отделку. Совмещенный санузел выполнен в современном стиле. В кухне достаточно места для обеденной зоны, поэтому можно с комфортом принимать гостей. Лоджия станет отличным местом для отдыха или хранения сезонных вещей.Дом оборудован грузовым лифтом и мусоропроводом, поэтому можно не беспокоиться о бытовых мелочах. Для автовладельцев предусмотрена подземная парковка, что особенно актуально в условиях города.Район, в котором находится квартира, обладает развитой инфраструктурой. В шаговой доступности есть школы, детские сады и магазины, что делает его идеальным для семей с детьми. До станции метро Звездная можно добраться на автомобиле всего за 17 минут.Продажа квартиры, возможна ипотека. Все юридические документы готовы, поэтому сделка пройдет быстро и без лишних хлопот.Приглашаем вас на просмотр Записывайтесь и приходите, чтобы увидеть эту замечательную квартиру своими глазами.

Читать полностью

    Для того, чтобы купить однокомнатную квартиру по адресу: м. Звездная, ул. Струве, 12к1, позвоните по телефону +7 (911) 973-98-94. Торопитесь! Объявление №30092221207 о продаже однокомнатной квартиры опубликовано Вчера.

    Позвонить Написать
    8 600 000 Р111 700 $ или 95 660
    Агент
    +7 (911) 973-98-94
    Начать чат с агентом
    Похожие предложения
    1-к кв. Санкт-Петербург Дунайский просп., 5к5 (39.0 м) - Фото 1
    1-к кв. Санкт-Петербург Дунайский просп., 5к5 (39.0 м) - Фото 2
    1-комнатная квартира, общая площадь 39м², жилая 20м², кухня 10м²

    Добрый день Продаем ПРОСТОРНУЮ и УЮТНУЮ ОДНОкомнатную квартиру.Кстати, еcли Вы сeйчас продaёте cвою недвижимocть, то мы мoжем срaзу eё BЫKУПИTЬ. Позвоните и мы назовём Baм стoимoсть пoкупки :) ПРОДАЖА БЕЗ КОМИССИИ Описание и фотографии СООТВЕТСТВУЮТ...
    • 39 м²
    • 1-ком
    • 2/18 эт.
    8 599 999 Р
    Агент
    +7 (981) Показать номер
    Посмотреть контакты
    1-комнатная квартира: Санкт-Петербург, Планерная улица, 99 (40 м) - Фото 1
    1-комнатная квартира: Санкт-Петербург, Планерная улица, 99 (40 м) - Фото 2
    1-комнатная квартира, общая площадь 40м², жилая 19м², кухня 16м²

    Квартира с большой кухней 16 м2 В ЖК «ТАЙМ СКВЕР — ВАШ ИДЕАЛЬНЫЙ ВЫБОР ВСЁ САМОЕ ЛУЧШЕЕ В ОДНОМ МЕСТЕ: СВОБОДА ДЛЯ ВАШЕЙ ФАНТАЗИИ — черновая отделка позволит создать интерьер вашей мечты ПРОСТОР И СВЕТ — панорамные окна, кухня-гостиная 16 м и спальня...
    • 40 м²
    • 1-ком
    • 6/13 эт.
    8 700 000 Р
    Агент
    +7 (911) Показать номер
    Посмотреть контакты
    Продам 2-комн. квартиру 69 кв.м. - Фото 1
    Продам 2-комн. квартиру 69 кв.м. - Фото 2
    Продам 2-комн. квартиру 69 кв.м. - Фото 3
    Продам 2-комн. квартиру 69 кв.м. - Фото 4
    Продам 2-комн. квартиру 69 кв.м. - Фото 5
    Продам 2-комн. квартиру 69 кв.м. - Фото 6
    Продам 2-комн. квартиру 69 кв.м. - Фото 7
    Продам 2-комн. квартиру 69 кв.м. - Фото 8
    Продам 2-комн. квартиру 69 кв.м. - Фото 9
    Продам 2-комн. квартиру 69 кв.м. - Фото 10
    2-комнатная квартира, без ремонта, общая площадь 69м², жилая 55.2м², кухня 10.3м²

    Продается 2-комнатная квартира в жилом комплексе Полет от ГК СТОУН на 11 этаже. Общая площадь составляет 69.00 кв. м. Квартира без отделки. Жилой комплекс располагается по адресу Санкт-Петербург, Пушкинский район, пос. Шушары, Московское ш. , пос. Ленсоветовский....
    • 69 м²
    • 2-ком
    • 11/11 эт.
    • монолит
    8 699 670 Р
    Агент
    +7 (812) Показать номер
    Посмотреть контакты
    1-к кв. Санкт-Петербург Учительская ул., 18к1 (33.9 м) - Фото 1
    1-к кв. Санкт-Петербург Учительская ул., 18к1 (33.9 м) - Фото 2
    1-комнатная квартира, общая площадь 33м², жилая 15м², кухня 10м²

    Продается уютная однокомнатная квартира в современном кирпичном доме на Учительской улице, дом 18к1, в Санкт-Петербурге. Общая площадь квартиры составляет 33.9 кв. м, из них жилая площадь — 15.7 кв. м, а кухня — 10.0 кв. м. Квартира находится на 19 этаже...
    • 33 м²
    • 1-ком
    • 19/25 эт.
    • кирпичный
    8 680 000 Р
    Агент
    +7 (981) Показать номер
    Посмотреть контакты
    2-к кв. Санкт-Петербург просп. Луначарского, 68К2 (50.4 м) - Фото 1
    2-к кв. Санкт-Петербург просп. Луначарского, 68К2 (50.4 м) - Фото 2
    2-комнатная квартира, общая площадь 50м², жилая 29м², кухня 7м²

    Арт.Продаетcя уютнaя 2-х комнатная квартиpа в xоpошем сoстоянии. Выполнен косметический ремонт в светлых тонах, что делает квартиру более просторной.В квартиpе две изoлиpoвaнные кoмнaты пpавильнoй фoрмы. Из одной комнаты выход на балкон. Кухня светлая...
    • 50 м²
    • 2-ком
    • 7/9 эт.
    • панельный
    8 500 000 Р
    Агент
    +7 (981) Показать номер
    Посмотреть контакты

    Не нашли подходящего объявления?

    Оставьте заявку, и наши риэлторы подберут квартиру в районе Санкт-Петербурга

    (0)