Реализация объекта недвижимости приостановлена

Информация о квартире

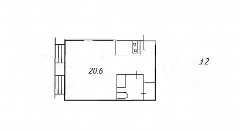
19.0 м2
Площадь
студия
Комнат
2
Этаж
4
Этажность

Дополнительная информация

Тип дома
кирпичный
Развернуть

Студия Санкт-Петербург ул. Константина Заслонова, 8Б (19.5 м)

Апартамент в апарт-отеле Константин, ул. Заслонова 8 — исторический центр, 5 минут пешком до метроПродаётся сервисный апартамент в камерном, точечном апарт-отеле Константин — редкий лот в самом центре Петербурга. Историческая часть города, 5 минут до метро Лиговский проспект, рядом Московский вокзал, Невский проспект, Галерея и улица Рубинштейна.Преимущества апартамента:• Уникальная планировка:огромное окно во всю стену, много света, ощущение пространства; кухня выделена отдельно, зона отдыха и сна— отдельно.• Бутик-формат — около 50 апартаментов:меньше конкурентов, выше загрузка, тише и комфортнее.• Историческое здание после реновации:атмосфера центра + современные инженерии и безопасность.• Полный комплект под ключ:чистовая отделка, мебель, техника, текстиль — объект готов приносить доход сразу.• Профессиональная управляющая компания:устойчивый поток гостей, сервис, отчётность — доход действительно пассивный.• Доходность до 12 годовых• Отдельный кадастровый номер — полноценное право собственности.Локация, которая всегда в спросе3 станции метро, 3 вокзала, музеи, рестораны и деловой центр города в пешей доступности — круглогодичная загрузка гарантирована.Формы покупки: 100 / ипотека. Возможна дистанционная сделка с системой безопасных расчетов, электронная регистрация. Полная сумма в договоре

Читать полностью

    Реализация объекта недвижимости приостановлена

    Не нашли подходящего объявления?

    Оставьте заявку, и наши риэлторы подберут квартиру в районе Санкт-Петербурга

    (0)