Россия, Санкт-Петербург, Усть-Славянка тер., ул. Заводская, 17
7 400 000 Р 92 810 $ или 79 090

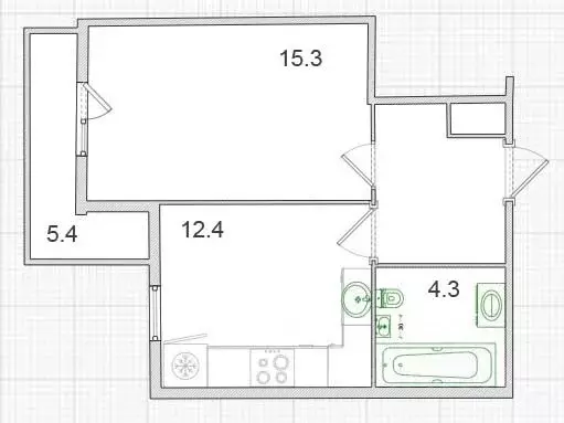
Информация о квартире

35 м2
Площадь
15 м2
Жилая
10 м2
Кухня
1
Комната
27
Этаж
32
Этажность

Дополнительная информация

Тип дома
монолит
Развернуть
Агент
+7 (981) 970-30-84
Начать чат с агентом

1-к кв. Санкт-Петербург Усть-Славянка тер., ул. Заводская, 17 (35.2 м)

Продается видовая однокомнатная квартира - с видом на Неву.Квартира расположена в корпусе Петр Великий на 27 этаже 32-х этажного небоскреба.Дом построен строительной компанией РСТИ в 2019 году на 1 линии, на берегу реки Невы. Из окон открывается чудесный вид на Неву и на зеленую зону. Это позволит круглогодично наслаждаться великолепными видовыми характеристиками и отличной экологией прибрежной зоны.Дом оснащен самыми современными инженерными и коммуникационными системами. Видеонаблюдение, собственная служба ресепшн гарантируют контроль посетителей.Квартира расположена на видовом - 27 этаже.Квартира общей площадью 35,2 кв.м.: комната 15,3 кв.м. и кухня 10,7 кв.м.Просторный балкон с панорамным остеклением в пол 6,3 кв.м.Квартира подготовлена для чистовой отделки - полы выровнены, установлены радиаторы, розетки, в санузле проведена гидроизоляция.Квартира принималась у застройщика с тепловизором, были исправлены все недочеты, допущенные при строительстве.Санузел раздельный, но ванная большая и можно организовать совместный санузел и при входе в квартиру оборудовать гардеробную, что для однокомнатной квартиры отличное решение.Отличная возможность сделать ремонт по своему вкусу и желанию На территории ЖК есть детская и спортивная площадки. Рядом наземный паркинг, много парковочных мест.В шаговой доступности находится школа 566, детский сад 54, медицинские учреждения, продуктовые магазины и прочие социально-значимые объекты инфраструктуры.В 15 минутной транспортной доступности работают торговые центры Эврика , Парад и Диана . Рядом находится спорткомплекс. Рядом набережная Невы (2 минуты пешком), река Славянка (5 минут пешком).Транспортная доступность обеспечивается Советским проспектом, который проходит в 200 м.Добраться до ближайшей ст. метро Рыбацкое можно за 15 минут общественным транспортом (автобусы 189, 327, 115А). Или прогулять пешком около 30 минут.Юридическая сторона:1 взрослый собственник, материнский капитал не использовался при покупке, полная стоимость в договоре, без обременений, в квартире никто не зарегистрирован.Звоните, организуем показ в удобное для Вас время

Читать полностью

    Для того, чтобы купить однокомнатную квартиру по адресу: м. Рыбацкое, Усть-Славянка тер., ул. Заводская, 17, позвоните по телефону +7 (981) 970-30-84. Торопитесь! Объявление №30091948849 о продаже однокомнатной квартиры опубликовано 29 ноября 2025.

    Позвонить Написать
    7 400 000 Р92 810 $ или 79 090
    Агент
    +7 (981) 970-30-84
    Начать чат с агентом
    Похожие предложения
    1-к кв. Санкт-Петербург Усть-Славянка тер., просп. Советский, 41к1 ... - Фото 1
    1-к кв. Санкт-Петербург Усть-Славянка тер., просп. Советский, 41к1 ... - Фото 2
    1-комнатная квартира, общая площадь 40м², жилая 15м², кухня 12м²

    О КВАРТИРЕУютная тихая, чистая квартира с окнами на юго-запад. Не муравейник (на площадке всего 3 квартиры).В квартире всё просторное: - кухня (12,4 кв. метра); - санузел; - прихожая.Огромная лоджия...
    • 40 м²
    • 1-ком
    • 8/23 эт.
    7 500 000 Р
    Агент
    +7 (911) Показать номер
    Посмотреть контакты
    1-к кв. Санкт-Петербург Усть-Славянка тер., просп. Советский, 16 (35.2 ... - Фото 1
    1-к кв. Санкт-Петербург Усть-Славянка тер., просп. Советский, 16 (35.2 ... - Фото 2
    1-комнатная квартира, общая площадь 35м², жилая 16м², кухня 10м²

    В продаже однокомнатная квартира в кирпично-монолитном доме 2020 года постройки. Современный жилой квартал. Вся необходимая инфраструктура. Общая площадь квартиры 35.2 кв.м. Светлая и уютная комната. Просторная кухня. Комфортный 12 этаж. Ждем вас на...
    • 35 м²
    • 1-ком
    • 12/27 эт.
    • монолит
    7 500 000 Р
    Агент
    +7 (921) Показать номер
    Посмотреть контакты
    1-к кв. Санкт-Петербург Усть-Славянка тер., ул. Заводская, 15 (35.9 м) - Фото 1
    1-к кв. Санкт-Петербург Усть-Славянка тер., ул. Заводская, 15 (35.9 м) - Фото 2
    1-комнатная квартира, общая площадь 35м², жилая 12м², кухня 13м²

    Уникальное предложение Балкон значительной площади, который становится полноценной летней гостиной _________________ ХАРАКТЕРИСТИКА ДОМА, КВАРТИРЫ: Продается уникальная 1-комнатная квартира-лофт с огромным балконом и панорамным видом на реку...
    • 35 м²
    • 1-ком
    • 13/24 эт.
    • монолит
    7 300 000 Р
    Агент
    +7 (911) Показать номер
    Посмотреть контакты
    Студия Санкт-Петербург Октябрьская наб., 40 (17.7 м) - Фото 1
    Студия Санкт-Петербург Октябрьская наб., 40 (17.7 м) - Фото 2
    студия, общая площадь 17м², жилая 7м², кухня 5м²

    Арт.Студия с видом на Неву в ЖК Цивилизация на Неве готовый арендный бизнес Продается стильная и функциональная студия площадью 17,7 м в доме бизнес-класса на Октябрьской набережной. - Высокие потолки 3 м создают ощущение простора. - Умная колонка...
    • 17 м²
    • студия-ком
    • 16/24 эт.
    7 300 000 Р
    Агент
    +7 (911) Показать номер
    Посмотреть контакты
    Студия Санкт-Петербург Гончарная ул., 17 (15.0 м) - Фото 1
    Студия Санкт-Петербург Гончарная ул., 17 (15.0 м) - Фото 2
    студия, общая площадь 15м², жилая 5м²

    Готовая студия с ремонтом и полной комплектацией в центре Петербурга — ул. Гончарная, 17.Студия с современным ремонтом и полной комплектацией, заезжай и живи. Жилая недвижимость - возможна регистрация Преимущества квартиры:Полностью меблирована и оснащена...
    • 15 м²
    • студия-ком
    • 2/5 эт.
    • кирпичный
    7 300 000 Р
    Агент
    +7 (911) Показать номер
    Посмотреть контакты

    Не нашли подходящего объявления?

    Оставьте заявку, и наши риэлторы подберут квартиру в районе Санкт-Петербурга

    (0)