10 500 000 Р 132 900 $ или 115 900

Информация о квартире

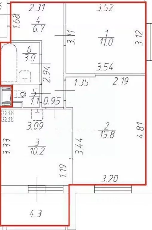
60 м2
Площадь
12 м2
Кухня
2
Комнаты
1
Этаж
5
Этажность

Дополнительная информация

Тип дома
монолит
Развернуть
Агент
+7 (931) 392-55-47
Начать чат с агентом

2-к кв. Санкт-Петербург, Санкт-Петербург, Петергоф ул. Парковая, 14к1 ...

Просторная двухкомнатная квартира в современном микрорайоне предлагает комфортное проживание с продуманной инфраструктурой. Объект отличается удачной планировкой с изолированными комнатами, большой кухней и раздельным санузлом. В квартире выполнен качественный ремонт: установлены натяжные потолки, санузел полностью облицован плиткой. Балкон позволяет использовать дополнительное пространство для отдыха. Значительная часть практичной мебели остается для нового владельца по договоренности. Микрорайон полностью сформирован: в шаговой доступности расположены магазины, аптеки и другие объекты повседневного спроса. 4 детских сада рядом. Малоэтажные застроки. Для прогулок и активного отдыха в пешей доступности находятся ухоженные Александровский и Колонистский парки, а расстояние до Верхнего сада составляет всего четыре километра. В 10 минутах пешком ЖД станция Петергоф, до центра 40 минут на элктричке Квартира реализуется двумя взрослыми собственниками, материнский капитал не использовался, проживающие лица не зарегистрированы. Это надежная инвестиция и готовое решение для жизни без дополнительных затрат и юридических сложностей. Можно сразу заезжать и жить) Код пользователя: 179463Номер в базе:

Читать полностью

    Для того, чтобы купить двухкомнатную квартиру по адресу: м. Проспект Ветеранов, ул. Парковая, 14к1, позвоните по телефону +7 (931) 392-55-47. Торопитесь! Объявление №30091752389 о продаже двухкомнатной квартиры опубликовано 17 ноября 2025.

    Позвонить Написать
    10 500 000 Р132 900 $ или 115 900
    Агент
    +7 (931) 392-55-47
    Начать чат с агентом
    Похожие предложения
    3-к кв. Санкт-Петербург, Санкт-Петербург, Петергоф ул. Парковая, 14к4 ... - Фото 1
    3-к кв. Санкт-Петербург, Санкт-Петербург, Петергоф ул. Парковая, 14к4 ... - Фото 2
    3-комнатная квартира, общая площадь 70м², жилая 39м², кухня 13м²

    Код объекта: 1738563. Уникальное предложение в одном из самых живописных районов Санкт-Петербурга Продаётся трёхкомнатная квартира в Петергофе, на Парковой улице, 14к4.Квартира расположена на пятом этаже пятиэтажного дома, построенного в 2019 году. Общая...
    • 70 м²
    • 3-ком
    • 5/5 эт.
    • монолит
    11 700 000 Р
    Агент
    +7 (981) Показать номер
    Посмотреть контакты
    3-к кв. Санкт-Петербург Дачный просп., 23К6 (70.1 м) - Фото 1
    3-к кв. Санкт-Петербург Дачный просп., 23К6 (70.1 м) - Фото 2
    3-комнатная квартира, общая площадь 70м², жилая 50м², кухня 7м²

    Номер объявления: 20556 - назовите его оператору. Просторная 3-х комнатная квартира 70м2 в Кировском районе.О КВАРТИРЕ:-Расположена на 2 этаже, окна выходят во двор. Перед окнами нет плотной застройки.-Квартира требует косметического ремонта, вся мебель...
    • 70 м²
    • 3-ком
    • 2/3 эт.
    • панельный
    10 450 000 Р
    Агент
    +7 (911) Показать номер
    Посмотреть контакты
    2-к кв. Санкт-Петербург просп. Ветеранов, 179 (47.8 м) - Фото 1
    2-к кв. Санкт-Петербург просп. Ветеранов, 179 (47.8 м) - Фото 2
    2-комнатная квартира, общая площадь 47м², жилая 26м², кухня 10м²

    Арт.В продаже семейная 2-х комнатная квартира в ЖК комфорт-класса Солнечный город от одного из лучших застройщиков города Setl Group.Отличное расположение:Дом находится в окружении нескольких парков - это один из самых зеленых районов города До залива...
    • 47 м²
    • 2-ком
    • 6/8 эт.
    • монолит
    11 500 000 Р
    Агент
    +7 (911) Показать номер
    Посмотреть контакты
    3-к кв. Санкт-Петербург ул. Тамбасова, 8К1 (63.0 м) - Фото 1
    3-к кв. Санкт-Петербург ул. Тамбасова, 8К1 (63.0 м) - Фото 2
    3-комнатная квартира, общая площадь 63м², кухня 6м²

    Продается уютная 3-комнатная квартира в зеленом районе Солнечная квартира общей площадью 62,8 м ждет вас Основные характеристики:• Две смежные комнаты, которые можно легко преобразить под свои нужды.• Застекленный балкон — отличное место для отдыха,...
    • 63 м²
    • 3-ком
    • 8/9 эт.
    • панельный
    10 200 000 Р
    Агент
    +7 (981) Показать номер
    Посмотреть контакты
    2-к кв. Санкт-Петербург Горелово тер., ш. Красносельское, 48 (56.3 м) - Фото 1
    2-к кв. Санкт-Петербург Горелово тер., ш. Красносельское, 48 (56.3 м) - Фото 2
    2-комнатная квартира, общая площадь 56м², жилая 31м², кухня 9м²

    ID: 1915481Продается 2-комнатная чистая ,тёплая и светлая квартира с городской пропиской Квартира продается полностью меблированной, включая две гардеробные и кухню с посудомоечной машиной. Комнаты изолированные правильной формы 14 и 17.2 м.кв.Кухня...
    • 56 м²
    • 2-ком
    • 3/14 эт.
    10 300 000 Р
    Агент
    +7 (911) Показать номер
    Посмотреть контакты

    Не нашли подходящего объявления?

    Оставьте заявку, и наши риэлторы подберут квартиру в районе Санкт-Петербурга

    (0)