13 590 000 Р 167 300 $ или 144 800

Информация о квартире

79 м2
Площадь
46 м2
Жилая
14 м2
Кухня
3
Комнаты
7
Этаж
12
Этажность

Дополнительная информация

Тип дома
панельный
Развернуть
Агент
+7 (981) 974-92-15
Начать чат с агентом

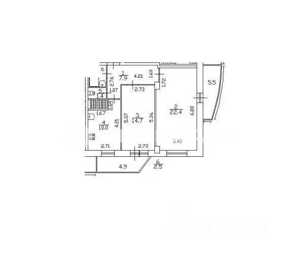
3-к кв. Санкт-Петербург просп. Королева, 48К1 (79.2 м)

Продается уютная, просторная трехкомнатная квартира в Приморском районе СПБ, расположенном по адресу: Россия, Санкт-Петербург, проспект Королёва, 48 к1.Общая площадь квартиры составляет: 79.2 кв. мЖилая площадь 46.9 кв. м ( 15.9+11,1+19,9)Просторная кухня 14.7 кв. м. Квартира находится на 7 этаже 12-этажного дома, построенного в 1989 году. Высота потолков 2.65 метра.Комнаты светлые и просторные, окна выходят как на улицу, так и во двор, создавая уютную и тихую атмосферу. В квартире Раздельный санузел. Есть Балкон, где можно приятно проводить время на свежем воздухе.Дом оборудован пассажирским и грузовым лифтами, а также пандусом для удобства передвижения. Наземная парковка рядом с домом избавит вас от проблем с поиском места для автомобиля.В пешей доступности от дома находятся школы, детские сады и магазины, поэтому все необходимое для комфортной жизни будет у вас под рукой. До метро можно дойти за 23 минуты, что позволяет легко добраться до любой точки города. Так же отлично работает наземный транспорт.Квартира продается без обременений, документы полностью готовы к сделке. Возможна покупка в ипотеку, поэтому вы сможете выбрать удобный для вас способ приобретения.Записывайтесь на просмотр и убедитесь в привлекательности этого предложения сами. Мы будем рады показать вам квартиру в удобное для вас время

Читать полностью

    Для того, чтобы купить трехкомнатную квартиру по адресу: м. Комендантский проспект, Королева пр-кт., 48К1, позвоните по телефону +7 (981) 974-92-15. Торопитесь! Объявление №30091660716 о продаже трехкомнатной квартиры опубликовано Вчера.

    Позвонить Написать
    13 590 000 Р167 300 $ или 144 800
    Агент
    +7 (981) 974-92-15
    Начать чат с агентом
    Похожие предложения
    2-к кв. Санкт-Петербург просп. Королева, 63к2 (58.9 м) - Фото 1
    2-к кв. Санкт-Петербург просп. Королева, 63к2 (58.9 м) - Фото 2
    2-комнатная квартира, общая площадь 58м², жилая 37м², кухня 10м²

    Код объекта: 1888408. Продаётся 2 комнатная видовая квартира в ЖК Юбилейном квартале Прямая продажа, без обременения. Квартира полностью укомплектована, все остается, готова для проживания, заезжай и живи. Большие светлые комнаты, два балкона, раздельный...
    • 58 м²
    • 2-ком
    • 24/24 эт.
    • кирпичный
    13 000 000 Р
    Агент
    +7 (911) Показать номер
    Посмотреть контакты
    Хайфлэт, дизайн, потолки 3.6, терраса - Фото 1
    Хайфлэт, дизайн, потолки 3.6, терраса - Фото 2
    Хайфлэт, дизайн, потолки 3.6, терраса - Фото 3
    Хайфлэт, дизайн, потолки 3.6, терраса - Фото 4
    Хайфлэт, дизайн, потолки 3.6, терраса - Фото 5
    Хайфлэт, дизайн, потолки 3.6, терраса - Фото 6
    Хайфлэт, дизайн, потолки 3.6, терраса - Фото 7
    Хайфлэт, дизайн, потолки 3.6, терраса - Фото 8
    Хайфлэт, дизайн, потолки 3.6, терраса - Фото 9
    Хайфлэт, дизайн, потолки 3.6, терраса - Фото 10
    Хайфлэт, дизайн, потолки 3.6, терраса - Фото 11
    Хайфлэт, дизайн, потолки 3.6, терраса - Фото 12
    Хайфлэт, дизайн, потолки 3.6, терраса - Фото 13
    Хайфлэт, дизайн, потолки 3.6, терраса - Фото 14
    Хайфлэт, дизайн, потолки 3.6, терраса - Фото 15
    Хайфлэт, дизайн, потолки 3.6, терраса - Фото 16
    Хайфлэт, дизайн, потолки 3.6, терраса - Фото 17
    Хайфлэт, дизайн, потолки 3.6, терраса - Фото 18
    Хайфлэт, дизайн, потолки 3.6, терраса - Фото 19
    Хайфлэт, дизайн, потолки 3.6, терраса - Фото 20
    1-комнатная квартира, общая площадь 42м², жилая 11м², кухня 15м²

    Предлагается к продаже уникальный вариант в доме повышенного класса комфортности Ариосто в Приморском районе. Квартира с новым стильным ремонтом, функционалом умного дома, продуманной планировкой формата хайфлэт - потолки 3. 6 м с окнами в пол и большой...
    • 42 м²
    • 1-ком
    • 12/12 эт.
    14 950 000 Р
    PRO
    +7 (909) Показать номер
    Агентство
    АН Номер Один
    Посмотреть контакты
    1-к кв. Санкт-Петербург ул. Плесецкая, 4 (44.0 м) - Фото 1
    1-к кв. Санкт-Петербург ул. Плесецкая, 4 (44.0 м) - Фото 2
    1-комнатная квартира, общая площадь 44м², жилая 14м², кухня 12м²

    Продаётся видовая 1-комнатная квартира с гардеробной в премиальном ЖК Ариосто Архитектура вдохновения. Жилой комплекс Ариосто создан по канонам итальянского Ренессанса, а его прообразом стала знаменитая вилла Фарнезе в Капрароле. Это не просто дом,...
    • 44 м²
    • 1-ком
    • 10/13 эт.
    • кирпичный
    13 650 000 Р
    Агент
    +7 (909) Показать номер
    Посмотреть контакты
    2-к кв. Санкт-Петербург Парашютная ул., 54 (54.0 м) - Фото 1
    2-к кв. Санкт-Петербург Парашютная ул., 54 (54.0 м) - Фото 2
    2-комнатная квартира, общая площадь 54м², кухня 8м²

    ПРОСТОРНАЯ КВАРТИРА , БЕЗ ОБРЕМЕНЕНИЙ, ПОМОЖЕМ С ОДОБРЕНИЕМ ИПОТЕКИ И СТРАХУЕМ ПРАВА СОБСТВЕННОСТИ И ПРАВА ВЛАДЕНИЯ.Предлагается светлая и просторная квартира площадью 61 м с изолированной планировкой, лоджией с утеплением, теплым полом и теплым остеклением....
    • 54 м²
    • 2-ком
    • 16/19 эт.
    • монолит
    13 300 000 Р
    Агент
    +7 (921) Показать номер
    Посмотреть контакты
    2-к кв. Санкт-Петербург Планерная ул., 91к2 (63.9 м) - Фото 1
    2-к кв. Санкт-Петербург Планерная ул., 91к2 (63.9 м) - Фото 2
    2-комнатная квартира, общая площадь 63м², кухня 12м²

    Продается двухкомнатная квартира в жилом комплексе комфорт-класса Нью Тайм от топового застройщика.О ЛОКАЦИИ:Зеленый экологически чистый современный комфортабельный район. Комплексная застройка с садами, школами, мед учреждениями, паркингами и разнообразной...
    • 63 м²
    • 2-ком
    • 7/13 эт.
    13 000 000 Р
    Агент
    +7 (986) Показать номер
    Посмотреть контакты

    Не нашли подходящего объявления?

    Оставьте заявку, и наши риэлторы подберут квартиру в районе Санкт-Петербурга

    (0)