Реализация объекта недвижимости приостановлена

Информация о квартире

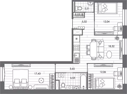
77.0 м2
Площадь
41.0 м2
Жилая
18.0 м2
Кухня
3
Комнаты
5
Этаж
8
Этажность
Развернуть

3-комнатная квартира: Санкт-Петербург, набережная реки Карповки, 31к1 ...

Apт.2526877. 3-комн. квартира от застройщика в ЖК Северная корона на 5 этаже. Квартира без отделки, после выдачи ключей можно делать ремонт. Общая площадь: 77.1 кв.м., жилая: 41.53 кв.м., площадь просторной кухни-столовой: 18.32 кв.м. Квартира - распашонка, без проходных комнат, окна выходят на paзные стороны дома. В квартире один совмещенный и один раздельный санузел. Высота потолков 3.0 м. Квартира находится в корпусе 6. Дом монолитный, одноподъездный, высотой 8 этажей. На этаже 6 квартир. В подъезде 1 грузовой лифт. В настоящее время строительство окончено, дом сдан в 4 квартале 2023 года. Оформление сделки по договору купли-продажи. В шаговой доступности от жилого комплекса находятся станции метро (расстояние по прямой): «Петроградская (500 м), «Чкаловская (1.3 км), «Горьковская (1.7 км), «Чёрная речка (1.7 км), также недалеко от этого корпуса расположены станции метро: «Чернышевская , «Спортивная . Премиальный жилой комплекс Северная коронаасположился в парадной части Петроградской стороны на пересечении ее главного проспекта — Каменноостровского и набережной реки Карповки.Двухсотметровое парадное лобби, дизайнерский ландшафт, собственная фитнес-студия, парадная гостиная для встреч и переговоров, игровой клуб для детей. А также: системы очистки и подготовки воды и воздуха, консьерж-сервис, бесключевой доступ, помещения для ожидания и многое другое.Архитектура премиального дома «Северная корона — это современное воплощение и новое развитие архитектуры северного модерна. Особенность и уникальность дома в его протяженности вдоль реки Карповки. Фасад исключает монотонность, линии интегрированы в канву курдонера и внутренних общественных пространств, обращённых как в сторону Каменноостровского проспекта, так и Иоановского монастыря. Все квартиры в полной мере можно назвать видовыми – они открыты историческому окружению и ландшафтной архитектуре. Что дарит владельцам единственные в своем роде захватывающие виды.Этажность: 4 - 9 этажей (в т.ч. 1 подземный)Дом СДАН.Класс проекта: Премиум – класс Уникальность проекта:- Французские балконы- Видовые квартиры- Панорамное остекление- Потолки до 3,5 метров- Мансардные окна- Индивидуальные сплит шахты- Считывание номеров автомобилей- Современная архитектура и инженерия- Двор парк- Центральное лобби 200 кв.м.

Читать полностью

    Реализация объекта недвижимости приостановлена

    Не нашли подходящего объявления?

    Оставьте заявку, и наши риэлторы подберут квартиру в районе Санкт-Петербурга

    (0)