Россия, Санкт-Петербург, Малая Балканская ул., 40К1

Реализация объекта недвижимости приостановлена

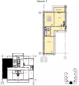
Информация о квартире

50.0 м2
Площадь
30.0 м2
Жилая
7.0 м2
Кухня
2
Комнаты
4
Этаж
9
Этажность

Дополнительная информация

Тип дома
панельный
Развернуть

2-к кв. Санкт-Петербург Малая Балканская ул., 40К1 (50.7 м)

Продается уютная двухкомнатная квартира в панельном доме на 4-м этаже. Общая площадь составляет 50.7 кв. м, из которых 30 кв. м — жилая площадь и 7 кв. м — кухня. Из окон открывается вид на оживленную улицу. Дом оборудован пассажирским лифтом и мусоропроводом, а рядом находится удобная наземная парковка.Квартира без ремонта, что дает вам возможность оформить её по своему вкусу и создать идеальное пространство для жизни. Планировка включает в себя две светлые комнаты и кухню. Есть один отдельный санузел и балкон, где можно устроить уютное место для отдыха.Дом расположен в районе с развитой инфраструктурой. В пешей доступности находятся школы, детские сады и магазины, что делает этот вариант идеальным для семей с детьми. До ближайшей станции метро можно дойти за 19 минут, что удобно для ежедневных поездок на работу или учебу.Квартира продается по договору купли-продажи. Все документы готовы к сделке, обременений нет. Ипотека возможна, поэтому вы можете рассчитывать на удобные условия покупки.Приглашаем вас на просмотр этой замечательной квартиры Это отличная возможность создать дом своей мечты в районе с хорошей инфраструктурой. Записывайтесь на просмотр уже сегодня

Читать полностью

    Реализация объекта недвижимости приостановлена

    Не нашли подходящего объявления?

    Оставьте заявку, и наши риэлторы подберут квартиру в районе Санкт-Петербурга

    (0)