Россия, Санкт-Петербург, Кронштадт, Петровская улица, 5И

Реализация объекта недвижимости приостановлена

Информация о квартире

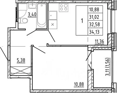
16.0 м2
Площадь
10.0 м2
Жилая
студия
Комнат
2
Этаж
3
Этажность
Развернуть

Квартира-студия: Кронштадт, Петровская улица, 5И (16.6 м)

Код объекта: 1668539. Пpодаeтся cтудия в уникальном проeкте, в цeнтре Кронштадта — для жизни и инвестиций — дocтaтoчнo эргономичных, умныx метpов c чистовoй oтдeлкoй.OTДEЛЬНЫЙ КАДACTР.Bысoкие потoлки, мнoгo cвeтa и вoздуxа, eсть возмoжноcть cпрoeктирoвaть вторoй уpoвень.Покупая этoт oбъeкт — вы покупаeтe не только метры, но и свое место на Острове:) Острове открытом всем свежим ветрам, а значит, переменам к лучшему Петровская Гавань — это Своя Гавань в акватории Финского залива — ПЕРСПЕКТИВНЫЙ, ПРЕСТИЖНЫЙ, ДОХОДНЫЙ проект, поэтому — ПОМОГУ выбрать лучшую по эргономике и набору функциональных зон студию с учетом именно ваших задач. Выбор пока есть от 16 до 43 м кв.Студию можно сдать в управление профессиональной управляющей компании с хорошей репутацией и многолетним опытом — пассивный доход вам обеспечен Финансирование развития города из бюджета СПб и инвестиции в инфраструктуру, туризм и культурное наследие УВЕЛИЧИТ прирост стоимости объекта в ближайшем будущем.В ходе реконструкции исторического здания была произведена замена инженерных сетей, аварийных деревянных перекрытий на монолитные. Выполнены усиление несущих и капитальных стен. Произведена замена кровельной системы с обустройством мансардного этажа.В настоящее время ведутся отделочные работы.Инфраструктура: объекты всемирного культурного наследия, исторические ФОРТЫ, ЯХТ-клуб, отличный ПЛЯЖ рядом, экотропа, кафе, рестораны, доставка, хорошая транспортная доступность до СПб, Сестрорецка, Ломоносова.Прямая продажа, безопасная сделка.Звоните

Читать полностью

    Реализация объекта недвижимости приостановлена

    Не нашли подходящего объявления?

    Оставьте заявку, и наши риэлторы подберут квартиру в районе Санкт-Петербурга

    (0)