9 514 056 Р 119 900 $ или 102 400

Информация о квартире

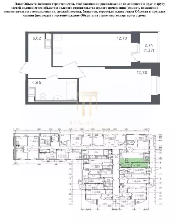
36 м2
Площадь
13 м2
Жилая
12 м2
Кухня
1
Комната
2
Этаж
12
Этажность
Развернуть
Агент
+7 (984) 231-94-87
Начать чат с агентом

1-к кв. Санкт-Петербург пос. Шушары, Клюква Парк жилой комплекс (36.7 ...

Продается 1-к квартира без отделки в ЖК Клюква.Парк .Общая площадь квартиры — 36.7 кв. м, этаж 2 из 12.Тип дома — монолитный.Цена указана при 100 оплате.Современная архитектура, благоустроенная территория с зонами для отдыха и развитая инфраструктура — все это обеспечит высокий уровень удобства проживания в новом жилом проекте Клюква.Парк от Группы Эталон . Комплекс строится в Пушкинском районе, п. Шушары, вблизи исторических пригородов Санкт-Петербурга и крупных городских магистралей. Социальные объекты — школа, детский сад, поликлиника — находятся в шаговой доступности. Фасады здания выполнены в контрастной цветовой гамме. Основные цвета белый, серый, светло-коричневый. Ритмичность фасадов подчеркивается чередованием вертикальных плоскостей остекления лоджий с участками наружных стен в сочетании с цветовой палитрой. Лоджии и балконы остеклены витражами. Наружные стены выполнены с покраской. Применены разные цветовые приемыастяжки, контрастные акценты. Фасад разделен на несколько пропорциональных горизонтальных и вертикальных частей, с выделенной нижней и верхней частью. Благоустроенный внутренний двор станет любимым местом отдыха для взрослых и детей. Уютные зоны для отдыха и спорта, пространство для игр позволят скоротать досуг и насладиться свежим воздухом. На первых этажах жилого комплекса расположатся коммерческие помещения, где будут открыты кафе, салоны красоты, продуктовые магазины и предприятия бытового обслуживания.В проекте представлены квартиры разных размеров, от студий до трехкомнатных квартир. Запроектированы как классические планировки, так и планировки форматах евро с просторными кухнями-гостиными.В каждой квартире просторные санузлы с возможностью установки ванны.

Читать полностью
    Позвонить Написать
    9 514 056 Р119 900 $ или 102 400
    Агент
    +7 (984) 231-94-87
    Начать чат с агентом
    Похожие предложения
    1-к кв. Санкт-Петербург пос. Шушары, Клюква Парк жилой комплекс (37.7 ... - Фото 1
    1-к кв. Санкт-Петербург пос. Шушары, Клюква Парк жилой комплекс (37.7 ... - Фото 2
    1-комнатная квартира, общая площадь 37м², жилая 11м², кухня 16м²

    Продается 1-к квартира без отделки в ЖК Клюква.Парк .Общая площадь квартиры — 37.7 кв. м, этаж 2 из 12.Тип дома — монолитный.Цена указана при 100 оплате.Современная архитектура, благоустроенная территория с зонами для отдыха и развитая инфраструктура...
    • 37 м²
    • 1-ком
    • 2/12 эт.
    9 593 929 Р
    Агент
    +7 (984) Показать номер
    Посмотреть контакты
    1-к кв. Санкт-Петербург пос. Шушары, Клюква Парк жилой комплекс (37.3 ... - Фото 1
    1-к кв. Санкт-Петербург пос. Шушары, Клюква Парк жилой комплекс (37.3 ... - Фото 2
    1-комнатная квартира, общая площадь 37м², жилая 11м², кухня 16м²

    Продается 1-к квартира без отделки в ЖК Клюква.Парк .Общая площадь квартиры — 37.3 кв. м, этаж 2 из 12.Тип дома — монолитный.Цена указана при 100 оплате.Современная архитектура, благоустроенная территория с зонами для отдыха и развитая инфраструктура...
    • 37 м²
    • 1-ком
    • 2/12 эт.
    9 538 161 Р
    Агент
    +7 (984) Показать номер
    Посмотреть контакты
    1-к кв. Санкт-Петербург просп. Большевиков, 66к3 (36.9 м) - Фото 1
    1-к кв. Санкт-Петербург просп. Большевиков, 66к3 (36.9 м) - Фото 2
    1-комнатная квартира, общая площадь 36м², жилая 11м², кухня 18м²

    Продается 1-комнатная квартира в ЖК Октябрьская набережная на 15 этаже. Общая площадь составляет 36.90 кв. м. Квартира с чистовой отделкой . Жилой комплекс Октябрьская набережнаяасполагается по адресу Санкт-Петербург, Невский.Октябрьская набережная...
    • 36 м²
    • 1-ком
    • 15/25 эт.
    • монолит
    9 575 550 Р
    Агент
    +7 (989) Показать номер
    Посмотреть контакты
    1-к кв. Санкт-Петербург просп. Большевиков, 66к4 (36.9 м) - Фото 1
    1-к кв. Санкт-Петербург просп. Большевиков, 66к4 (36.9 м) - Фото 2
    1-комнатная квартира, общая площадь 36м², жилая 11м², кухня 18м²

    Продается 1-комнатная квартира в ЖК Октябрьская набережная на 15 этаже. Общая площадь составляет 36.90 кв. м. Квартира с чистовой отделкой . Жилой комплекс Октябрьская набережнаяасполагается по адресу Санкт-Петербург, Невский.Октябрьская набережная...
    • 36 м²
    • 1-ком
    • 15/25 эт.
    • монолит
    9 486 990 Р
    Агент
    +7 (989) Показать номер
    Посмотреть контакты
    1-к кв. Санкт-Петербург Живи в Рыбацком жилой комплекс, 5 (35.76 м) - Фото 1
    1-к кв. Санкт-Петербург Живи в Рыбацком жилой комплекс, 5 (35.76 м) - Фото 2
    1-комнатная квартира, общая площадь 35м², жилая 12м², кухня 12м²

    Арт. Продаем 1 комнатную квартиру европланировки по переуступке в ЖК Живи в Рыбацком от надежного застройщика Самолет . Данная квартира — идеальный выбор для тех, кто ценит комфорт и стиль. Кирпично-монолитный дом — надежный и долговечный....
    • 35 м²
    • 1-ком
    • 13/25 эт.
    9 400 000 Р
    Агент
    +7 (911) Показать номер
    Посмотреть контакты

    Не нашли подходящего объявления?

    Оставьте заявку, и наши риэлторы подберут квартиру в новостройке в районе Санкт-Петербурга

    (0)