90 000 000 Р 1 107 100 $ или 963 200

Информация о коттедже

507 м2
Площадь
2
Этажность
15 cоток
Участок

Дополнительная информация

Дом продаётся вместе с участком
есть
Развернуть
Агент
+7 (981) 280-12-88
Начать чат с агентом

Коттедж в Санкт-Петербург, Санкт-Петербург, Пушкин ул. Ломоносова, 65 ...

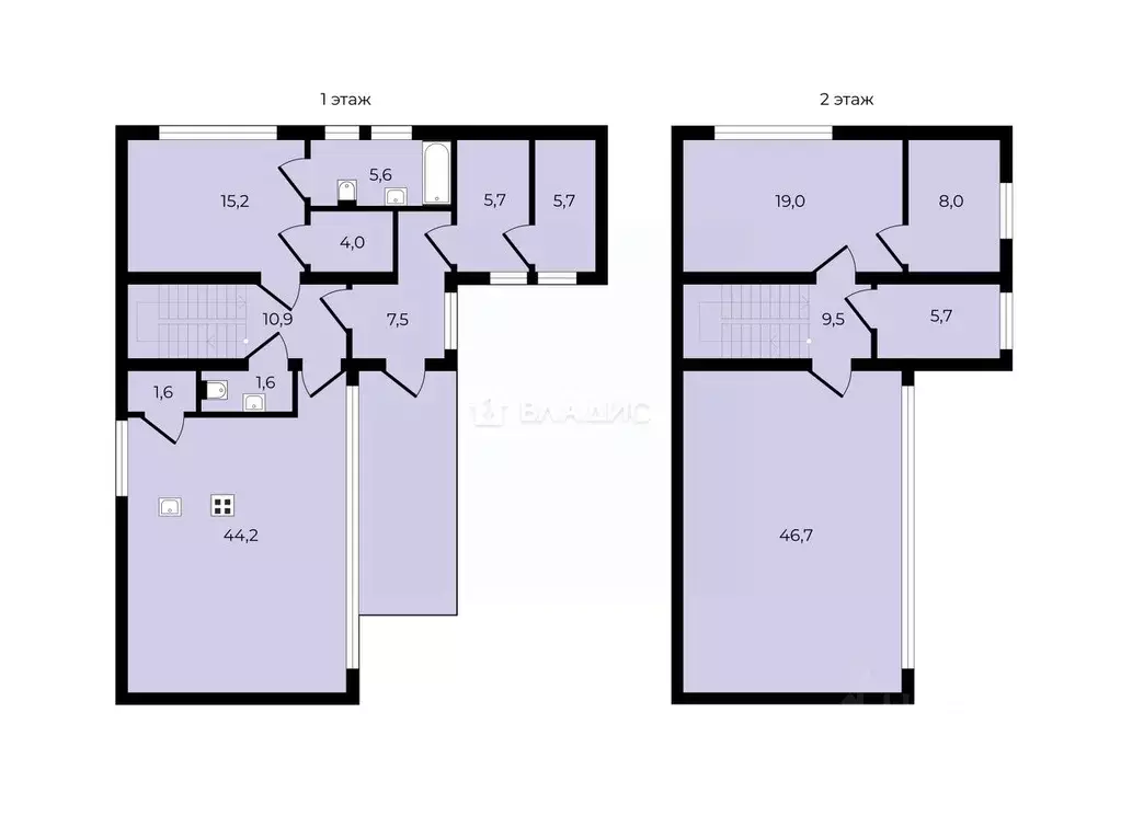
Арт.Уникальное предложение в одном из самых престижных районов Петербурга — построенный с европейской основательностью и русским размахом. Элитный коттеджный комплекс в Пушкине (Царское Село).г. Пушкин (Санкт-Петербург) - район с богатейшей историей, парковой культурой и всей необходимой инфраструктурой (школы, сады, магазины). Для тех, кто ценит безупречное качество, приватность и исторический контекст. -Фундаментальное качество: Строительство на века . Ленточный бетонный фундамент, стены из красного кирпича, монолитные перекрытия, крыша - гибкая битумная черепица. . -Использованы премиальные материалы: финский фасад, панорамные стеклопакеты Lammin.-Простор и свет: Высокие потолки (1-й этаж - 3,13 м; 2-й этаж 4,41 м. ), второй свет, панорамное остекление — ощущение простора и единения с природой участка. -Высокая готовность: Все внутренние коммуникации (вода, канализация) подведены. Осталось только техническое подключение к центральным сетям (все согласования пройдены). Электричество (25 кВт) заведено в дом, выполнена частичная разводка. Газовая труба на участке Выполнен дренаж участка. Имеется топографическая съемка.-Идеальная локация: Тишина и приватность вашей территории в 5 минутах от Павловского парка и Екатерининского дворца. Развитая инфраструктура, отличная транспортная доступность. Городская прописка (г. Санкт-Петербург). Дом: 508 м на двух этажах, с гаражом на 2 машиноместа. Участок 15 соток.Также на участке построен 2-х этажный Гостевой дом общей площадью 220,3 м2., в котором предусмотрены зона SPA с бассейном.Городская прописка Коттедж построен в 2012 году. Прямая продажа. В договоре полная сумма. Действующая ипотека от Сбера.Предлагаем ПРЕМИАЛЬНОЕ обслуживание для требовательных клиентов.Оперативно организуем просмотр, предоставим полную информацию по объекту.20 лет работы с требовательными клиентами подготовили нас к решению ВАШИХ сложных задач.Будем рады знакомству Ул. Рубинштейна, д.8.

Читать полностью

    Для того, чтобы купить 2-этажный коттедж по адресу: м. Купчино, ул. Ломоносова, 65, позвоните по телефону +7 (981) 280-12-88. Торопитесь! Объявление №50016678369 о продаже двухэтажного коттеджа опубликовано 27 марта 2026.

    Позвонить Написать
    90 000 000 Р1 107 100 $ или 963 200
    Агент
    +7 (981) 280-12-88
    Начать чат с агентом
    Похожие предложения
    Дом в Санкт-Петербург Поселок Лисий НОС, ул. Сосновая, 8 (246 м) - Фото 1
    Дом в Санкт-Петербург Поселок Лисий НОС, ул. Сосновая, 8 (246 м) - Фото 2
    2 этажа, общая площадь 245м², участок 6 соток

    Предлагается к продаже дом 245 кв. м в самой востребованной локации, расположенной в 15 минутах от Лахта Центра . На первом этаже просторная гостиная с туннельным камином. Камин выполнен по индивидуальному проекту, отделан цельной плиткой DECORATORI...
    • 2 эт.
    • 245 м²
    • 6 сот.
    89 000 000 Р
    Агент
    +7 (911) Показать номер
    Посмотреть контакты
    Дом в Санкт-Петербург, Санкт-Петербург, Петергоф Санкт-Петербургское ... - Фото 1
    Дом в Санкт-Петербург, Санкт-Петербург, Петергоф Санкт-Петербургское ... - Фото 2
    2 этажа, общая площадь 411м², участок 12 соток

    К продаже представлен и ЖДЁТ своего потенциального ХОЗЯИНА - БРУТАЛЬНЫЙ ЖИЛОЙ ДОМ, расположенный на благоустроенном земельном участке 12 соток в Элитном КП ПЕТЕРГОФСКИЕ ДАЧИ . Посёлок БИЗНЕС КЛАСС, со всеми центральными городскими коммуникациями (электричество,...
    • 2 эт.
    • 411 м²
    • 12 сот.
    90 000 000 Р
    Агент
    +7 (981) Показать номер
    Посмотреть контакты
    Продается дом в Москве - Фото 1
    Продается дом в Москве - Фото 2
    общая площадь 200м², участок 10 соток

    Продается 2-х этажный дом 2021 года постройки, площадью 200 кв.м. В пешей близости от метро улица Дмитриевского. Московская прописка В доме три спальни, большой холл и уютная кухня гостиная с камином. На втором этаже панорамное остекление, большая лоджия...
    • 200 м²
    • 10 сот.
    90 000 000 Р
    Агент
    +7 (926) Показать номер
    Посмотреть контакты
    Продается дом в Москве - Фото 1
    Продается дом в Москве - Фото 2
    общая площадь 260м², участок 8 соток

    Код объекта: 1621517.Продаётся трёхэтажный дом площадью 260 кв. м на участке 8 соток в живописном районе Москве по адресу: 2-я Муравская улица, 4. Дом построен из кирпича в 2021 году, перекрытия монолитные. Отопление осуществляется собственной котельной,...
    • 260 м²
    • 8 сот.
    90 000 000 Р
    Агент
    +7 (499) Показать номер
    Посмотреть контакты
    Продается дом в д. Кезьмино - Фото 1
    Продается дом в д. Кезьмино - Фото 2
    общая площадь 610м², участок 24 сотки

    ID 2603 Охраняемый камерный поселок, окруженный лесным массивом. Полностью застроен, большая часть соседей проживают постоянно. Статус ИЖС, наличие всех необходимых документов. Двухэтажный кирпичный дом с мансардой под ключ . Веранда. Инфраструктура:...
    • 610 м²
    • 24 сот.
    90 000 000 Р
    Агент
    +7 (495) Показать номер
    Посмотреть контакты

    Не нашли подходящего объявления?

    Оставьте заявку, и наши риэлторы подберут купить дом в районе Санкт-Петербурга

    (0)