Россия, Санкт-Петербург, посёлок Парголово

Реализация объекта недвижимости приостановлена

Информация о коттедже

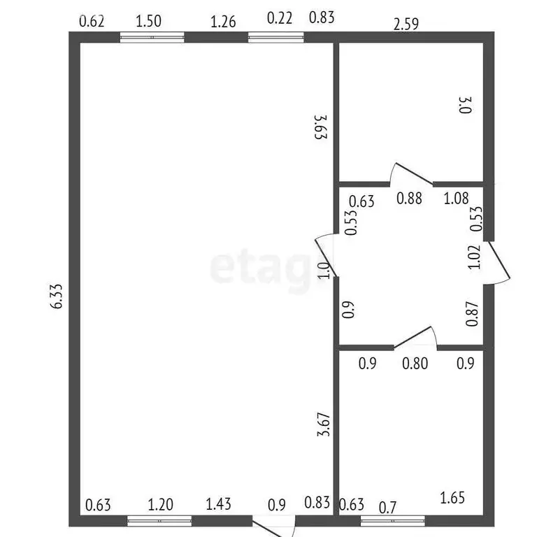
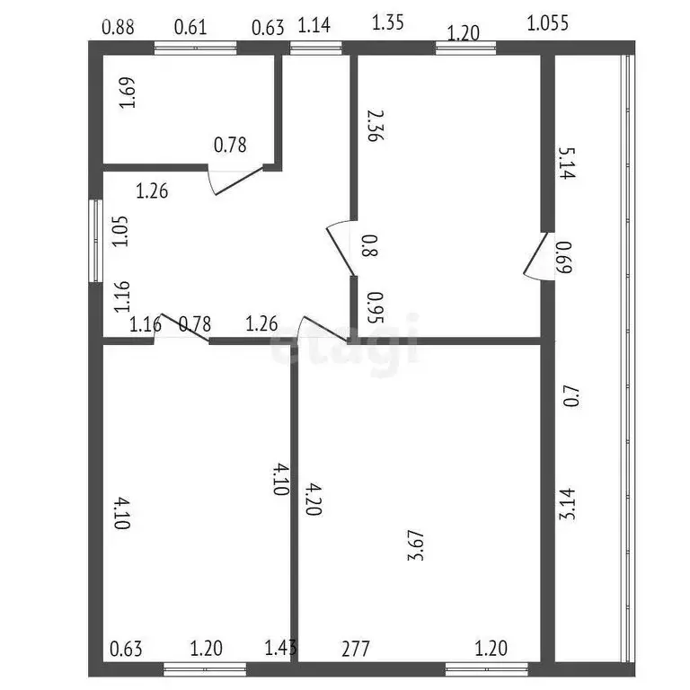
200.0 м2
Площадь
3
Этажность
6.0 cоток
Участок

Дополнительная информация

Дом продаётся вместе с участком
есть
Развернуть

Дом в посёлок Парголово, СНТ Климовец, Берёзовая улица (200 м)

ВАШЕМУ ВНИМАНИЮ два дома на участке 6 сот. с прекрасным расположением.(В данный момент идет процесс внутренней отделки, фотографии будут загружены позднее) Современные технологии: Новый дом построен с использованием монолитной плиты 30 см и высококачественных материалов, имеет просторную планировку, балкон и террасу, а также удобную парковку.Земельный участок площадью 6 соток в престижном Выборгском районе, в СНТ Климовец, пос. Парголово, на котором расположены два жилых дома, один дом готов к круглогодичному проживанию, что делает это предложение идеальным для большой семьи или для тех, кто хочет получать доход от аренды, а второй дом в процессе преобразования. Преимущества данного объекта:Два дома: Новый современный дом площадью 200 кв.м. и уютный деревянный дом 60 кв.м. — идеальный вариант для комфортной жизни и отдыха.Высокое расположение: Участок находится на возвышенности, что обеспечивает отличный дренаж и абсолютную сухость в любое время года.Уютный деревянный дом - крепкая постройка на ленточном фундаменте с собственной парковкой, где можно наслаждаться атмосферой загородной жизни.Баня на участке является идеальным местом для отдыха и восстановления сил после трудового дня.Коммуникации:Установлена современная канализация (кольца, септик), что обеспечивает комфортное проживание.Городская прописка: Возможность постоянной регистрации.Легкий заезд с КАД (пр. Энгельса и Выборгское шоссе), охраняемая территория с круглосуточной охраной для вашего спокойствия.В шаговой доступности городской транспорт до станций метро Парнас и Проспект Просвещения , магазины, аптеки, школы и детские сады — все для комфортной жизни вашей семьи. Земли населенных пунктов, что позволяет получить постоянную регистрацию. Один совершеннолетний собственник, без обременений.Это идеальное решение для:- Больших семей, желающих жить в комфорте и уюте.- Людей, ценящих высокое качество жизни и удобство.- Тех, кто хочет наслаждаться загородной жизнью, не отказываясь от городской инфраструктуры.Не упустите возможность стать владельцем этого замечательного объекта ЗВОНИТЕ ПРЯМО СЕЙЧАС С радостью отвечу на ваши вопросы и проведу показ Вашего нового дома Номер в базе: 3915546. Код пользователя: 153718

Читать полностью

    Реализация объекта недвижимости приостановлена

    Не нашли подходящего объявления?

    Оставьте заявку, и наши риэлторы подберут купить дом в районе Санкт-Петербурга

    (0)