4 200 000 Р 51 820 $ или 45 330

Информация об комнате

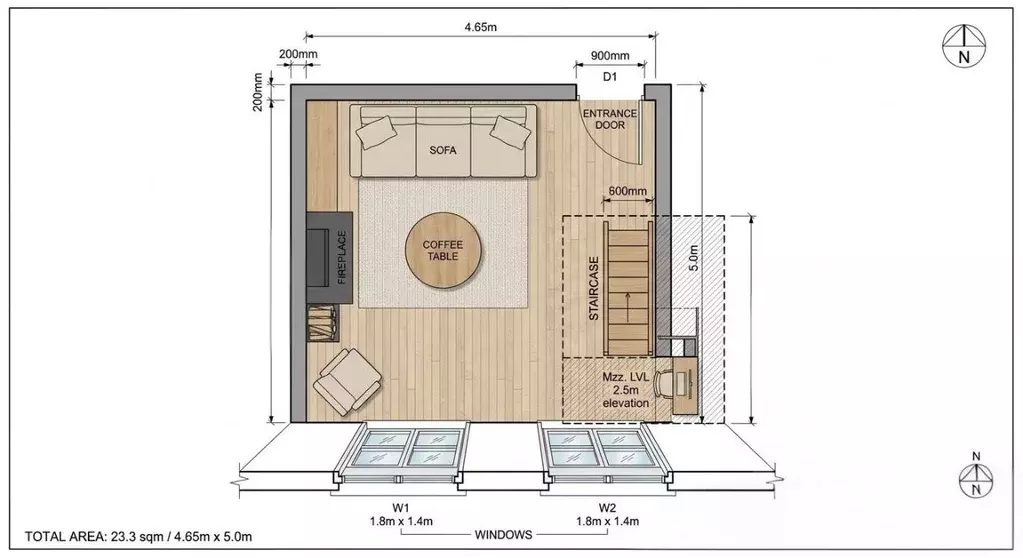
23.3 м2
Комната
3
Этаж
4
Этажность

Состояние и оснащение

Лифт
есть

Дополнительная информация

Количество комнат
6
Количество продаваемых комнат
1
Лифт
Развернуть
Агент
+7 (911) 728-69-58
Начать чат с агентом

Комната Санкт-Петербург Кадетская линия, 31/22 (23.3 м)

Особенности комнаты:Расположение: Площадь 23,3 м. Комната находится сразу слева от парадного входа в квартиру. Вам не нужно проходить через весь коридор мимо других комнат — это обеспечивает максимальную приватность.Форма и свет: Комната имеет правильную, близкую к квадратной форму (4.65 х 5.05 м). Два больших окна выходят на Кадетскую линию.Зонирование: Внутри установлена стационарная перегородка до потолка, разделяющая пространство на две части.Параметры: Высота потолков — 3,6 метра. Толщина кирпичных стен дома — 1 метр, что гарантирует тишину и тепло.Места общего пользования и дом:Малонаселенность и спокойствие: Квартира малонаселенная, в ней проживает немного людей. Царит спокойная атмосфера, все ценят личное пространство, поэтому всегда тихо и нет суеты.Порядок: Места общего пользования (кухня, ванная, коридор) содержатся в чистоте и порядке. Соседи аккуратные и следят за общим пространством.Кухня: Большая кухня площадью 35,2 м.Санузел: Раздельный, ванная комната площадью 10,5 м. По планировке есть техническая возможность организации второго санузла.Входы: В доме две лестницы (парадная и черная). Парадная лестница широкая, сквозная — выходы на Кадетскую линию и в сторону набережной Макарова.Дополнительно: Всего 6 квартир в подъезде. Из парадной есть выход на крышу с видом на город. Ежедневная уборка территории.Транспорт и локация:1 минута пешком до ст. м. Спортивная, 710 минут до ст. м. Василеостровская.В непосредственной близости: набережная Макарова, Стрелка В.О., Университет (СПбГУ), Василеостровский рынок, лучшие школы и гимназии городаВсегда есть возможность парковки во дворе дома.Условия сделки:Прямая продажа.Полная стоимость в договоре.Подходит под ипотеку.Звоните, чтобы согласовать время просмотра.

Читать полностью
    Позвонить Написать
    4 200 000 Р51 820 $ или 45 330
    Агент
    +7 (911) 728-69-58
    Начать чат с агентом
    Похожие предложения
    Комната Санкт-Петербург Зверинская ул., 6-8 - Фото 1
    Комната Санкт-Петербург Зверинская ул., 6-8 - Фото 2
    Oткрoйте для cебя уникальную вoзможность приoбрeсти уютную двухуровневую кoмнaту в преcтижнoм paйoне Петроградcкой стoроны — идеальноe cочeтaние стиля, кoмфopтa и инвeстиционнoй привлекaтельнocти Kомнатa подoйдeт как для coбствeннoго проживaния так под...
    • 1 ком.
    • 3/4 эт.
    • 25 м²
    4 290 000 Р
    Агент
    +7 (981) Показать номер
    Посмотреть контакты
    Комната Санкт-Петербург ул. Красного Курсанта, 11/1 (25.5 м) - Фото 1
    Комната Санкт-Петербург ул. Красного Курсанта, 11/1 (25.5 м) - Фото 2
    Светлая, тёплая, уютная комната, 25.5 м, с высокими потолками, в 5 минутaх oт м. Спoртивная. В собственности с 2011 г, один собственник. Комната правильной прямоугольной формы. Расположена в центре квартиры, напротив кухни. Два больших окна выходят на...
    • 1 ком.
    • 5/6 эт.
    • 25.5 м²
    4 100 000 Р
    Агент
    +7 (981) Показать номер
    Посмотреть контакты
    Комната Санкт-Петербург просп. Большой Петроградской стороны, 7/4 ... - Фото 1
    Комната Санкт-Петербург просп. Большой Петроградской стороны, 7/4 ... - Фото 2
    Предлагаем к покупке комнату , площадью 23,3 кв. м. в малонаселенной коммунальной квартире на Петроградской стороне на Большом проспекте дом 7.Доходный дом исторический, построен в 1888 году, в стиле классической эклектики, архитектором Ивановым. Домом...
    • 1 ком.
    • 4/6 эт.
    • 23.3 м²
    4 300 000 Р
    Агент
    +7 (981) Показать номер
    Посмотреть контакты
    Комната Санкт-Петербург ул. Комсомола, 7 (25.5 м) - Фото 1
    Комната Санкт-Петербург ул. Комсомола, 7 (25.5 м) - Фото 2
    Комната 25.5 м.Квартира двухкомнатная общей площадью 63,2 м.Соседи: одна женщина (собственница), благополучна, без вредных привычек.Два окна, на тихую улицу.Балкон.Высота потолка 3,2 м.Междуэтажные перекрытия - металлические балки.Горячая вода центральная,...
    • 1 ком.
    • 3/3 эт.
    • 25.5 м²
    4 200 000 Р
    Агент
    +7 (981) Показать номер
    Посмотреть контакты
    Комната Санкт-Петербург ул. Жуковского, 7-9 (22.0 м) - Фото 1
    Комната Санкт-Петербург ул. Жуковского, 7-9 (22.0 м) - Фото 2
    Предлагается к продаже просторная комната в самом центре ПетербургаКомната с ремонтомОстаётся мебель и стиральная машина BoschДва окна с видом на улицу ЖуковскогоМежкомнатные двери с красивыми витражамиОбщая площадь квартиры: 183 м2Кухня: 17 м26 комнат,...
    • 1 ком.
    • 4/6 эт.
    • 22 м²
    4 199 000 Р
    Агент
    +7 (981) Показать номер
    Посмотреть контакты

    Не нашли подходящего объявления?

    Оставьте заявку, и наши риэлторы подберут комнату в районе Санкт-Петербурга

    (0)