17 000 000 Р 209 500 $ или 182 000

Информация об комнате

99 м2
Комната
3
Этаж
4
Этажность

Состояние и оснащение

Лифт
есть

Дополнительная информация

Количество комнат
6
Количество продаваемых комнат
1
Лифт
Развернуть
Агент
+7 (981) 897-28-91
Начать чат с агентом

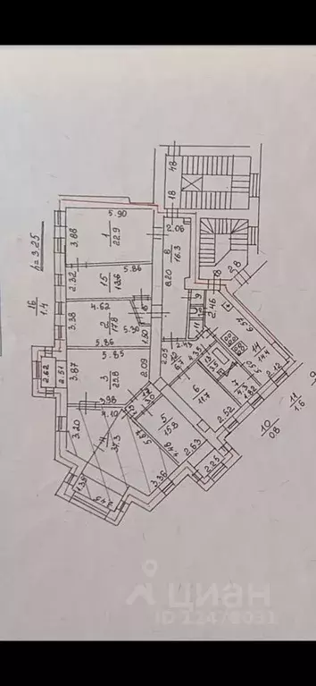
Комната Санкт-Петербург ул. Чапаева, 11/4 (99.0 м)

5 изолированных комнат в коммунальной квартире с отдельным стояком. Эти комнаты можно отделить от остального блока в квартире, оборудовать свои санузлы, т. к. в квартиру 2 входа. Покупателю достанется парадный вход. Комнаты принадлежат разным собственникам, возможен поэтапный выкуп.Потолки 3.15. В долях покупатель приобретает 992/1332 долей от общей площади 208.6 кв. м.Сделка у нотариуса.

Читать полностью
    Позвонить Написать
    17 000 000 Р209 500 $ или 182 000
    Агент
    +7 (981) 897-28-91
    Начать чат с агентом
    Похожие предложения
    Комната Санкт-Петербург наб. Лейтенанта Шмидта, 13 (52.6 м) - Фото 1
    Комната Санкт-Петербург наб. Лейтенанта Шмидта, 13 (52.6 м) - Фото 2
    Уникальное предложение в сердце Петербурга Продаются три комнаты, площадью 17.2+14.5+20.9 кв.м. в 4-комнатной квартире на легендарной набережной Лейтенанта Шмидта, 13.Это шанс приобрести не просто недвижимость, а частицу истории с неповторимой атмосферой...
    • 1 ком.
    • 1/5 эт.
    • 52.6 м²
    17 000 000 Р
    Агент
    +7 (981) Показать номер
    Посмотреть контакты
    Комната Санкт-Петербург 3-я Советская ул., 21/4 (65.0 м) - Фото 1
    Комната Санкт-Петербург 3-я Советская ул., 21/4 (65.0 м) - Фото 2
    Арт.Продаются три комнаты в семикомнатной квартире, общей площадью 198,2 кв. м в историческом центре города. Первая видовая (разделена перегородкой на две) с пятью окнами и прекрасным видом на ул. Бакунина, на потолке историческая,лепнина, пол - дубовый...
    • 1 ком.
    • 5/6 эт.
    • 65 м²
    16 500 000 Р
    Агент
    +7 (911) Показать номер
    Посмотреть контакты
    Комната Санкт-Петербург 7-я Васильевского острова линия, 2/11 (74.6 м) - Фото 1
    Комната Санкт-Петербург 7-я Васильевского острова линия, 2/11 (74.6 м) - Фото 2
    Арт.Есть квартиры про метры , а есть про атмосферу и адрес . Наши 3 смежно-изолированные комнаты, с санузлом и кухонной зоной в знаменитом Доме Академиков - как раз про атмосферу, теплую энергетику и потрясающую локацию. Комнаты объединены в единое...
    • 1 ком.
    • 3/3 эт.
    • 74.6 м²
    17 250 000 Р
    Агент
    +7 (911) Показать номер
    Посмотреть контакты
    Арт.Продаются три комнаты в семикомнатной квартире, общей площадью 198,2 кв. м в историческом центре города. Первая видовая (разделена перегородкой на две) с пятью окнами и прекрасным видом на ул. Бакунина, на потолке историческая,лепнина, пол - дубовый...
    • 1 ком.
    • 5/6 эт.
    • 37.5 м²
    16 500 000 Р
    Агент
    +7 (931) Показать номер
    Посмотреть контакты
    Комната Москва Ленинский просп., 66 (35.2 м) - Фото 1
    Комната Москва Ленинский просп., 66 (35.2 м) - Фото 2
    Номер лота: вт-0431967.Продаются две комнаты в большой трехкомнатной квартире в одном из самых престижных районов Москвы. Комнаты изолированные (20 и15 м2). Окна на две стороны. В подъезде сделан капитальный ремонт. Развитая инфраструктура района. МГУ,...
    • 1 ком.
    • 7/9 эт.
    • 35.2 м²
    16 500 000 Р
    Агент
    +7 (980) Показать номер
    Посмотреть контакты

    Не нашли подходящего объявления?

    Оставьте заявку, и наши риэлторы подберут комнату в районе Санкт-Петербурга

    (0)