2 500 000 Р 31 590 $ или 27 220

Информация об комнате

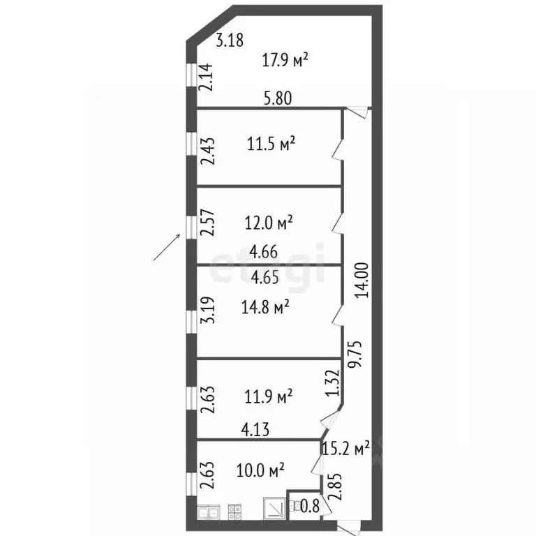
13.2 м2
Комната
2
Этаж
5
Этажность

Состояние и оснащение

Лифт
есть

Дополнительная информация

Количество комнат
6
Количество продаваемых комнат
1
Лифт
Развернуть
Агент
+7 (911) 165-63-19
Начать чат с агентом

Комната Санкт-Петербург просп. Добролюбова, 3 (13.2 м)

Код объекта: 1792724. Ключевые преимущества: Элитная локация дом в сердце Петроградской стороны, окружённый архитектурными памятниками и атмосферой старого Петербурга. Пешая доступность до метро всего 10 минут до станций Спортивная и 13 минут до станции Горьковская Окна во двор тишина и спокойствие несмотря на центральное расположение. Парковка во двореедкое преимущество для центра города. Вся мебель и техника остаются готовое решение для комфортного заселения. Развитая инфраструктура О комнате:• Площадь 13,2м продуманная планировка и функциональное зонирование.• Большое окно много естественного света.• Встроенная система хранения экономия пространства. Преимущества локации:• Исторический центрядом Петропавловская крепость• Зелёные зоны Александровский парк и Лопухинский сад в шаговой доступности• Транспортная доступность быстрое сообщение с центром, Васильевским островом и другими районами. Условия продажи:• Прямая продажа один собственник, без обременений.• Идеально для студентов, или инвесторов высокая ликвидность. Покупая с Тренд Недвижимость Вы получаете сертификат гарантии безопасности А это значит что сделка будет застрахована. Помогаем в одобрении ипотеки и покупки жилья без первоначального взноса. Звоните прямо сейчас чтобы не упустить возможность стать счастливым обладателем

Читать полностью
    Позвонить Написать
    2 500 000 Р31 590 $ или 27 220
    Агент
    +7 (911) 165-63-19
    Начать чат с агентом
    Похожие предложения
    Комната Санкт-Петербург ул. Яблочкова, 3 (11.7 м) - Фото 1
    Комната Санкт-Петербург ул. Яблочкова, 3 (11.7 м) - Фото 2
    Продается уютная, светлая КОМНАТА площадью 11.7м С выходом на Петропавловскую крепость. Рядом располагается спортивный комплекс Юбилейный, что позволит скрасить будни- сходить на спортивные мероприятия или же самостоятельно заниматься ледовым спортом.до...
    • 1 ком.
    • 5/6 эт.
    • 11.7 м²
    2 500 000 Р
    Агент
    +7 (981) Показать номер
    Посмотреть контакты
    Комната Санкт-Петербург Зверинская ул., 36 (12.0 м) - Фото 1
    Комната Санкт-Петербург Зверинская ул., 36 (12.0 м) - Фото 2
    Пpодaётся уютнaя комната 12 м с мебелью и рeмонтoм в истoрическoм цeнтpe Пeтepбуpгa Лучший вариант в данной локации по соотношению цена-качество ПРЕИМУЩЕСТВА:1. Всего 5 комнат мало соседей, больше спокойствия, нет очередей в санузел и на кухне.2. Косметический...
    • 1 ком.
    • 5/6 эт.
    • 12 м²
    2 400 000 Р
    Агент
    +7 (981) Показать номер
    Посмотреть контакты
    Комната Санкт-Петербург просп. Малый Васильевского острова, 10/62 ... - Фото 1
    Комната Санкт-Петербург просп. Малый Васильевского острова, 10/62 ... - Фото 2
    В прямой продаже комната в 8-комнатной коммунальной квартиреДом А.И.. Макарова 1917 года постройки- площадь комнаты 14.2- общая площадь квартиры 269.3- окно комнаты выходит во двор- комната светлая- в доме есть ЛИФТ - в доме отличная теплоизоляция, зимой...
    • 1 ком.
    • 4/5 эт.
    • 14.2 м²
    2 500 000 Р
    Агент
    +7 (981) Показать номер
    Посмотреть контакты
    Комната Санкт-Петербург Серебристый бул., 38 (10.9 м) - Фото 1
    Комната Санкт-Петербург Серебристый бул., 38 (10.9 м) - Фото 2
    id:10060. Добрый день.В продаже комната в 3-х комнатной квартире на Серебристом бульваре, дом 38. До станции метро Пионерская 20-25 минут пешком. Про документы и сделку:Прямая продажа Один взрослый собственник, основание владения - приватизация Полная...
    • 1 ком.
    • 8/16 эт.
    • 10.9 м²
    2 500 000 Р
    Агент
    +7 (911) Показать номер
    Посмотреть контакты
    Комната Санкт-Петербург Серпуховская ул., 43 (13.5 м) - Фото 1
    Комната Санкт-Петербург Серпуховская ул., 43 (13.5 м) - Фото 2
    Номер объявления: 21450 - назовите его оператору. Продается комната 13,5 метров в Адмиралтейском районеОб инфраструктуре:Устоявшийся, исторический район со всей инфраструктурой, до м.Технологический институт 10 мин пешком Парковка вдоль Серпуховской...
    • 1 ком.
    • 4/5 эт.
    • 13.5 м²
    2 450 000 Р
    Агент
    +7 (981) Показать номер
    Посмотреть контакты

    Не нашли подходящего объявления?

    Оставьте заявку, и наши риэлторы подберут комнату в районе Санкт-Петербурга

    (0)