1 600 000 Р 20 560 $ или 17 670

Информация о гараже

14 м2
Площадь

Территория

СТО
рядом
Автомойка
рядом
Развернуть
Агент
+7 (981) 231-72-02
Начать чат с агентом

Гараж в Санкт-Петербург просп. Обуховской обороны, 70к4 (14 м)

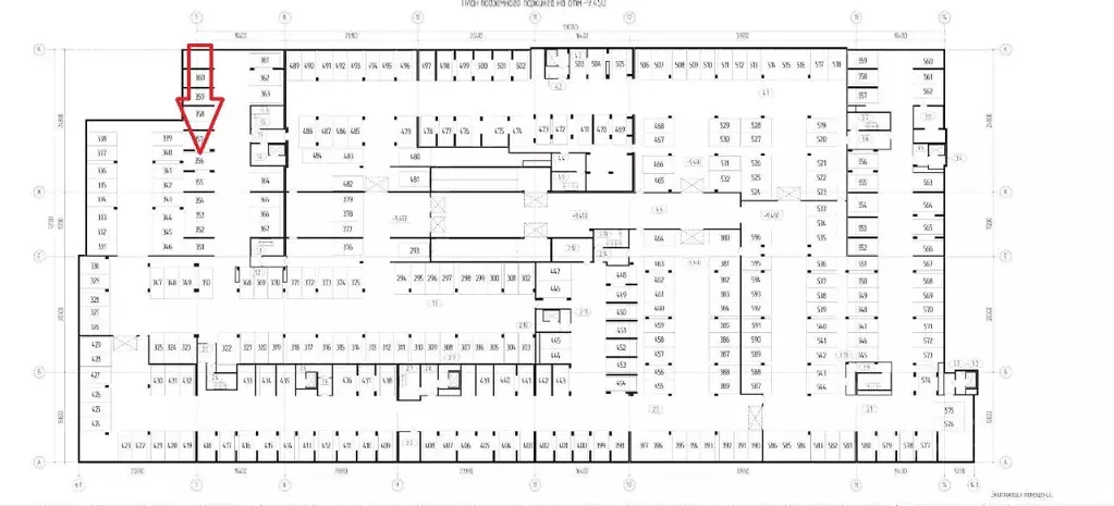
Подземный паркинг на -1 этаже в ЖК Эталон на Неве, 4й корпус.в 13 подъезде, номер 227 Сразу у лифта. Подъезд самый близкий к выезду на пр.О.Обороны.Очень удобное месторасположение.Машиноместо площадью 14 кв.мТупиковый, у стены.Отапливается, всегда чисто, хорошая Управ.компания.+ Ключи от ворот, ключи от парадной.Жители соседних домов также могут приобрести этот объект.Звоните Показы в любое время.

Читать полностью

    Для того, чтобы купить гараж площадью 14 кв. метров по адресу: м. Елизаровская, Обуховской обороны пр-кт., 70к4, позвоните по телефону +7 (981) 231-72-02. Торопитесь! Объявление №40003103219 о продаже гаража площадью 14 кв. метров опубликовано 07 января 2026.

    Позвонить Написать
    1 600 000 Р20 560 $ или 17 670
    Агент
    +7 (981) 231-72-02
    Начать чат с агентом
    Похожие предложения
    Гараж в Санкт-Петербург Астра Континенталь жилой комплекс (13 м) - Фото 1
    Гараж в Санкт-Петербург Астра Континенталь жилой комплекс (13 м) - Фото 2
    общая площадь 13м²

    Продается по переуступке машиноместо idв ЖК Астра Континенталь площадью 13.25 м2 и ценойКорпус сдается в III кв. 2026
    • 13 м²
    1 690 000 Р
    Агент
    +7 (981) Показать номер
    Посмотреть контакты
    Гараж в Санкт-Петербург Светлановский просп., 14к1 (17 м) - Фото 1
    Гараж в Санкт-Петербург Светлановский просп., 14к1 (17 м) - Фото 2
    общая площадь 17м²

    Продается машиноместо в подземном паркинге на -2 этаже, машиноместо имеет площадь 16.5 метров, не соприкасается по бокам с другими машиноместами (стоят бетонные опоры), рядом есть выход к лифту, что позволяет быстро выйти на улицу, либо поднять на свой...
    • 17 м²
    1 550 000 Р
    Агент
    +7 (911) Показать номер
    Посмотреть контакты
    Гараж в Санкт-Петербург Ланское муниципальный округ, Черная Речка ... - Фото 1
    общая площадь 13м²

    Продаётся машиноместо 423 в паркинге ЖК ЦДС Чёрная Речка по адресу наб. Чёрной речки, ул. Белоостровская. Все вопросы уточняйте у менеджера по телефону.
    • 13 м²
    1 692 000 Р
    Агент
    +7 (911) Показать номер
    Посмотреть контакты
    Гараж в Санкт-Петербург Ланское муниципальный округ, Черная Речка ... - Фото 1
    общая площадь 13м²

    Продаётся машиноместо 387 в паркинге ЖК ЦДС Чёрная Речка по адресу наб. Чёрной речки, ул. Белоостровская. Все вопросы уточняйте у менеджера по телефону.
    • 13 м²
    1 665 000 Р
    Агент
    +7 (911) Показать номер
    Посмотреть контакты
    Гараж в Санкт-Петербург Ланское муниципальный округ, Черная Речка ... - Фото 1
    общая площадь 13м²

    Продаётся машиноместо 416 в паркинге ЖК ЦДС Чёрная Речка по адресу наб. Чёрной речки, ул. Белоостровская. Все вопросы уточняйте у менеджера по телефону.
    • 13 м²
    1 665 000 Р
    Агент
    +7 (911) Показать номер
    Посмотреть контакты

    Не нашли подходящего объявления?

    Оставьте заявку, и наши риэлторы подберут гараж в районе Санкт-Петербурга

    (0)