21 990 000 Р 274 100 $ или 239 100

Информация о квартире

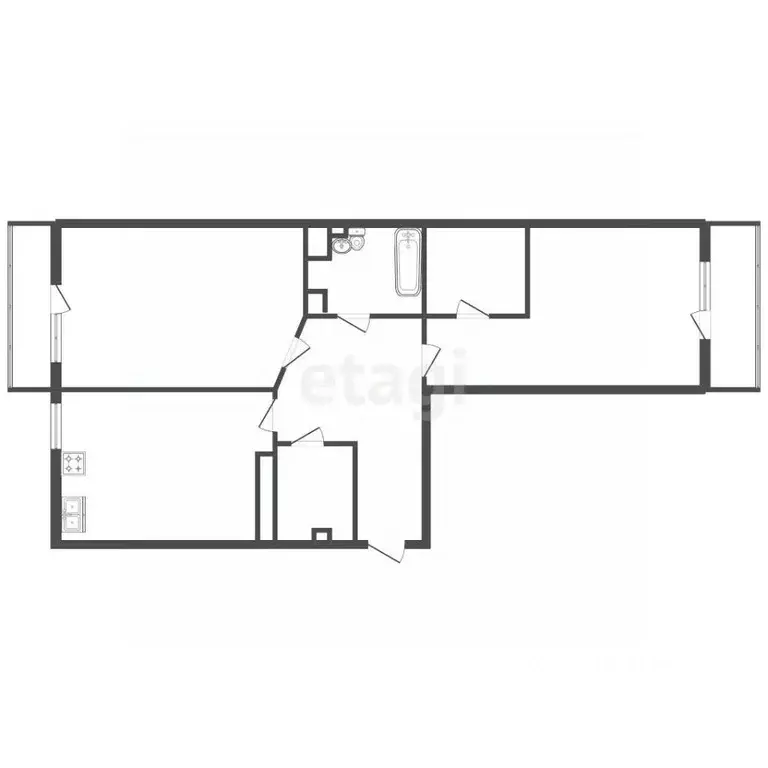
108 м2
Площадь
34 м2
Кухня
3
Комнаты
6
Этаж
8
Этажность

Дополнительная информация

Тип дома
кирпичный
Развернуть
Агент
+7 (911) 136-12-28
Начать чат с агентом

Квартира, 3 комнаты, 108.8 м

ЭКСКЛЮЗИВНОЕ ПРЕДЛОЖЕНИЕ ДВУХУРОВНЕВАЯ КВАРТИРА в одном из самых живописных районов СПб - г. Пушкине. Удобное зонирование на гостевую и приватные зоны:- 1 этаж - кухня-гостиная 30 кв.м., вместительная прихожая, туалетная комната, балкон;- 2 этаж - три спальни (13+13+11 кв.м.), просторный санузел, три гардеробные, балкон и лоджия .Преимущества квартиры:- деревянная лестница дарит атмосферу и уют частного дома; - кухня из прочного и долговечного массива бука, оборудованная всей необходимой встроенной техникой (варочная панель, духовой шкаф, посудомоечная машина, вытяжка), вся техника от надежных производителей;- санузел 11 кв.м., ВАННАЯ С ОКНОМ - МЕЧТА ДЛЯ МНОГИХ, продуманная постирочная зона с хозблоком;- теплые полы в помещениях с покрытием из керамогранита (кухня, санузел); - достаточное количество оборудованных гардеробных, позволяющие разгрузить жилые комнаты;- минимум соседей, так как квартира расположена на последнем этаже дома с лифтом;- большая застекленная лоджия позволит обустроить зимний сад;- солнечная сторона и последний этаж откроет панорамы на весь район и природные зоны;- добротный ремонт, хоть и не самый свежий.Инфраструктура:Объект находится в районе с развитой инфраструктурой, рядом школы, детские сады, СШОР, физкультурно-оздоровительный комплекс с бассейном и т.д. Автолюбители всегда найдут парковочное место вблизи дома, также удобный выезд на главные магистрали СПб. В пешей доступности ж/д ст. 21 км (15 мин. пешком), позволяющая добраться без пробок в центр СПб, ст.м. Пушкинская. Буферный парк для ежедневных прогулок. Идеальный вариант для семей с детьми или человеку, который любит пространство, атмосферу, творчество и много времени проводить с друзьями, семьей. Здесь есть все необходимое для удобного и комфортного проживания, приглашаем лично оценить Более 20 лет в собственности. Без обременений.

Читать полностью

    Для того, чтобы купить трехкомнатную квартиру по адресу: Пушкин, ул. Генерала Хазова, 13, позвоните по телефону +7 (911) 136-12-28. Торопитесь! Объявление №30094243448 о продаже трехкомнатной квартиры опубликовано Сегодня.

    Позвонить Написать
    21 990 000 Р274 100 $ или 239 100
    Агент
    +7 (911) 136-12-28
    Начать чат с агентом
    Похожие предложения
    Квартира, 2 комнаты, 61.4 м - Фото 1
    2-комнатная квартира, общая площадь 61м², кухня 8м²

    Предлагается на продажу квартира, в прекрасном малоэтажном (всего 2 этажа), одноподъездном доме (8 квартир). Вокруг дома зеленый полисадник, дом удален от дороги. Красивый фасад , украшенный колоннами. Прекрасное местоположение - тихая улица, спокойная,...
    • 61 м²
    • 2-ком
    • 1/2 эт.
    • кирпичный
    21 120 000 Р
    Агент
    +7 (911) Показать номер
    Посмотреть контакты
    2-комнатная квартира, общая площадь 110м², кухня 28м²

    Арт.Предлагается семейная квартира в доме-реконструкции Дворянское сословие около Екатерининского парка. Уникальное расположение в тихой части г.Пушкин.4-х этажное историческое здание перестроено в 2023 году. В нем сохранены все преимущества старого...
    • 110 м²
    • 2-ком
    • 2/4 эт.
    • кирпичный
    22 205 000 Р
    Агент
    +7 (981) Показать номер
    Посмотреть контакты
    1-к кв. Санкт-Петербург Московский просп., 72к2 (42.3 м) - Фото 1
    1-к кв. Санкт-Петербург Московский просп., 72к2 (42.3 м) - Фото 2
    1-комнатная квартира, общая площадь 42м², жилая 13м², кухня 20м²

    Квартира, которую необходимо добавить в свою коллекцию.Клубный дом в Московском районе. Уникальная резиденция с приватным SPA для собственников.Архитектура парадный сталинский ампир.Локация уникальная дом скрыт от автомобильной трассы и находится через...
    • 42 м²
    • 1-ком
    • 9/10 эт.
    22 000 000 Р
    Агент
    +7 (981) Показать номер
    Посмотреть контакты
    1-к кв. Санкт-Петербург Исполкомская ул., 17 (49.4 м) - Фото 1
    1-к кв. Санкт-Петербург Исполкомская ул., 17 (49.4 м) - Фото 2
    1-комнатная квартира, общая площадь 49м², жилая 18м², кухня 15м²

    Код объекта: 2056452.К покупке предлагаем современную квартиру, отвечающую всем стандартам качества жизни в ЖК Бизнес Класса Дипломат. ЖК имеет уникальное расположение ко всей исторической инфраструктуре города, 10 минут пешей доступности до Невского...
    • 49 м²
    • 1-ком
    • 5/9 эт.
    • монолит
    21 490 000 Р
    Агент
    +7 (985) Показать номер
    Посмотреть контакты
    2-к кв. Санкт-Петербург ул. Маршала Тухачевского, 23 (79.6 м) - Фото 1
    2-к кв. Санкт-Петербург ул. Маршала Тухачевского, 23 (79.6 м) - Фото 2
    2-комнатная квартира, общая площадь 79м², жилая 40м², кухня 14м²

    Новая 2-комнатная квартира 79,6 м | Кирпичный дом | Дизайнерский ремонт | Никто не жилЕсли вы ищете просторную квартиру с новым ремонтом, мебелью и техникой, куда можно заехать сразу после покупки, — этот вариант идеально подойдёт.Квартира светлая, функциональная...
    • 79 м²
    • 2-ком
    • 5/16 эт.
    21 000 000 Р
    Агент
    +7 (981) Показать номер
    Посмотреть контакты

    Не нашли подходящего объявления?

    Оставьте заявку, и наши риэлторы подберут квартиру в районе Пушкина

    (0)