Реализация объекта недвижимости приостановлена

Информация о квартире

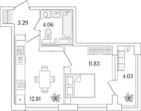
51.0 м2
Площадь
15.0 м2
Кухня
2
Комнаты
3
Этаж
4
Этажность
Развернуть

Квартира, 2 комнаты, 51.11 м

Вторая очередь квартала Дубровский включает в себя четыре малоэтажных корпуса, которые будут возведены в два этапа. Здания выполнены в неоклассическом стиле и продолжают лучшие образцы Санкт-Петербургского зодчества.Во второй очереди Дубровского предусмотрен большой выбор планировок: от уютных студий до просторных четырехкомнатных квартир с двумя санузлами.

Читать полностью

    Реализация объекта недвижимости приостановлена

    Не нашли подходящего объявления?

    Оставьте заявку, и наши риэлторы подберут квартиру в новостройке в районе Пушкина

    (0)