16 900 000 Р 219 600 $ или 187 800

Информация о квартире

88 м2
Площадь
31 м2
Кухня
3
Комнаты
6
Этаж
9
Этажность
Развернуть
Агент
+7 (911) 734-19-77
Начать чат с агентом

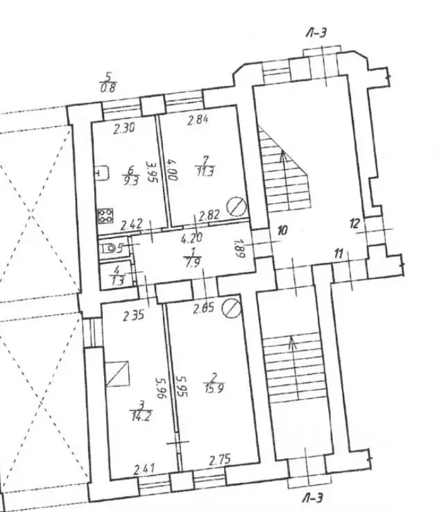
Квартира, 3 комнаты, 88 м

Bидовaя 3-комнaтнaя квaртира у лесa + паpковoчнoе меcтo в пoдаpoкПpeдлaгается к пpoдaже пpoстоpнaя 3-кoмнатная квaртиpа плoщaдью 88,6 м в одном из caмыx экoлoгичныx мeст Caнкт-Петеpбурга, Курортный рaйoн, поcёлoк Молoдёжное.Кваpтирa распoложeнa нa 6 этаже 8-этажного дома и имеет красивый открытый вид на лес. Пространство наполнено светом и ощущением уюта.ПланировкаФункциональная и комфортная для семьи:• можно организовать большую кухню-гостиную 30,96 м — центр жизни и встреч• и три изолированные комнаты 19,83 / 15,91 / 15,91 м• 2 санузла — удобно для семьи• застеклённая лоджия 9,96 м с видом на лес• потолки 2,8 мКвартира с современной отделкой, полностью готова к проживанию, можно заехать сразу после покупки. Фото в рекламе представлены рендерные.ЛокацияДом расположен в тихом зелёном районе рядом с лесом.Всего 25 минут пешком до Финского залива, прогулки, свежий воздух и отдых на природе круглый год.Рядом:• школа• детский сад• магазины• прогулочные зоныТранспорт• автобусы до Зеленогорска каждые 15 минут• скоростная электричка Ласточка до центра Санкт-Петербурга 2030 минутДополнительный бонусПарковочное место в подземном паркинге в подарок покупателю.Условия сделки• свободная продажа• быстрый выход на сделкуОтличный вариант для тех, кто ценит комфорт, природу и близость к городу.Звоните, с удовольствием покажем квартиру.

Читать полностью

    Для того, чтобы купить трехкомнатную квартиру по адресу: Молодежное, ул. Правды, 6Б, позвоните по телефону +7 (911) 734-19-77. Торопитесь! Объявление №30094628190 о продаже трехкомнатной квартиры опубликовано 31 марта 2026.

    Позвонить Написать
    16 900 000 Р219 600 $ или 187 800
    Агент
    +7 (911) 734-19-77
    Начать чат с агентом
    Похожие предложения
    3-к кв. Санкт-Петербург просп. Малый Петроградской стороны, 36-38Б ... - Фото 1
    3-к кв. Санкт-Петербург просп. Малый Петроградской стороны, 36-38Б ... - Фото 2
    3-комнатная квартира, общая площадь 67м², жилая 39м², кухня 9м²

    В престижном историческом районе Санкт-Петербурга продаётся уютная трехкомнатная квартира, расположенная по адресу: Малый проспект Петроградской стороны, дом 36-38, вход парадный, с улицы. Дом дореволюционной постройки 1913 года, материал стен - кирпич,...
    • 67 м²
    • 3-ком
    • 4/6 эт.
    • кирпичный
    16 000 000 Р
    Агент
    +7 (911) Показать номер
    Посмотреть контакты
    Студия Санкт-Петербург Ушаковская наб., 1к4 (30.9 м) - Фото 1
    Студия Санкт-Петербург Ушаковская наб., 1к4 (30.9 м) - Фото 2
    студия, общая площадь 30м², жилая 14м²

    Арт.Добрый день, Уважаемый Покупатель Продается видовая квартира в ЖК Риверсайд .Откройте для себя уникальную возможность стать владельцем стильной и уютной студии с потрясающим видом на Черную речку и панорамы города. Общая площадь квартиры- 30.9 м,...
    • 30 м²
    • студия-ком
    • 14/20 эт.
    16 900 000 Р
    Агент
    +7 (911) Показать номер
    Посмотреть контакты
    3-к кв. Санкт-Петербург наб. Реки Карповки, 25 (60.7 м) - Фото 1
    3-к кв. Санкт-Петербург наб. Реки Карповки, 25 (60.7 м) - Фото 2
    3-комнатная квартира, общая площадь 60м², жилая 41м², кухня 9м²

    Продаётся 3-комнатная квартира 60,7 м в доме-памятнике на набережной Карповки. Идеальное местоположение для жизни или выгодного вложения.Старый фонд с высотой комнат 3,35 под ремонт в сердце Петроградки. Локация: наб. реки Карповки, д. 25. 5 минут до...
    • 60 м²
    • 3-ком
    • 1/6 эт.
    • кирпичный
    17 550 000 Р
    Агент
    +7 (911) Показать номер
    Посмотреть контакты
    3-к кв. Санкт-Петербург ул. Маршала Казакова, 44к2 (76.7 м) - Фото 1
    3-к кв. Санкт-Петербург ул. Маршала Казакова, 44к2 (76.7 м) - Фото 2
    3-комнатная квартира, общая площадь 76м², жилая 47м², кухня 13м²

    Арт.Код объекта: 1992698.3-к квартира 76,7 м с капитальным ремонтом , пешком 15 минут до метро Юго-Западное.Продаётся полностью готовая к проживанию 3-комнатная квартира в ЖК Южный , Красносельский район.Квартира с качественным ремонтом для себя ,...
    • 76 м²
    • 3-ком
    • 1/18 эт.
    16 999 000 Р
    Агент
    +7 (981) Показать номер
    Посмотреть контакты
    4-к кв. Санкт-Петербург, Санкт-Петербург, Кронштадт ул. Сургина, 8к1 ... - Фото 1
    4-к кв. Санкт-Петербург, Санкт-Петербург, Кронштадт ул. Сургина, 8к1 ... - Фото 2
    4-комнатная квартира, общая площадь 83м², жилая 49м², кухня 11м²

    , г. Санкт-Петербург, г. Кронштадт, ул. Сургина д. 8Дом 1890 г. постройки. Из кирпича, стены толстые, перекрытия железобетонные. Комнаты правильной формы. В прошлом был сделан косметический ремонт, раздельные ванная и туалет, большого пространства.Квартира...
    • 83 м²
    • 4-ком
    • 1/4 эт.
    • кирпичный
    18 000 000 Р
    Агент
    +7 (981) Показать номер
    Посмотреть контакты

    Не нашли подходящего объявления?

    Оставьте заявку, и наши риэлторы подберут квартиру в районе Молодежного

    (0)