24 100 000 Р 286 900 $ или 247 700

Информация о коттедже

424 м2
Площадь
3
Этажность
14 cоток
Участок

Дополнительная информация

Дом продаётся вместе с участком
есть
Развернуть
Агент
+7 (911) 192-92-27
Начать чат с агентом

Дом в Ленинградская область, Любань Тосненский район, ул. Карла ...

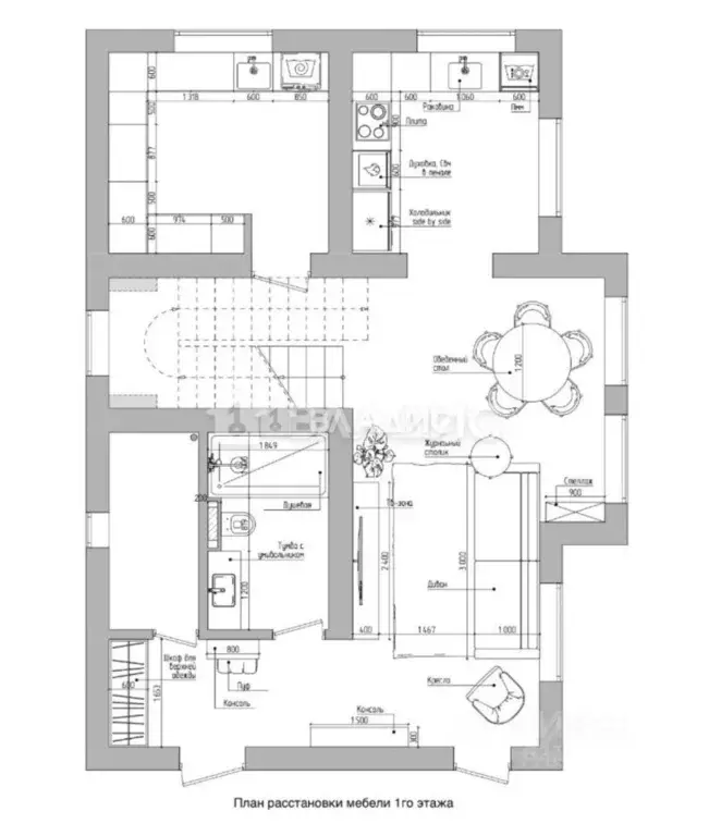
Арт.В продаже загородный жилой дом — идеальное сочетание стиля и комфорта Дом в Любани рядом с Ленинградским шоссе с удобным и быстрым выездом на трассу,На большом участке в 14,35 соток расположен добротный красивый жилой дом, гараж на две машины, двухэтажная баня, зона барбекю и даже теплицы Дом построен по индивидуальному проекту с выполнением всех строительных норм. Хозяева строили для себя, поэтому продуман каждый уголок дома для комфортного и счастливого проживания круглый год. Поселок Любань имеет комфортную городскую инфраструктуру, в пешей доступности школа, детский сад, сетевые продуктовые магазины, пункты выдачи заказов Ozon и WB. Автобусное сообщение до г. Тосно и до Санкт-Петербурга, ж/д станция, обновленная, но сохранившая архитектуру 19 века, соединяет поселок с Московским вокзалом посредством скоростных электричек Ласточка . Река Тигода создает неповторимый ландшафт местности, окруженной лесами и парками.О Доме:424,7 кв. М, жилая 153,3 кв. М.3 этажа (первый, второй и цокольный).6 спален ( 13,7 13,9 14,9 29,4 15,5 11,5 кв. М), включая большую мастер-спальню с оборудованным гардеробом), удобная и красивая мебель.3 санузла с красивой огромной ванной комнатой, душевыми и качественной импортной сантехникой.кухня в 72 кв. М объединена с огромной гостиной и столовой. Грамотно определены зоны отдыха, каминная зона и обеденная зона. Выход на большую застеклённую с окнами в пол террасу, выполненную в стиле зимнего сада.теплые водяные полы по всей площади, действующий камин.система приточно-вытяжной вентиляции в каждом помещении.бильярдная 38,4 кв. М, оборудованный спортивный зал 38,2 кв. М, котельная 13,4 кв. М, собственная холодильная камера 13,4 кв. М с постоянной температурой 4-5 градусов- для Ваших запасов лестница, проходящая через все этажи, выложена мрамором с кованными перилами.газ, скважина, канализация, электричество 15 квт.О Здании:постройка 2014 года.фундамент железобетонный монолитный.стены из газобетонных блоков с утеплителем.кровля — металлочерепица.3 этажа.водоотливная система.тротуарная плитка вокруг здания.отделка цоколя — камень.ОБ Участке:14,35 соток с проведенным ландшафтным дизайном — зонирование по уровням высот.с одной стороны участка протекает ручей с живописными берегами.имеется зона барбекю с каменной беседкой.определены места под огород, теплицы, под установку бассейна.стоянка для автомобилей, выложена тротуарной плиткой.ухоженные садовые дорожки.на участке гараж на две машины.баня, но о ней рассказ отдельный: двухэтажный деревянный сруб с парной, душевой, санузлом, кухней, зоной отдыха и каминной зоной, можно жить и наслаждаться ) Газ к бане подведен отдельным трубопроводом и с отдельным счетчиком Теплый пол О Документах:один взрослый собственник.никто не зарегистрирован.задолженностей и обременений нет.быстрый выход на сделку наши ипотечные брокеры согласуют Вам ипотеку.наши юристы с удовольствием проконсультируют по сделке.участок и дом прошел юридическую проверку, отчет предоставляется перед сделкой.Имеются дополнительные фото, предоставляются по запросу. Звоните, и я отвечу на все Ваши вопросы Просмотры по предварительной договоренности Номер объекта: 1/536973/24690

Читать полностью

    Для того, чтобы купить 3-этажный коттедж по адресу: Любань, улица Карла Либкнехта, 36, позвоните по телефону +7 (911) 192-92-27. Торопитесь! Объявление №50016502368 о продаже трехэтажного коттеджа опубликовано 15 марта 2026.

    Позвонить Написать
    24 100 000 Р286 900 $ или 247 700
    Агент
    +7 (911) 192-92-27
    Начать чат с агентом
    Похожие предложения
    Дом в Ленинградская область, Тосненский район, Федоровское городское ... - Фото 1
    Дом в Ленинградская область, Тосненский район, Федоровское городское ... - Фото 2
    1 этаж, общая площадь 167м², участок 16 соток

    Продаётся загородный дом + гостевой дом с баней (двухэтажный) в коттеджном посёлке Заречное Ленинградской области. Рядом с КП расположена база отдыха Чистые пруды , лесная природная зона и экологические маршруты.Описание дома:- Дом площадью 150 м, построен...
    • 1 эт.
    • 167 м²
    • 16 сот.
    24 000 000 Р
    Агент
    +7 (911) Показать номер
    Посмотреть контакты
    Дом в Ленинградская область, Тосненский район, Красный Бор городской ... - Фото 1
    Дом в Ленинградская область, Тосненский район, Красный Бор городской ... - Фото 2
    2 этажа, общая площадь 288м², участок 12 соток

    Эксклюзивное предложение для тех, кто ищет баланс между спокойствием природы и городской инфраструктурой. Этот просторный дом 2021 года постройки станет идеальной альтернативой большой городской квартире.О доме:Пространство для каждого: 4 изолированные...
    • 2 эт.
    • 288 м²
    • 12 сот.
    23 490 000 Р
    Агент
    +7 (989) Показать номер
    Посмотреть контакты
    Дом в Ленинградская область, Тосненский район, Федоровское городское ... - Фото 1
    Дом в Ленинградская область, Тосненский район, Федоровское городское ... - Фото 2
    3 этажа, общая площадь 250м², участок 9 соток

    id:31929. ОСОБНЯК В СТИЛЕ РАЙТАПОДХОДИТ ПОД ЛЬГОТНУЮ ИПОТЕКУРАССМОТРИМ ОБМЕН НА ВАШУ КВАРТИРУПредставляем вашему вниманию респектабельное трехэтажное домовладение площадью 330 м2 с гаражом, расположенное на участке 9 соток, в 10 минутах от Павловского...
    • 3 эт.
    • 250 м²
    • 9 сот.
    23 555 000 Р
    Агент
    +7 (981) Показать номер
    Посмотреть контакты
    Дом, 125.5 м - Фото 1
    1 этаж, общая площадь 125м², участок 12 соток

    id:32091. Роскошный дом с террасой и крыльцом - ваше идеальное место для жизни Представляем вашему вниманию великолепный одноэтажный дом площадью 125,5 м с террасой (20 м) и крыльцом (6 м). Расположен на участке в 12,01 сотки. Дом ориентирован по солнечной...
    • 1 эт.
    • 125 м²
    • 12 сот.
    24 350 000 Р
    Агент
    +7 (911) Показать номер
    Посмотреть контакты
    Коттедж в Ленинградская область, Всеволожский район, Лесколовское ... - Фото 1
    Коттедж в Ленинградская область, Всеволожский район, Лесколовское ... - Фото 2
    общая площадь 330м², участок 13 соток

    Готовые домовладения в рассрочку? Да 20 минут от МЕГА Парнас. Престижная локация недалеко от Токсово. Единый стиль, продуманные планировки, панорамные окна. Звоните ПОСЛЕДНЕЕ ПРЕДЛОЖЕНИЕ В КОТТЕДЖНОМ ПОСЕЛКЕ КАВГОЛОВСКИЕ ХОЛМЫ - Готовый дом из поризованного...
    • 330 м²
    • 13 сот.
    24 500 000 Р
    Агент
    +7 (981) Показать номер
    Посмотреть контакты

    Не нашли подходящего объявления?

    Оставьте заявку, и наши риэлторы подберут купить дом в районе Любаня

    (0)