Реализация объекта недвижимости приостановлена

Информация о коттедже

243.0 м2
Площадь
2
Этажность
30.0 cоток
Участок

Дополнительная информация

Дом продаётся вместе с участком
есть
Развернуть

Дом в Заклинское сельское поселение, деревня Заполье (Заклинская ...

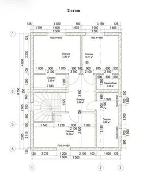
ID: 312107Абсолютно НОВЫЙ (2023 г.п.) качественный жилой зимний коттедж 10*10 (с жилой тёплой пристройкой 13*13)рубленный из бруса 150*150, с каркасной утепленной пристройкой, с мансардой, со всеми удобствами. Внутренняя отделка деревом (вагонка), пропитка акватекс.На капитальном фундаменте (сваи+ленточный бетонный)Обшит (блокхаус), утеплён. Стеклопакеты везде, и двери и панорамные окна.Общая площадь по наружн. обмеру 243.3 (внутренняя общ. площ. 230.9)Жилая площадь 61.7+60.8Свободная планировка:1 этаж: два входа круговая утеплённая жилая пристройка (холл) с панорамными окнами, одна спальня 18кв.м.,Прихожая 19.0 кв.м.,кухня-столовая-зал 43.6 кв.м.,Совмещенный сан.узел, 3.9 кв.м., техническая комната (шкаф)2 этаж: зал под 2 комнаты, 43.7 кв.м., закрытая терраса с панорамными окнами 34.2 кв.м., тамбур 6.6 кв.м.Отопление- электро котёл. Радиаторы в каждой комнате.Так как дом хорошо утеплён, расход электричества для такой площади минимальный (За 230 кв.м. ?? 8.)Водопровод- скважина. Подведён и к дому и к будущей бане. Септик две ёмкости, расположение видно на плане.Охрана. Видеонаблюдение.Участок 30 соток, огорожен металическим забором, откатные ворота с двух сторон участка.На участке есть также готовый фундамент под баню, с выведенными трубами.Электричество 15 кВтМежевание сделано, разрешение на строительство есть, адрес присвоен,фото плана участка и застройки приложено.Прямая продажа. Документы готовы Строили для себя.Продаётся по семейным обстоятельствам.Можно в ипотеку, сертификаты тоже подходят. С оформлением поможем.Цена меньше себестоимости. Вложения в дом при строительстве были гораздо больше.

Читать полностью

    Реализация объекта недвижимости приостановлена

    Не нашли подходящего объявления?

    Оставьте заявку, и наши риэлторы подберут купить дом в районе Лужского района

    (0)