167 400 Р 2 150 $ или 1 840

Информация об помещении

1
Этаж

Состояние и оснащение

Количество этажей
2
Развернуть
Агент
+7 (911) 147-09-77
Начать чат с агентом

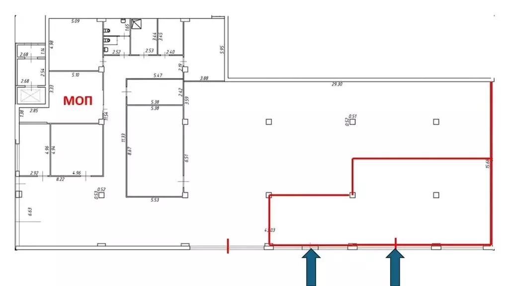
Торговая площадь в Ленинградская область, Луга просп. Кирова, 48 (225 ...

Предлагается в аренду помещение на 1 этаже, площадью 225 м2. Помещение с ремонтом, торговые залы и подсобные помещения: потолок армстронг, полы плитка и ламинат, радиаторы отопления с регулировкой, отдельные санузлы 2 шт. Цена аренды в месяц, КУ отдельно. Предоставим арендные каникулы. Звоните, отвечу на вопросы, организую просмотр.Общие характеристики:- встроенное помещение общей площадью 225 м2;- высота потолков 3,1м /2,9м(фактическая);- мощность эл. сети 25 кВт;- 3отдельный вход с проспекта и со двора;- отдельные СУ 2 шт., душевые 1 шт.;- отопление, водоснабжение и водоотведение централизованные.

Читать полностью
    Позвонить Написать
    167 400 Р2 150 $ или 1 840
    Агент
    +7 (911) 147-09-77
    Начать чат с агентом
    Похожие предложения
    Торговая площадь в Ленинградская область, Кировский район, пос. Мга ... - Фото 1
    Торговая площадь в Ленинградская область, Кировский район, пос. Мга ... - Фото 2
    Добрый день Сдаём в аренду БОЛЬШОЙ КРУГЛОСУТОЧНЫЙ МАГАЗИН, с ТРЕМЯ отдельными входами, расположенный вдоль оживленной дороги в локации С РАЗВИТОЙ ИНФРАСТРУКТУРОЙ. Магазин работает уже ДАВНО и имеет БОЛЬШУЮ базу покупателей, начинает приносить доход в...
    • 1/1 эт.
    180 000 Р
    Агент
    +7 (911) Показать номер
    Посмотреть контакты
    Торговая площадь в Ленинградская область, Кудрово г. Всеволожский ... - Фото 1
    Торговая площадь в Ленинградская область, Кудрово г. Всеволожский ... - Фото 2
    Предлагается в аренду помещение площадью 160м2 (70+90 м2) на втором этаже в жилом комплексе комфорткласса Европейский парк . Ввод в эксплуатацию 2 квартал 2022 года, заселен. Активно развивающийся спальный микрорайон, с хорошей покупательной способностью...
    • 2/22 эт.
    176 000 Р
    Агент
    +7 (911) Показать номер
    Посмотреть контакты
    Торговая площадь в Ленинградская область, Всеволожский район, ... - Фото 1
    Торговая площадь в Ленинградская область, Всеволожский район, ... - Фото 2
    ID: 832161 под:аптекикафе, бистро, чайную, ресторацию, закусочную, трактир,зоомагазин, магазин медицинского оборудования, любое назначение промышленного/продуктового направления, алкомаркетыпроездное место, свободно, теплое, сухое помещение, первый этаж...
    • 1/1 эт.
    180 000 Р
    Агент
    +7 (981) Показать номер
    Посмотреть контакты
    Торговая площадь в Ленинградская область, Гатчинский муниципальный ... - Фото 1
    Торговая площадь в Ленинградская область, Гатчинский муниципальный ... - Фото 2
    id:1080. Арт.brПредлагается в аренду последнее свободное помещение на первом этаже нового торгового центра напротив ж/д станции Сиверская. Все коммуникации подведены. Собственная газовая котельная. Панорамные окна. Отдельный вход. Круглосуточный доступ....
    • 1/2 эт.
    173 000 Р
    Агент
    +7 (911) Показать номер
    Посмотреть контакты
    id:1080. Арт.Предлагается в аренду последнее свободное помещение на первом этаже нового торгового центра напротив ж/д станции Сиверская. Все коммуникации подведены. Собственная газовая котельная. Панорамные окна. Отдельный вход. Круглосуточный доступ....
    • 1/2 эт.
    173 000 Р
    Агент
    +7 (931) Показать номер
    Посмотреть контакты

    Не нашли подходящего объявления?

    Оставьте заявку, и наши риэлторы подберут торговое помещение в районе Лугов

    (0)