3 549 000 Р 45 930 $ или 38 870

Информация о таунхаусе

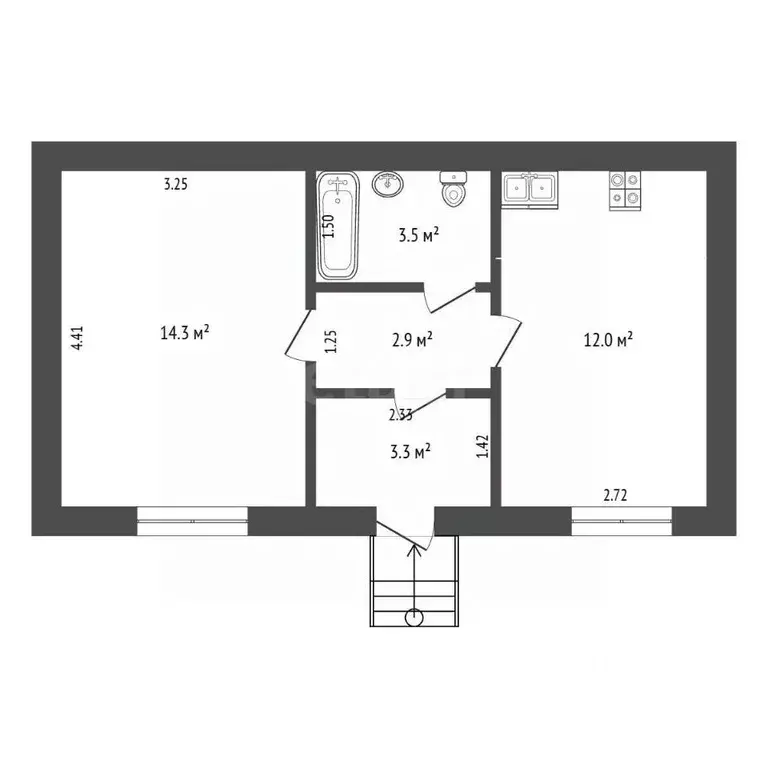
113 м2
Площадь
2
Этажность
2 cоток
Участок
Развернуть
Агент
+7 (981) 160-36-55
Начать чат с агентом

Таунхаус в Ленинградская область, Ломоносовский район, Аннинское ...

Рядом с Санкт-Петербургом в закрытом поселке Нижний Хутор продается 2-х этажный таунхаус общей площадью 113 м2. Отделка: черновая; фундамент ленточный; стены внутри газобетон, снаружи кирпич; окна стеклопакеты (окна ориентированы на юго-запад, северо-восток), крыша внутри ветрозащита, снаружи - металлочерепица.К дому подведен центральный водопровод, электричество 5 кВт (прямой договор с Ленэнерго, мощность можно увеличить), канализация септики (5 колец);Поселок газифицирован, возле каждого дома установлена точка подключения.Дороги внутри поселка грунтовка, планируется асфальтирование.Поселок развивается, много семей проживает постоянно. Есть магазин, детская площадка, пункт доставки. Вся остальная инфраструктура в п. Аннино, Горелово, Красное Село.Рядом с поселком есть живописное Озеро Аннинское с прекрасной рыбалкой и отдыхом.Удобное транспортное сообщение (выезды на ЗСД, КАД, Таллинское и Пулковское шоссе). До метро пр. Ветеранов 25 минут на автомобиле. Каждые 20 минут ходят автобусы. Недалеко от поселка есть автобусная остановка. Таунхаус прекрасно подойдет как постоянное место жительства так и дача для небольшой семьи с детьми. При грамотном планировании и сравнительно небольших вложениях вы получите возможность жить за городом и в непосредственной близости к Санкт-Петербургу (23 км).Один взрослый собственник, более 5-лет в собственности. Есть видео. Звоните, отвечу на все ваши вопросы. Номер объекта: 1/538686/18051

Читать полностью

    Для того, чтобы купить квартирутаунхаус по адресу: Овражная улица, 6, позвоните по телефону +7 (981) 160-36-55. Торопитесь! Объявление №50015742171 о продаже -1-комнатного таунхауса опубликовано 28 февраля 2026.

    Позвонить Написать
    3 549 000 Р45 930 $ или 38 870
    Агент
    +7 (981) 160-36-55
    Начать чат с агентом
    Похожие предложения
    Таунхаус в Оренбургская область, Оренбургский район, пос. Пригородный ... - Фото 1
    1 этаж, общая площадь 45м², участок 3 сотки

    Арт.Продам квартиру в доме блокированной застройки. Участок - 3 сотки. Есть просторный гараж, жилая летняя кухня, баня, мангальная зона, вольер для собаки, погреб, весь двор под навесом.Выполнен качественный ремонт в жилых помещениях и на придомовой территории.Уникальное...
    • 1 эт.
    • 45 м²
    • 3 сот.
    3 599 000 Р
    Агент
    +7 (987) Показать номер
    Посмотреть контакты
    Таунхаус в Калмыкия, Элиста ул. Эрмелинская (68 м) - Фото 1
    Таунхаус в Калмыкия, Элиста ул. Эрмелинская (68 м) - Фото 2
    2 этажа, общая площадь 68м², участок 1 сотка

    Арт.Продается таунхаус по адресу:г. Элиста ул ЭрмелинскаяПлощадь дома 66 кв.м.Площадь участка 2 соткаВ доме проведена вода, электричество, электро котел, установлены счетчики проводка медная, льготный тариф на электроэнергию.Подъезд асфальтированный,
    • 2 эт.
    • 68 м²
    • 1 сот.
    3 500 000 Р
    Агент
    +7 (917) Показать номер
    Посмотреть контакты
    Таунхаус в Челябинская область, Чебаркульский муниципальный округ, ... - Фото 1
    Таунхаус в Челябинская область, Чебаркульский муниципальный округ, ... - Фото 2
    1 этаж, общая площадь 61м², участок 9 соток

    Продам уютную благоустроенную квартиру на земельном участке в п.Тимирязевский, площадь квартиры - 61 кв.м., зем. участок 909 кв.м. Квартира состоит из кухни и 2-хкомнат, санузел раздельный.1В квартире сделан хороший ремонт, установлены евроокна, натяжные...
    • 1 эт.
    • 61 м²
    • 9 сот.
    3 500 000 Р
    Агент
    +7 (982) Показать номер
    Посмотреть контакты
    Таунхаус в Ростовская область, Аксайский район, Большелогское с/пос, ... - Фото 1
    Таунхаус в Ростовская область, Аксайский район, Большелогское с/пос, ... - Фото 2
    1 этаж, общая площадь 38м², участок 1 сотка

    Таунхаус / квартира на земле с ремонтом Льготная ипотекаПродаётся уютная квартира на земле (дом блокированного типа) в х. Камышеваха, рядом с районом Платовский. Отличный вариант для проживания или выгодной инвестиции. Общая площадь — 36 кв.мУдобная...
    • 1 эт.
    • 38 м²
    • 1 сот.
    3 600 000 Р
    Агент
    +7 (989) Показать номер
    Посмотреть контакты
    Таунхаус в Калининградская область, Гурьевский муниципальный округ, ... - Фото 1
    Таунхаус в Калининградская область, Гурьевский муниципальный округ, ... - Фото 2
    2 этажа, общая площадь 100м², участок 4 сотки

    Код объекта: 968645.Продаётся таунхаус (блок-секция) 2021 года постройки в п. Родники Гурьевского муниципального округа на улице Мирная (удалённость от города - 13 км).Планировка - свободная:- общая площадь - 100 кв.м.Дом состоит из 3-ех блок-секций и...
    • 2 эт.
    • 100 м²
    • 4 сот.
    3 550 000 Р
    Агент
    +7 (981) Показать номер
    Посмотреть контакты

    Не нашли подходящего объявления?

    Оставьте заявку, и наши риэлторы подберут таунхаус в районе Ломоносовского района

    (0)