18 000 000 Р 214 300 $ или 185 000

Информация о коттедже

141 м2
Площадь
2
Этажность
10 cоток
Участок

Дополнительная информация

Дом продаётся вместе с участком
есть
Развернуть
Агент
+7 (911) 827-96-64
Начать чат с агентом

Дом в Ленинградская область, Ломоносовский район, Виллозское городское ...

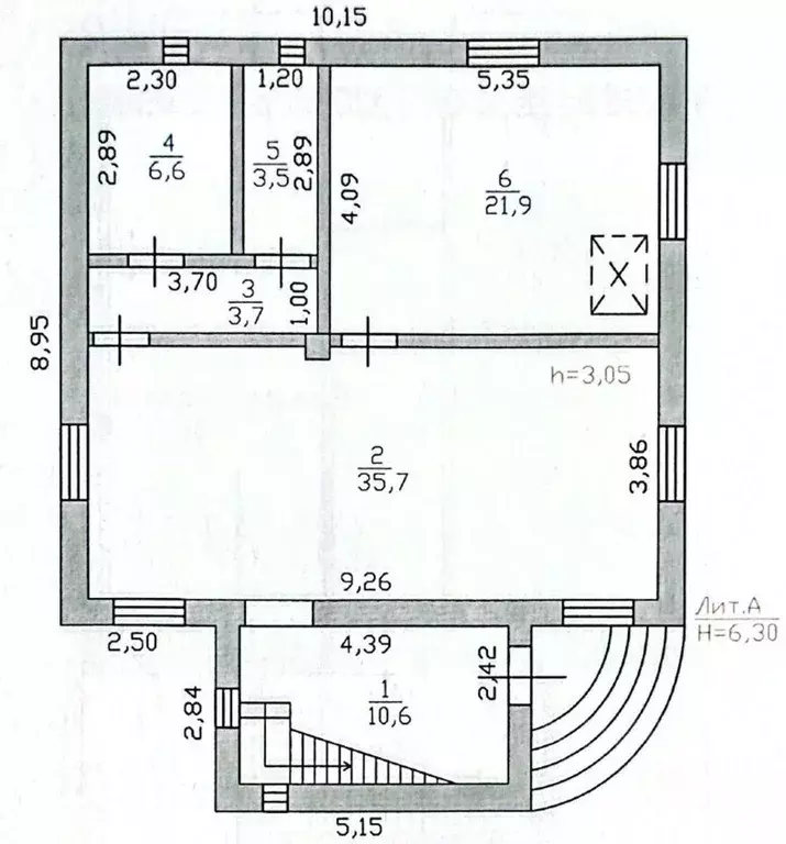
Ломоносовский район, д. Мюреля.В новом, но уже обжитом коттеджном поселке Удачный к продаже предлагается зимний дом с земельным участком 10 соток.Дом c полной чистовой отделкой, в 2 этажа, из профилированного бруса камерной сушки 190 * 140. Второй этаж мансардный. Фундамент - ж/б плита с ростверком вверх. Кровля - цементно-песчаная черепица. Окна - двухкамерные стеклопакеты REHAU.Планировка дома: 4 спальни и большая кухня-гостиная 38 м.кв. со вторым светом, 2 санузла, техническое помещение.На участке есть скважина 32 м. глубиной с насосом, установлен септик. В дом заведена вода, газ, электричество. Установлен газовый котел на 24 КВт.Дом строили для себя Отделочные работы завершены в 2025 г. В доме постоянно никто не проживал.Коттеджный поселок находится в 5-ти км от Красного села. Ближайшая ж/д станция Можайское , от нее на авто 10 минут езды. Асфальтированный подъезд к поселку, в самом поселке дорога из асфальтовой крошки.Участок правильной прямоугольной формы, ровный, сухой.Рядом горнолыжный курорт Туутари-Парк , школа верховой езды, стрелковый клуб, озеро Дудергофское, Нагорный парк, трассы для мотокросса.Звоните Просмотры по договоренности.

Читать полностью

    Для того, чтобы купить 2-этажный коттедж по адресу: коттеджный поселок Удачный, позвоните по телефону +7 (911) 827-96-64. Торопитесь! Объявление №50016855533 о продаже двухэтажного коттеджа опубликовано 18 марта 2026.

    Позвонить Написать
    18 000 000 Р214 300 $ или 185 000
    Агент
    +7 (911) 827-96-64
    Начать чат с агентом
    Похожие предложения в Ломоносовском районе
    Дом в Ленинградская область, Ломоносовский район, Аннинское городское ... - Фото 1
    Дом в Ленинградская область, Ломоносовский район, Аннинское городское ... - Фото 2
    1 этаж, общая площадь 155м², участок 6 соток

    Дом будущего, доступный уже сегодня Умный, теплый и готовый для вашей жизни Не просто дом, а высокотехнологичный ковчег комфорта и надежности. Это идеальный баланс передовых инженерных решений, продуманного дизайна и уютной атмосферы для семьи. Здесь...
    • 1 эт.
    • 155 м²
    • 6 сот.
    17 000 000 Р
    Агент
    +7 (981) Показать номер
    Посмотреть контакты
    Дом в Ленинградская область, Ломоносовский район, Оржицкое с/пос, д. ... - Фото 1
    Дом в Ленинградская область, Ломоносовский район, Оржицкое с/пос, д. ... - Фото 2
    1 этаж, общая площадь 133м², участок 10 соток

    Покупай сейчас - плати потом На данный объект доступна рассрочка на выгодных условияхПродается НОВЫЙ современный дом в экологически чистой деревне Вильповицы ДОМ ГАЗИФИЦИРОВАН ДОМ- Современная постройка- Выполнена чистовая отделка- Готовый кухонный...
    • 1 эт.
    • 133 м²
    • 10 сот.
    17 355 000 Р
    Агент
    +7 (911) Показать номер
    Посмотреть контакты
    Дом в Ленинградская область, Ломоносовский район, Ропшинское с/пос, ... - Фото 1
    Дом в Ленинградская область, Ломоносовский район, Ропшинское с/пос, ... - Фото 2
    2 этажа, общая площадь 97м², участок 12 соток

    Арт.Уютный дом в сложившемся КП Новосел комфорт-класса.Подойдёт для тех, кто:Желает жить в тихом экологичном месте;Хочет сделать выгодное вложение и приобрести комфорт загородной жизни;Уютное, тихое место - хорошие виды на лес;Возможна регистрация по...
    • 2 эт.
    • 97 м²
    • 12 сот.
    18 000 000 Р
    Агент
    +7 (911) Показать номер
    Посмотреть контакты
    Коттедж в Ленинградская область, Ломоносовский район, Виллозское ... - Фото 1
    Коттедж в Ленинградская область, Ломоносовский район, Виллозское ... - Фото 2
    3 этажа, общая площадь 157м², участок 14 соток

    Объект: дом 152 кв м и участок 14,5 сот . Тип дома: кирпичный.Расположение: недалеко от железнодорожной станции Красное Село , СНТ Надежда ВМА им. Кирова.Размер участка: 14,5 сотокНазначение участка: для садоводства.Состояние участка: сухой, огорожен.Коммуникации:...
    • 3 эт.
    • 157 м²
    • 14 сот.
    17 900 000 Р
    Агент
    +7 (981) Показать номер
    Посмотреть контакты
    Дом в Ленинградская область, Ломоносовский район, Кипенское с/пос, д. ... - Фото 1
    Дом в Ленинградская область, Ломоносовский район, Кипенское с/пос, д. ... - Фото 2
    3 этажа, общая площадь 283м², участок 14 соток

    ID: 312281Продаю хороший добротный дом с земельным участком в дер. Черемыкино. Данное предложение имеет множество плюсов: Площадь Дома по документам = 283,4 кв.м. Кадастр.номер: 47:14:1113004:32Площадь зем.участка = 14,4 сот. Кадастр. номер: 47:14:1113004:26....
    • 3 эт.
    • 283 м²
    • 14 сот.
    19 000 000 Р
    Агент
    +7 (911) Показать номер
    Посмотреть контакты

    Не нашли подходящего объявления?

    Оставьте заявку, и наши риэлторы подберут купить дом в районе Ломоносовского района

    (0)