9 882 000 Р 127 000 $ или 108 900

Информация о коттедже

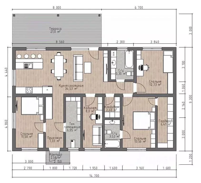
144 м2
Площадь
1
Этажность
8 cоток
Участок

Дополнительная информация

Дом продаётся вместе с участком
есть
Развернуть
Агент
+7 (911) 031-16-48
Начать чат с агентом

Дом в Ленинградская область, Ломоносовский район, Низинское с/пос, ...

Хотите жить в тёплом и светлом доме в живописной деревне Троицкая Гора? Идеальное решение для тех, кто мечтает о собственном доме вне городской суеты Уют и комфорт ждут вас здесь Одноэтажный коттедж площадью 144,3 м от надёжного застройщика, включая террасу 22 кв.м Первый этаж: просторная кухня-гостиная, удобная спальня, детская и кабинет (можно переделать в доп комнату) и современный санузел. Стены по каркасным технологиям, сохраняющих тепло зимой и прохладу летом. Доступна семейная ипотека на выгодных условиях Условия приобретения:- Работаем без предоплат - оплата по окончанию всех этапов сделки Юридическое сопровождение на всех этапах сделки.- Стоимость указана за теплый контур дома без внутренней отделки и инженерных сетей. Помогаем с проектированием и планировкой под ваши потребности.- Можно заказать отделку под ключ и включить ее в ипотеку- Помогаем бесплатно подобрать участок, если у вас его еще нет. Помогаем с геологией.-- Помогаем с первоначальным взносом без , если у Вас не хватает на него.- Помогаем с одобрением ипотеки в сложных случаях Создавайте свою историю семейного счастья именно здесь Не упустите шанс стать собственником комфортного дома мечты уже сегодня семейнаяипотека домснуля жизньзапределамигорода домдлясемьи жильёподипотеку домпоипотеке

Читать полностью

    Для того, чтобы купить 1-этажный коттедж по адресу: , позвоните по телефону +7 (911) 031-16-48. Торопитесь! Объявление №50016792932 о продаже одноэтажного коттеджа опубликовано 18 февраля 2026.

    Позвонить Написать
    9 882 000 Р127 000 $ или 108 900
    Агент
    +7 (911) 031-16-48
    Начать чат с агентом
    Похожие предложения в Ломоносовском районе
    Дом в Ленинградская область, Ломоносовский район, Пениковское с/пос, ... - Фото 1
    Дом в Ленинградская область, Ломоносовский район, Пениковское с/пос, ... - Фото 2
    2 этажа, общая площадь 82м², участок 13 соток

    342977 Ваш уголок уюта- каркасный дом с террасой и 13 соток земли в престижном месте.Каркасный дом для круглогодичного проживания ,был построен и утеплен из качественных материалов по эксклюзивному проекту в 2022 году,внутри черновая отделка. Большая...
    • 2 эт.
    • 82 м²
    • 13 сот.
    9 800 000 Р
    Агент
    +7 (981) Показать номер
    Посмотреть контакты
    Продажа дома, Кузнецы, Ломоносовский район, Цветочная улица - Фото 1
    Продажа дома, Кузнецы, Ломоносовский район, Цветочная улица - Фото 2
    Продажа дома, Кузнецы, Ломоносовский район, Цветочная улица - Фото 3
    Продажа дома, Кузнецы, Ломоносовский район, Цветочная улица - Фото 4
    Продажа дома, Кузнецы, Ломоносовский район, Цветочная улица - Фото 5
    Продажа дома, Кузнецы, Ломоносовский район, Цветочная улица - Фото 6
    Продажа дома, Кузнецы, Ломоносовский район, Цветочная улица - Фото 7
    Продажа дома, Кузнецы, Ломоносовский район, Цветочная улица - Фото 8
    Продажа дома, Кузнецы, Ломоносовский район, Цветочная улица - Фото 9
    Продажа дома, Кузнецы, Ломоносовский район, Цветочная улица - Фото 10
    Продажа дома, Кузнецы, Ломоносовский район, Цветочная улица - Фото 11
    Продажа дома, Кузнецы, Ломоносовский район, Цветочная улица - Фото 12
    Продажа дома, Кузнецы, Ломоносовский район, Цветочная улица - Фото 13
    Продажа дома, Кузнецы, Ломоносовский район, Цветочная улица - Фото 14
    Продажа дома, Кузнецы, Ломоносовский район, Цветочная улица - Фото 15
    Продажа дома, Кузнецы, Ломоносовский район, Цветочная улица - Фото 16
    Продажа дома, Кузнецы, Ломоносовский район, Цветочная улица - Фото 17
    Продажа дома, Кузнецы, Ломоносовский район, Цветочная улица - Фото 18
    Продажа дома, Кузнецы, Ломоносовский район, Цветочная улица - Фото 19
    1 этаж, общая площадь 115м², кол-во комнат 3, год постройки 2024, участок 7 соток

    id:31838. КАМЕННЫЙ КРАСАВЕЦ!!! - ТЕРРАСА - ВЫСОКИЕ ПОТОЛКИ - ПАНОРАМНЫЕ ОКНА - ТЕПЛЫЕ ПОЛЫ ОТ КОТЛА - ГОСТЕВАЯ ПАРКОВКА - АСФАЛЬТ ДО ДОМА - ДЕТСКАЯ ПЛОЩАДКА - ДЕТСКИЙ САД - ШКОЛА - ОЗЕРО - ФИНСКИЙ ЗАЛИВ ДОМ площадью 110 кв.м....
    • 1 эт.
    • 115 м²
    • 7 сот.
    • 3-ком
    9 989 000 Р
    Агент
    +7 (902) Показать номер
    Агентство
    ТЕРРАСА
    Посмотреть контакты
    Дом в Ленинградская область, Ломоносовский район, Лаголовское с/пос, ... - Фото 1
    Дом в Ленинградская область, Ломоносовский район, Лаголовское с/пос, ... - Фото 2
    1 этаж, общая площадь 140м², участок 9 соток

    Действуй Пиши/звони Дом комфорт-класса для постоянного проживания.ЛЬГОТНАЯ ИПОТЕКА - да Коммуникации - да Ремонт под ключ - да - Помощь в получении ипотеки.- Прозрачность сделки.- Юридическое сопровождение.- Продажа от юрлица.Аккредитованный застройщик....
    • 1 эт.
    • 140 м²
    • 9 сот.
    9 800 000 Р
    Агент
    +7 (981) Показать номер
    Посмотреть контакты
    Дом в Ленинградская область, Ломоносовский район, Лебяженское ... - Фото 1
    Дом в Ленинградская область, Ломоносовский район, Лебяженское ... - Фото 2
    2 этажа, общая площадь 148м², участок 12 соток

    2-17620 В продаже дом 148,2 метра без внутренней отделки, материал стен бетонные блоки( газобетон 400-самый широкий),перекрытия между этажами-арматура+бетонные, шумоизолированные, лестница на второй этаж бетонная( заливная), в доме 2 санузла, на втором...
    • 2 эт.
    • 148 м²
    • 12 сот.
    9 990 000 Р
    Агент
    +7 (981) Показать номер
    Посмотреть контакты
    Дом в Ленинградская область, Ломоносовский район, Оржицкое с/пос, ... - Фото 1
    Дом в Ленинградская область, Ломоносовский район, Оржицкое с/пос, ... - Фото 2
    2 этажа, общая площадь 135м², участок 9 соток

    Продается двухэтажный капитальный дом из газобетона площадью 135,5 кв. м на участке 9,55 соток в зеленом обжитом садоводстве.Номер объекта: 100_216Дом идеально подходит для круглогодичного проживания. На первом этаже расположена просторная кухня-гостиная...
    • 2 эт.
    • 135 м²
    • 9 сот.
    9 990 000 Р
    Агент
    +7 (911) Показать номер
    Посмотреть контакты

    Не нашли подходящего объявления?

    Оставьте заявку, и наши риэлторы подберут купить дом в районе Ломоносовского района

    (0)