Реализация объекта недвижимости приостановлена

Информация о коттедже

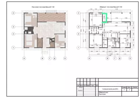
115.0 м2
Площадь
1
Этажность
10.0 cоток
Участок

Дополнительная информация

Дом продаётся вместе с участком
есть
Развернуть

Дом в Гостилицкое сельское поселение, коттеджный посёлок Фаворит (115 ...

В поселке комфорт-класса «Фаворит с охраняемой территорией и развитой инфраструктурой предлагается новый каркасный дом 2023 года постройки, полностью готовый к проживанию. Общая площадь основного строения составляет 115 кв. м, дополнением служит отдельная баня площадью 40 кв. м, выполненная в едином архитектурном стиле. Оба здания отделаны качественными японскими фасадными панелями KMEW, что обеспечивает современный внешний вид и высокую долговечность. Теплоэффективность объекта подтверждается усиленным утеплением стен в 200 мм и кровли в 250 мм, а также установкой энергоэффективных панорамных окон. Инженерное оснащение включает автономную систему отопления от газгольдера на 1800 литров, бойлер для бесперебойного горячего водоснабжения на 150 литров и современную станцию биологической очистки «Астра 5 . В стоимость входит кухонный гарнитур. Объект сочетает преимущества современной инженерии, безопасную среду охраняемого поселка и отсутствие необходимости в дополнительных вложениях для заселения.Номер в базе:. Код пользователя: 176712

Читать полностью

    Реализация объекта недвижимости приостановлена

    Не нашли подходящего объявления?

    Оставьте заявку, и наши риэлторы подберут купить дом в районе Ломоносовского района

    (0)