Реализация объекта недвижимости приостановлена

Информация о коттедже

184.0 м2
Площадь
1
Этажность
10.0 cоток
Участок

Дополнительная информация

Дом продаётся вместе с участком
есть
Развернуть

Коттедж в Ленинградская область, Ломоносовский район, Виллозское ...

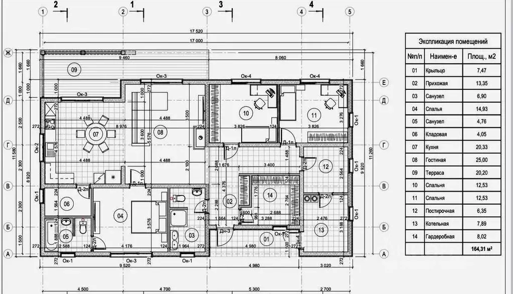
Продажа жилого дома. Ломоносовский район, Виллозское городское поселение, коттеджный поселок Удачный.Полностью готовый жилой дом 164 метра на земельном участке 10 соток. Каркасный дом, по современной технологии. Фундамент плита. Полы - ламинат, керамогранит, окна двухкамеркамерные стеклопакеты, дверь входная цельнометаллическая дверь с терморазрывом. Крыша двухскатная с надежной стропильной системой. Кровля - металлическая черепица. Установлена водосточная система. Отопление - магистральный газ. Теплые водяные полы по всему дому. Электричество трех фазное. Канализация - 2 септика. Водоснабжение собственная скважина, система очистки воды. Кондиционеры. Современая планировка: кухня-гостиная, терраса, четыре изолированные комнаты, сауна, два совмещенных санузла, хозяйственная комната, котельная.Идеальный участок: огорожен, выровнен, засеян газон. Откатные ворота, заезд для четырех автомобилей. Высажены туи. Хозблок для обслуживания участка. Вид на горнолыжный комплекс Туутари-парк. Рядом - конный клуб Туутари, Grand Stable, Дудергоф, Ингерманландия, стрелковый клуб Русское оружие, зоны рекреации и отдыха.

Читать полностью

    Реализация объекта недвижимости приостановлена

    Не нашли подходящего объявления?

    Оставьте заявку, и наши риэлторы подберут купить дом в районе Ломоносовского района

    (0)