5 650 000 Р 70 790 $ или 60 790

Информация о квартире

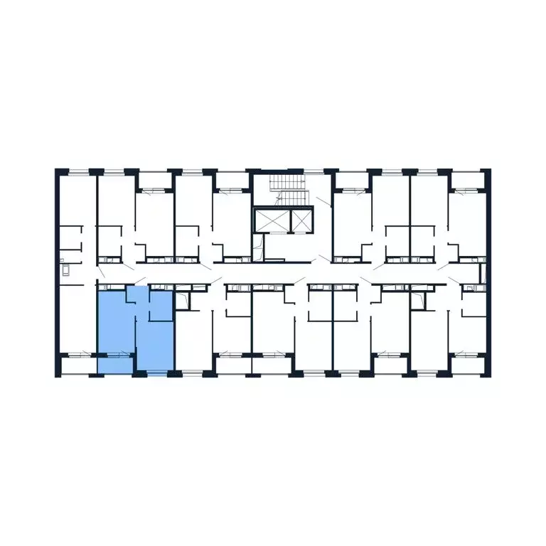
30 м2
Площадь
10 м2
Жилая
12 м2
Кухня
1
Комната
5
Этаж
9
Этажность
Развернуть
Агент
+7 (911) 269-95-50
Начать чат с агентом

1-комнатная квартира: Новоселье, Невская улица, 9 (30 м)

1-92280 Продается 1 комнатная очень уютная квартира в новом доме ЖК Уютный . Дом 9-ти этажный, теплый с хорошей шумоизоляцией, фасадные стены кирпичные,.Закрытый двор без машин.Красивый и просторный внутренний двор с ландшафтным дизайном, оборудованные детские площадки для разных возрастных групп.По внешним сторонам дома коммерческие помещения в которых разместились необходимые для жизни магазины, аптеки, кафе, пункты выдчи и другое.По периметру дома бесплатные парковочные места для жителей дома и гостей.Дом находится в благоустроенном месте городского поселения, и в тоже время между двумя корпусами ЖК Уютный , что создает комфортную среду для жизни. Корпуса сданы и заселены - не будет шума от ремонта и отделки квартир.Парадные просторные, светлые, безопастные с высокими потолками, хорошим освещением, сквозные имеют два входа - с улицы и со двора.Есть парковка для колясок и велосипедов.Лифт грузовой Отис, понятная навигация на этажах, лестничные марши широкие.На этаже 5 квартир в данной секции.Квартира без отделки, с хорошо выравнеными стенами, электрика установлена, батареи отопления с регуляторами, счетчики на тепло - экономия расходов по коммунальным платежам.Удобная кухня-гостинная с выделенной зоной кухни, выходом на лоджию.Высота потолков 2,72м.Прихожая 3,9 м2 где можно разместить гардеробный шкаф.Светлая спальня 10,3 м2 с большим окном.Совмещенный санузел с нишей для шкафа.Прямая продажа, один собственник, готовы на быстрый выход на сделку. Звоните, покажем квартиру.Итака. 30 лет на рынке.

Читать полностью

    Для того, чтобы купить однокомнатную квартиру по адресу: Новоселье, Невская улица, 9, позвоните по телефону +7 (911) 269-95-50. Торопитесь! Объявление №30091108564 о продаже однокомнатной квартиры опубликовано 16 октября 2025.

    Позвонить Написать
    5 650 000 Р70 790 $ или 60 790
    Агент
    +7 (911) 269-95-50
    Начать чат с агентом
    Похожие предложения
    1-к кв. Ленинградская область, Ломоносовский район, Аннинское ... - Фото 1
    1-к кв. Ленинградская область, Ломоносовский район, Аннинское ... - Фото 2
    1-комнатная квартира, общая площадь 30м², жилая 10м², кухня 12м²

    1-92280 В одном из самых уютных и благоустроенных мест Ленинградской области в Новоселье, продается 1 комнатная очень приятная квартира в ЖК Уютный Дом 9-ти этажный, теплый с хорошей шумоизоляцией, фасадные стены кирпичные.Окна квартиры выходят на красивый...
    • 30 м²
    • 1-ком
    • 5/9 эт.
    5 650 000 Р
    Агент
    +7 (981) Показать номер
    Посмотреть контакты
    Студия Ленинградская область, Ломоносовский район, Аннинское городское ... - Фото 1
    Студия Ленинградская область, Ломоносовский район, Аннинское городское ... - Фото 2
    студия, общая площадь 25м², кухня 5м²

    Продается современная студия площадью 25.79 кв.м на 4 этаже в сданном 12-этажном доме комфорт-класса. О ЖИЛОМ КОМПЛЕКСЕКвартира находится в жилом комплексе ЛесART , чьим ключевым преимуществом является уникальное расположение в окружении лесопитомника...
    • 25 м²
    • студия-ком
    • 4/12 эт.
    5 600 000 Р
    Агент
    +7 (911) Показать номер
    Посмотреть контакты
    1-комнатная квартира: Новоселье, Центральная улица, 30к2 (30.5 м) - Фото 1
    1-комнатная квартира: Новоселье, Центральная улица, 30к2 (30.5 м) - Фото 2
    1-комнатная квартира, общая площадь 30м², кухня 12м²

    Прямая продажа от застройщика Готовая Евро-двушка 30.5 кв.м с кухней 12.36 кв.м с предчистовой отделкой на 9 этаже в сданном ЖК «Полис Новоселье .Скидка в октябре до 400 000, семейная ипотека от 4,5 без удорожания квартиры на весь срок кредита, рассрочка...
    • 30 м²
    • 1-ком
    • 9/12 эт.
    5 688 888 Р
    Агент
    +7 (911) Показать номер
    Посмотреть контакты
    1-комнатная квартира: Новоселье, Центральная улица, 30к2 (30.7 м) - Фото 1
    1-комнатная квартира: Новоселье, Центральная улица, 30к2 (30.7 м) - Фото 2
    1-комнатная квартира, общая площадь 30м², кухня 12м²

    Прямая продажа от застройщика Готовая Евро-двушка 30.7 кв.м с кухней 12.37 кв.м с предчистовой отделкой на 11 этаже в сданном ЖК «Полис Новоселье .Скидка в октябре до 400 000, семейная ипотека от 4,5 без удорожания квартиры на весь срок кредита, рассрочка...
    • 30 м²
    • 1-ком
    • 11/12 эт.
    5 748 889 Р
    Агент
    +7 (911) Показать номер
    Посмотреть контакты
    1-комнатная квартира: Новоселье, Центральная улица, 30к1 (31 м) - Фото 1
    1-комнатная квартира: Новоселье, Центральная улица, 30к1 (31 м) - Фото 2
    1-комнатная квартира, общая площадь 31м², кухня 12м²

    Прямая продажа от застройщика Готовая Евро-двушка 31 кв.м с кухней 12.96 кв.м с предчистовой отделкой на 9 этаже в сданном ЖК «Полис Новоселье .Скидка в октябре до 400 000, семейная ипотека от 4,5 без удорожания квартиры на весь срок кредита, рассрочка...
    • 31 м²
    • 1-ком
    • 9/12 эт.
    5 660 889 Р
    Агент
    +7 (911) Показать номер
    Посмотреть контакты

    Не нашли подходящего объявления?

    Оставьте заявку, и наши риэлторы подберут квартиру в районе Новоселья

    (0)