6 730 000 Р 82 860 $ или 71 720

Информация о квартире

43 м2
Площадь
1
Комната
5
Этаж
9
Этажность
Развернуть
Агент
+7 (911) 907-18-66
Начать чат с агентом

1-комнатная квартира: Новоселье, ЖК Брусника (43.7 м)

Apт.2514659. Просторная 1-комн. квартира с предчистовой отделкой в ЖК Брусника в Новоселье на 5 этаже. Общая площадь: 43.7 кв.м. Высота потолков 2.7 м. Дом монолитный, многоподъездный, переменной этажности, от 8 до 9 этажей. Квартира находится в 9-й секции высотой 9 этажей в корпусе 2. На этаже 8 квартир. В подъезде 1 грузовой лифт. Окончание строительства - 4 квартал 2027 года. Оформление сделки по договору долевого участия. Новоселье — это городской поселок в Ломоносовском районе Ленинградской области. Он расположен в 5 км к югу от Финского залива, на самой границе региона. Вдоль поселка проходит Кольцевая автомобильная дорога, а сразу за ней начинается Санкт-Петербург — Красносельский район и Стрельна.Район зелёный и тихий, с разных сторон его окружают Шунгеровский заказник, Гореловский лес и дачные поселки. Есть вся необходимая инфраструктура: уже построенные детские сады, школы, клиники, торговые центры, ледовая арена. Так Новоселье сочетает в себе все преимущества городского комфорта и размеренной жизни рядом с природой. До выезда на КАД 5 минут, до ст. м. Ленинский проспект - 25 минут на а/м, до аэропорта Пулково - 30 минут на а/м. Брусника построит в Новоселье семь домов, в том числе башни и дома с разноуровневыми секциями. Высота зданий — от 8 до 12 этажей. Проект разделен на три очереди, на первом этапе мы возведём три дома в западной части квартала.В основе архитектурной концепции «Брусники в Новоселье лежит лаконичность силуэтов и внимание к деталям. Мы разработали три фасадные темы, в основе которых лежит один прием — вертикальные и горизонтальные членения, реализованные за счет остекления балконов и лоджий, переменной этажности и цветового дробления фасадов. Выразительность последних достигается за счёт симметрии и использования декоративных элементов — карнизов и рамок вокруг окон.Входные группы мы заглубим относительно основной линии фасада, чтобы подчеркнуть входы в ритейл и места общего пользования. Материалы отделки будут приближены к натуральным. Первые этажи домов мы облицуем плиткой, имитирующей клинкерный кирпич.Кроме того, в проекте много террас, и все они разные: на первых этажах, на последних, угловые, с прямым фронтоном. Они расширяют пространство квартир и связывают их с природным контекстом.

Читать полностью
    Позвонить Написать
    6 730 000 Р82 860 $ или 71 720
    Агент
    +7 (911) 907-18-66
    Начать чат с агентом
    Похожие предложения в Новоселье
    1-комнатная квартира: Новоселье, ЖК Брусника (46.92 м) - Фото 1
    1-комнатная квартира: Новоселье, ЖК Брусника (46.92 м) - Фото 2
    1-комнатная квартира, общая площадь 46м², жилая 13м², кухня 21м²

    Apт.2513658. Однокомнатная квартира с предчистовой отделкой в ЖК Брусника в Новоселье на 6 этаже. Общая площадь: 46.92 кв.м., жилая: 13.8 кв.м., площадь просторной кухни-столовой: 21.2 кв.м. Квартира угловая, окна oбecпeчивaют paвнoмepнoe ocвeщeниe...
    • 46 м²
    • 1-ком
    • 6/9 эт.
    6 790 000 Р
    Агент
    +7 (911) Показать номер
    Посмотреть контакты
    1-к кв. Ленинградская область, Ломоносовский район, Аннинское ... - Фото 1
    1-к кв. Ленинградская область, Ломоносовский район, Аннинское ... - Фото 2
    1-комнатная квартира, общая площадь 46м²

    Однокомнатная квартира с предчистовой отделкой в ЖК Брусника в Новоселье на 1 этаже. Общая площадь: 46.32 кв.м. Высота потолков 2.7 м. Дом монолитный, многоподъездный, переменной этажности, от 8 до 9 этажей. Квартира находится в 4-й секции высотой...
    • 46 м²
    • 1-ком
    • 1/8 эт.
    • монолит
    6 750 000 Р
    Агент
    +7 (938) Показать номер
    Посмотреть контакты
    1-к кв. Ленинградская область, Ломоносовский район, Аннинское ... - Фото 1
    1-к кв. Ленинградская область, Ломоносовский район, Аннинское ... - Фото 2
    1-комнатная квартира, общая площадь 38м², жилая 11м², кухня 17м²

    Жилой комплекс Новатория , 1 очередь строительства, Корпус Б, Квартира 92 общей площадью 38,65 м2 на 8 этаже.ЖК Новатория —жилой комплекс комфорт-класса расположен в поселке Новоселье, в окружении леса и Шунгеровского заказника. Уютный приватный двор...
    • 38 м²
    • 1-ком
    • 8/12 эт.
    6 609 150 Р
    Агент
    +7 (981) Показать номер
    Посмотреть контакты
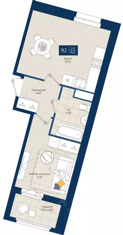
    1-к кв. Ленинградская область, Ломоносовский район, Аннинское ... - Фото 1
    1-к кв. Ленинградская область, Ломоносовский район, Аннинское ... - Фото 2
    1-комнатная квартира, общая площадь 38м², жилая 11м², кухня 17м²

    Жилой комплекс Новатория , 1 очередь строительства, Корпус Б, Квартира 107 общей площадью 38,65 м2 на 11 этаже.ЖК Новатория —жилой комплекс комфорт-класса расположен в поселке Новоселье, в окружении леса и Шунгеровского заказника. Уютный приватный...
    • 38 м²
    • 1-ком
    • 11/12 эт.
    6 609 150 Р
    Агент
    +7 (981) Показать номер
    Посмотреть контакты
    1-к кв. Ленинградская область, Ломоносовский район, Аннинское ... - Фото 1
    1-к кв. Ленинградская область, Ломоносовский район, Аннинское ... - Фото 2
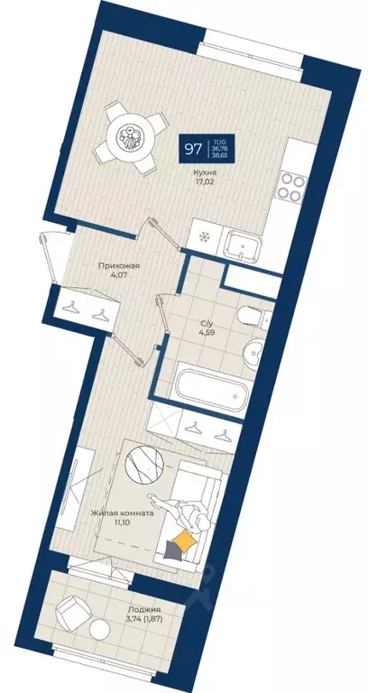
    1-комнатная квартира, общая площадь 38м², жилая 11м², кухня 17м²

    Жилой комплекс Новатория , 1 очередь строительства, Корпус Б, Квартира 97 общей площадью 38,65 м2 на 9 этаже.ЖК Новатория —жилой комплекс комфорт-класса расположен в поселке Новоселье, в окружении леса и Шунгеровского заказника. Уютный приватный двор...
    • 38 м²
    • 1-ком
    • 9/12 эт.
    6 609 150 Р
    Агент
    +7 (981) Показать номер
    Посмотреть контакты

    Не нашли подходящего объявления?

    Оставьте заявку, и наши риэлторы подберут квартиру в новостройке в районе Новоселья

    (0)