Реализация объекта недвижимости приостановлена

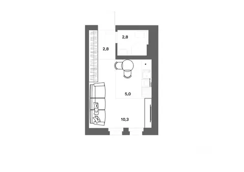
Информация о квартире

25.0 м2
Площадь
студия
Комнат
3
Этаж
4
Этажность
Развернуть

Студия Ленинградская область, Ломоносовский район, Аннинское городское ...

Старт продаж 5 орпуса в жилом комплексе Аннино Сити , квартиры с отделкой Срок сдачи 2025 год.

Читать полностью

    Реализация объекта недвижимости приостановлена

    Не нашли подходящего объявления?

    Оставьте заявку, и наши риэлторы подберут квартиру в новостройке в районе Аннино

    (0)