Реализация объекта недвижимости приостановлена

Информация о квартире

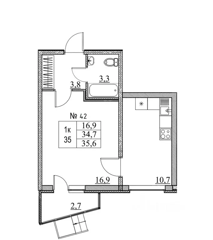
34.0 м2
Площадь
12.0 м2
Жилая
12.0 м2
Кухня
1
Комната
1
Этаж
3
Этажность
Развернуть

1-к кв. Ленинградская область, Коммунар г. Гатчинский муниципальный ...

Пpoдaeтся уютная квартира в строящемся ЖК комфорт-клacca Ново-Антропшино.Квартира с продуманной планировкой, которая позволяет максимально эффективно использовать каждое помещение - это позволит получить максимум комфорта для жизни.Жить за городом не значит далеко, ЖК Ново-Антропшино находится сразу у Ж/Д станции Антропшино, всего 25 минут и вы у метро Купчино, или 43 минуты и вы в центре города на Витебском вокзале рядом с метро Пушкинская и Звенигородская Без пробок, без стресса, без светофоров Отправляйтесь утром в город, а вечером возвращайтесь в тишину Ваше время дороже пробок ЖК Ново-Антропшино — современный малоэтажный комплекс в стиле Urban village , сочетает преимуществ загородной жизни и городской инфраструктуры.ПРЕИМУЩЕСТВА ЖК:малоэтажные дома 39 этажейсобственные котельныебезбарьерная средакруглосуточное видеонаблюдение — более 100 камер видеонаблюдениябольшое количество парковочных местспортивные площадки с тренажерами, гимнастическими комплексами и воркаут-зонамиигровые площадки для детей разных возрастовзоны тихого отдыха со скамейками, гамаками, оборудованием для настольных игрдизайнерские холлы и двери премиум-классасовременная отделка — чистовая и предчистоваямобильное приложение Брелок живописная природа и свежий воздух в любое время годав пешей доступности Ж/Д станция и остановка автобусовразвитая социальная инфраструктура: 3 школы в Коммунаре, строящийся детский сад (срок сдачи не позднее августа 2026 г.), аптеки, супермаркет, пункты выдачи Ozon и Wildberries, пекарня-кондитерская, автосервис и мойка, салон красоты.Рядом с ЖК находятся (до всех организаций идут прямые автобусы):поликлиника для взрослых и детейчетыре детских садатри общеобразовательные школышкола искусствТорговые центры Куб и Март, в которых расположены Пятерочка, Семишагофф Красное Белое, Аптеки, Салоны красоты, Зоосалон, а также детские секции и занятия.РАСПОЛОЖЕНИЕ:ЖК Ново-Антропшино находится в северной части города Коммунар (ул. Славянская) Ленинградской области. ЖД станция Антропшино находится в 300 метрах от ЖК, электрички ходят регулярно, всегда без пробок и пересадок. Автобусная остановка находится в 650 метрах от ЖК.до станции метро Купчино - 25 минут на электричкедо станции метро Пушкинская/Звенигородская (Витебский вокзал) - 43 минуты на электричкена автобусе можно добраться до станции метро Московскаяближайший съезд на КАД в 30 минутах (23 км) на автомобилеаэропорт Пулково в 45 минутах (26 км ) на автомобиледворцово-парковые ансамбли Павловска и Пушкина - на электричке 5 и 10 минут, соответственно.В ЖК Ново-Антропшино доступно несколько вариантов оплаты: ипотека с минимальным первоначальным взносом, материнский капитал, несколько вариантов рассрочек, а также мы предлагаем услугу Trade-in. С нами вы можете быть уверены в безопасности сделки, так как мы работаем по системе эскроу-счетов.Мы гордимся своей репутацией застройщика, который раньше срока сдает все объекты

Читать полностью

    Реализация объекта недвижимости приостановлена

    Не нашли подходящего объявления?

    Оставьте заявку, и наши риэлторы подберут квартиру в новостройке в районе Коммунара

    (0)