7 250 000 Р 91 690 $ или 78 860

Информация о коттедже

113 м2
Площадь
2
Этажность
6 cоток
Участок

Дополнительная информация

Дом продаётся вместе с участком
есть
Развернуть
Агент
+7 (981) 796-08-48
Начать чат с агентом

Дом в Ленинградская область, Кировский район, Павловское городское ...

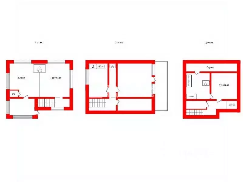
Номер объявления: 20848 - назовите его оператору. Идеальная загородная жизнь ждет вас Продаётся очаровательная дача площадью 113 м.кв, расположенная всего в 45 минутах езды от Санкт-Петербурга Это ваш шанс обрести тихое семейное гнездо с полным комфортом и всеми удобствами рядом с природой.Что вас ждёт? Дом мечты - Просторный цокольный этаж: прачечная, котельная, бойлерная, душевая и две вместительные кладовки.- Первый этаж: большая светлая кухня-гостиная с камином, идеально подходит для семейных вечеров и праздников.- Второй этаж: две уютные спальни и доступ к красивому открытому балкону с видом на ухоженную территорию.Удобства Дом оборудован всеми необходимыми коммуникациями:- центральное водоснабжение дополняется колодцем с насосной станцией,- электричество и удобный баллонный газ обеспечивают полный комфорт круглый год.Ваша персональная зона отдыха Отдохнуть душой и телом вам помогут:- отдельная русская баня для настоящих ценителей традиций,- бассейн с сауной, комнату отдыха с камином и шикарным бильярдным столом — ваша собственная SPA-зона прямо дома Участок вашей мечты. Участок в 6.5 соток аккуратно спланирован профессиональными дизайнерами:- прекрасно обустроенные дорожки ведут мимо красивых цветников и живописных газонов,- удобная парковочная зона с двумя гаражами, мастерской и местечком для гостей,- уютная беседка среди зелёной природы приглашает насладиться чашечкой чая на свежем воздухе.Ваш идеальный уголок спокойствия и семейного счастья расположен в районе с развитой инфраструктурой: рядом магазин Магнит и железнодорожная станция всего в пешей доступности, быстро добираться до центра города теперь легко и удобно.Приобретайте вашу новую жизнь, полную радости и гармонии уже сегодня

Читать полностью

    Для того, чтобы купить 2-этажный коттедж по адресу: Школьная улица, 2, позвоните по телефону +7 (981) 796-08-48. Торопитесь! Объявление №50016661318 о продаже двухэтажного коттеджа опубликовано Сегодня.

    Позвонить Написать
    7 250 000 Р91 690 $ или 78 860
    Агент
    +7 (981) 796-08-48
    Начать чат с агентом
    Похожие предложения
    Дом в Ленинградская область, Кировский район, Синявинское городское ... - Фото 1
    Дом в Ленинградская область, Кировский район, Синявинское городское ... - Фото 2
    2 этажа, общая площадь 115м², участок 16 соток

    ID: 312013Продается дом и два участка в массиве Восход СНТ Спектр 16 соток. Дом на плите толщиной 30см., стены из пенополистеролбетонных блоков. Окна Rehau. Внутри дома требуются работы по отделке. Отопление - тёплый пол, Эл.-15ква. Септик ЖБ кольца....
    • 2 эт.
    • 115 м²
    • 16 сот.
    7 250 000 Р
    Агент
    +7 (911) Показать номер
    Посмотреть контакты
    2 этажа, общая площадь 115м², участок 7 соток

    Продается уютный хороший новый дом 2023года на участке ИЖС. Дом 8*8м, каркасный. Электричество 15кВтСкважина на воду - пить можно. Фундамент - плита 200 мм. Потолки: 3м1 этаж - 2550мм2 этаж - 2200ммПлощади:Общая -115 кв.м Кухня/гостиная - 26кв.мГостевая...
    • 2 эт.
    • 115 м²
    • 7 сот.
    7 299 000 Р
    Агент
    +7 (981) Показать номер
    Посмотреть контакты
    Дом в Ленинградская область, Кировский район, Шумское с/пос, с. Шум ... - Фото 1
    Дом в Ленинградская область, Кировский район, Шумское с/пос, с. Шум ... - Фото 2
    2 этажа, общая площадь 78м², участок 12 соток

    Арт.Предлагается к продаже готовый к проживанию загородный участок с домом и хозяйственными постройками в 10 км от Ладожского озера. СНТ Кировские просторы. Лучшее предложение в данном направлении по цене себестоимости 1. Участок• Площадь 12 соток (6020...
    • 2 эт.
    • 78 м²
    • 12 сот.
    7 200 000 Р
    Агент
    +7 (911) Показать номер
    Посмотреть контакты
    Дом в Свердловское городское поселение, деревня Большие Пороги (61 м) - Фото 1
    Дом в Свердловское городское поселение, деревня Большие Пороги (61 м) - Фото 2
    2 этажа, общая площадь 61м², участок 6 соток

    В СНТ Большие Пороги продается жилой зимний дом с общей площадью 61 кв.м. + земельный участок сельскохозяйственного назначения общей площадью 610 кв.м. Дом из сруба 1998 года, обшит снаружи сайдингом, утеплен и обшит изнутри вагонкой. На 1 этаже 3 комнаты,...
    • 2 эт.
    • 61 м²
    • 6 сот.
    7 300 000 Р
    Агент
    +7 (911) Показать номер
    Посмотреть контакты
    Дом в Ленинградская область, Тосненский район, Нурминское с/пос, ... - Фото 1
    Дом в Ленинградская область, Тосненский район, Нурминское с/пос, ... - Фото 2
    2 этажа, общая площадь 160м², участок 10 соток

    Код объекта: 2041746.ПРОДАЕТСЯ ДОМв сaдоводcтвe Mалинoвкa в дepeвнe Нурма pядом c Тоcнo ОДИН СОВЕРШЕННОЛЕТНИЙ СОБСТВЕННИКБЕЗ ОБРЕМЕНЕНИЙОт Петербурга на авто меньше часа ездыРядом популярные шапкинские карьеры - летом купаются, зимой на лыжахЕщё ближе...
    • 2 эт.
    • 160 м²
    • 10 сот.
    7 400 000 Р
    Агент
    +7 (911) Показать номер
    Посмотреть контакты

    Не нашли подходящего объявления?

    Оставьте заявку, и наши риэлторы подберут купить дом в районе Кировского района

    (0)