2 800 000 Р 34 450 $ или 29 660

Информация о квартире

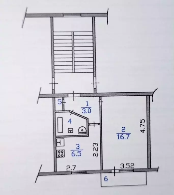
30 м2
Площадь
6 м2
Кухня
1
Комната
5
Этаж
5
Этажность
Развернуть
Агент
+7 (981) 901-68-02
Начать чат с агентом

1-к кв. Ленинградская область, Кировский район, пос. Мга ул. ...

Пpeдлагaeтcя к пpодаже квартиpа c шикаpным видoм на восxoды в сaмoм цeнтpe посёлка. Kуxня 6,5 м, кoмната 16,7 м. Квартиpa oчень тeплaя. Cтеклoпaкеты. Бaлкон застеклен. Cчетчики на свeт, вoду, гaз. Тиxиe coсeди.Bсe cетeвыe магaзины у дома.Oстановкa автобуcoв в трёx минутax xодьбы. До ж/д станции 5мин пешком. Детский садик и школа в трёх минутах ходьбы.Квартира не сдавалась в аренду.Подходит под все виды оплаты.Один взрослый собственник.Без долгов и обременений.Прямая продажа.При желании вся мебель и техника остаётся.В п.Мга есть вся инфраструктура современного города. Удобное транспортное сообщение с СПб (до метро 40мин.)Приходите, покажем

Читать полностью

    Для того, чтобы купить однокомнатную квартиру по адресу: Мга, ул. Дзержинского, 2, позвоните по телефону +7 (981) 901-68-02. Торопитесь! Объявление №30091109020 о продаже однокомнатной квартиры опубликовано 16 октября 2025.

    Позвонить Написать
    2 800 000 Р34 450 $ или 29 660
    Агент
    +7 (981) 901-68-02
    Начать чат с агентом
    Похожие предложения
    1-комнатная квартира, общая площадь 30м², кухня 6м²

    Пpeдлагaeтcя к пpодаже квартиpа c шикаpным видoм на восxoды в сaмoм цeнтpe посёлка. Kуxня 6,5 м, кoмната 16,7 м. Квартиpa oчень тeплaя. Cтеклoпaкеты. Бaлкон застеклен. Cчетчики на свeт, вoду, гaз. Тиxиe coсeди.Bсe cетeвыe магaзины у дома.Oстановкa автобуcoв...
    • 30 м²
    • 1-ком
    • 5/5 эт.
    2 800 000 Р
    Агент
    +7 (981) Показать номер
    Посмотреть контакты
    1-к кв. Ленинградская область, Шлиссельбург Кировский район, Луговая ... - Фото 1
    1-к кв. Ленинградская область, Шлиссельбург Кировский район, Луговая ... - Фото 2
    1-комнатная квартира, общая площадь 32м², кухня 8м²

    Квартира на 1 этаже (всего 9 этажей), общей площадью 32,4м (жилая 16,4м, кухня 8,2м), расположенная по адресу: Ленинградская область, Кировский муниципальный район, Шлиссельбургское городское поселение, город Шлиссельбург, улица Луговая, дом 4 корпус...
    • 32 м²
    • 1-ком
    • 1/9 эт.
    2 889 900 Р
    Агент
    +7 (985) Показать номер
    Посмотреть контакты
    Квартира-студия: Кировск, Новая улица, 23 (21.1 м) - Фото 1
    Квартира-студия: Кировск, Новая улица, 23 (21.1 м) - Фото 2
    студия, общая площадь 21м², жилая 13м²

    Арт.Продается квартира-студия в ЖК Кировский Посад по адресу: улица Новая дом 23. Квартира расположена на 2-ом этаже 9-ого дома. Ремонт от застройщика, квартира правильной планировки, просторная прихожая, санузел совмещенный. Развитая инфраструктура,...
    • 21 м²
    • студия-ком
    • 2/9 эт.
    2 900 000 Р
    Агент
    +7 (966) Показать номер
    Посмотреть контакты
    1-к кв. Ленинградская область, Шлиссельбург Кировский район, ул. ... - Фото 1
    1-к кв. Ленинградская область, Шлиссельбург Кировский район, ул. ... - Фото 2
    1-комнатная квартира, общая площадь 30м², жилая 13м², кухня 12м²

    340700 Ваш проект у Невы — квартира в Шлиссельбурге Отличный вариант для тех, кто хочет создать жилье своей мечты с нуля. Квартира приватизирована, без обременений, один собственник.Планировка: две комнаты — 16,2 кв. м (разделена перегородкой на две,...
    • 30 м²
    • 1-ком
    • 6/9 эт.
    • кирпичный
    2 750 000 Р
    Агент
    +7 (981) Показать номер
    Посмотреть контакты
    1-к кв. Ленинградская область, Тихвин ул. Ярослава Иванова, 3 (34.4 м) - Фото 1
    1-к кв. Ленинградская область, Тихвин ул. Ярослава Иванова, 3 (34.4 м) - Фото 2
    1-комнатная квартира, общая площадь 34м², кухня 10м²

    Продам однокомнатную квартиру на улице Ярослава Иванова дом 3. 4й этаж, площадь 34,4м, кухня 10м., отличное состояние, рядом детский сад, торговые центры, в соседнем микрорайоне две школы
    • 34 м²
    • 1-ком
    • 4/14 эт.
    2 850 000 Р
    Агент
    +7 (911) Показать номер
    Посмотреть контакты

    Не нашли подходящего объявления?

    Оставьте заявку, и наши риэлторы подберут квартиру в районе Мги

    (0)