Реализация объекта недвижимости приостановлена

Информация об помещении

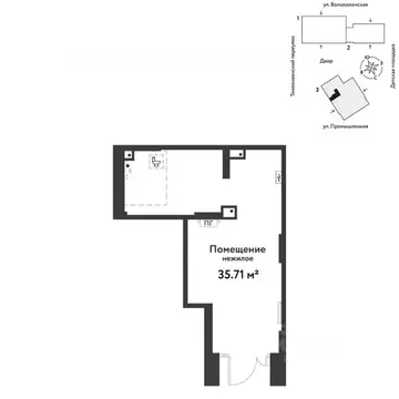
цоколь
Этаж

Состояние и оснащение

Количество этажей
1
Развернуть

Торговая площадь в Ленинградская область, Кировск ул. Победы, 8а (124 ...

Продается Габ, с арендатором К Б, договор с 2023 года на 15 лет, 28квт, аренда — 85тыс+компенсация Ку+индексация (цена — всего 100 аренд). Кадастровый номер помещения -47:16:0106001:599. Плюсом объекта является то что это полностью нежилое здание ( не подпадает под возможные запреты по продаже алкоголя) в центре города в устоявшемся жилом массиве- хорошо видно с проезжей части, 30 км от спб, полная стоимость, продажа от ИП.

Читать полностью

    Реализация объекта недвижимости приостановлена

    Не нашли подходящего объявления?

    Оставьте заявку, и наши риэлторы подберут торговое помещение в районе Кировска

    (0)