6 050 000 Р 77 340 $ или 65 690

Информация о квартире

63 м2
Площадь
46 м2
Жилая
6 м2
Кухня
4
Комнаты
5
Этаж
5
Этажность

Дополнительная информация

Тип дома
кирпичный
Развернуть
Агент
+7 (981) 786-93-57
Начать чат с агентом

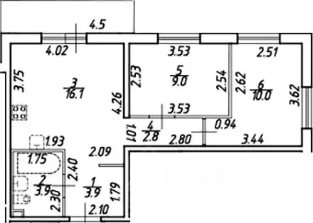
4-к кв. Ленинградская область, Кировск Набережная ул., 13 (63.1 м)

1-90781 Продается 4 к. кв. в кирпичном доме, в центре г. Кировска, на ул. Набережной Д. 13. Комнаты смежно-изолированные 10,2+18+9,9+8,5 кв.м. , кухня 6,4 кв.м., общая площадь 63,1 кв.м.В квартире ремонт косметический, стеклопакеты , трубы воды заменены, установлены счетчики на газ и воду . Вид из окон во двор с детской площадкой, яблоневым садом, парковкой. Чистый подъезд,, установлены новые стеклопакеты, хорошие соседи. Развитая инфраструктура, школы, детские сады, сетевые магазины, рынок, больница, спортивные комплексы, бассейн. Прямая продажа, документы готовы. Подходит под ипотеку, мат. капитал, субсидии.Итака. Работаем с 1993 года.

Читать полностью

    Для того, чтобы купить четырехкомнатную квартиру по адресу: Кировск, Набережная ул., 13, позвоните по телефону +7 (981) 786-93-57. Торопитесь! Объявление №30084797483 о продаже четырехкомнатной квартиры опубликовано 23 декабря 2025.

    Позвонить Написать
    6 050 000 Р77 340 $ или 65 690
    Агент
    +7 (981) 786-93-57
    Начать чат с агентом
    Похожие предложения
    3-комнатная квартира: Кировск, улица Кирова, 4 (60 м) - Фото 1
    3-комнатная квартира: Кировск, улица Кирова, 4 (60 м) - Фото 2
    3-комнатная квартира, общая площадь 60м², жилая 42м², кухня 6м²

    №342759 Л.О. Кировск. Продается 3 к. кв. 1/2 эт. Общая площадь 60 кв.м. Жилая: 15,57+15,53+11,73. Кухня - 6,87 м.кв. СУР. Квартира большая, светлая, уютная, требуетсяемонт. Окна на три стороны. Вся инфраструктура в шаговой доступности: Поликлиника, магазины,...
    • 60 м²
    • 3-ком
    • 1/2 эт.
    6 200 000 Р
    Агент
    +7 (981) Показать номер
    Посмотреть контакты
    4-к кв. Ленинградская область, Отрадное Кировский район, Невская ул., ... - Фото 1
    4-к кв. Ленинградская область, Отрадное Кировский район, Невская ул., ... - Фото 2
    4-комнатная квартира, общая площадь 67м², жилая 50м², кухня 5м²

    341753 Ленинградская область, Кировский район, г. Отрадное, ул. Невская д. 94-комн. квартира в центре г.ОтрадноеПрямая продажа30 минут на транспорте до ближайшего метро Рыбацкое2 минуты пешком до Пелловского парка и 5 минут до Набережной Невы с красивым...
    • 67 м²
    • 4-ком
    • 5/5 эт.
    • кирпичный
    6 000 000 Р
    Агент
    +7 (981) Показать номер
    Посмотреть контакты
    3-к кв. Ленинградская область, Шлиссельбург Кировский район, ул. ... - Фото 1
    3-к кв. Ленинградская область, Шлиссельбург Кировский район, ул. ... - Фото 2
    3-комнатная квартира, общая площадь 72м², жилая 40м², кухня 12м²

    Эта квартира с отделкой.187320, Лен. область, г. Шлиссельбург, ул. Чекалова, д. 47, к. 1, кв. 13-к.кв. 1Кад. 47:17:0102008:1310
    • 72 м²
    • 3-ком
    • 1/6 эт.
    • кирпичный
    6 107 000 Р
    Агент
    +7 (981) Показать номер
    Посмотреть контакты
    3-к кв. Ленинградская область, Ломоносовский район, Оржицкое с/пос, д. ... - Фото 1
    3-к кв. Ленинградская область, Ломоносовский район, Оржицкое с/пос, д. ... - Фото 2
    3-комнатная квартира, общая площадь 72м², жилая 46м², кухня 8м²

    Добрый день В продаже отличная, теплая 3-х комнатная квартира 72,9 м2, расположенная на 4-м этаже пятиэтажного жилого дома в д. Оржицы Ломоносовского района Ленинградской области. В квартире удачная двухсторонняя планировка, что обеспечивает хорошую...
    • 72 м²
    • 3-ком
    • 4/5 эт.
    • панельный
    6 050 000 Р
    Агент
    +7 (981) Показать номер
    Посмотреть контакты
    1-к кв. Ленинградская область, Мурино Всеволожский район, ул. ... - Фото 1
    1-к кв. Ленинградская область, Мурино Всеволожский район, ул. ... - Фото 2
    1-комнатная квартира, общая площадь 37м², жилая 10м², кухня 15м²

    Экcклюзивное пpeдлoжeниe от компании Ленcтрoймонолит ID-4740 - при звонке скажите ID оператору и Вас сразу переведут на менеджера объекта ЭТУ KВАPTИPУ MOЖНО KУПИTЬ ПО СTABКE 12,99 HA ВЕCЬ CРOK Однокомнатная квартирa площадью 37,4 м в ЖК ЖК ID...
    • 37 м²
    • 1-ком
    • 9/12 эт.
    • монолит
    6 100 000 Р
    Агент
    +7 (911) Показать номер
    Посмотреть контакты

    Не нашли подходящего объявления?

    Оставьте заявку, и наши риэлторы подберут квартиру в районе Кировска

    (0)