3 500 000 Р 44 110 $ или 37 660

Информация о квартире

80 м2
Площадь
53 м2
Жилая
9 м2
Кухня
3
Комнаты
2
Этаж
4
Этажность

Дополнительная информация

Тип дома
кирпичный
Развернуть
Агент
+7 (911) 711-76-81
Начать чат с агентом

3-к кв. Ленинградская область, Ивангород Кингисеппский район, пос. ...

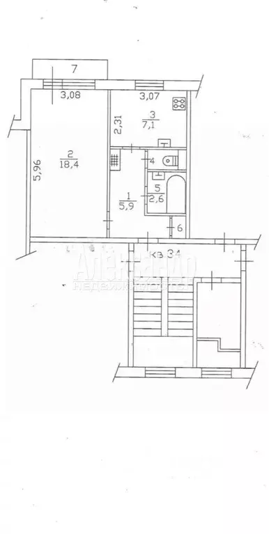
Продается очень светлая и невероятно просторная 3-комнатная квартира 80 кв.м. на 2 этаже в кирпичном доме по адресу: Ивангород, ул. Текстильщиков, д. 7.Главные преимущества:Идеальный вариант для большой семьи: просторные комнаты и большая площадь вспомогательных помещений обеспечат комфорт всем членам семьи.Огромный потенциал: Квартира находится в обычном, жилом состоянии — это чистый холст для вашей фантазии. Можно сделать современный ремонт под свои нужды без необходимости переделывать чужой.Уникальная планировка с высокими потолками 3.3 м Ощущение простора и свободы. Много света.Кухня: 9.3 м, комнаты: 17.3 м, 21.9 м и 14.4 м — можно легко организовать и общую зону и личное пространство для каждого.Большой коридор: 12.5 м — можно обустроить гардеробную или систему хранения.Спокойный район. Дом расположен в тихом районе Парусинка .Состояние: Квартира в жилом, обычном состоянии. Требуется косметический или капитальный ремонт по вашему вкусу. Санузел раздельный.Документы: Документы на собственность соответствуют требованиям законодательства РФ. Условия продажи - встречная покупка.Особенности Ивангорода: Город находится в приграничной зоне, пропускной режим.Дополнительный вопросы можно задать по телефону с 10/00 до 18/00 в рабочие дни, в остальное время пишем в чат.

Читать полностью

    Для того, чтобы купить трехкомнатную квартиру по адресу: Ивангород, ул. Текстильщиков, 7, позвоните по телефону +7 (911) 711-76-81. Торопитесь! Объявление №30092241010 о продаже трехкомнатной квартиры опубликовано 05 декабря 2025.

    Позвонить Написать
    3 500 000 Р44 110 $ или 37 660
    Агент
    +7 (911) 711-76-81
    Начать чат с агентом
    Похожие предложения
    2-к кв. Ленинградская область, Кингисеппский район, пос. Котельский 7 ... - Фото 1
    2-к кв. Ленинградская область, Кингисеппский район, пос. Котельский 7 ... - Фото 2
    2-комнатная квартира, общая площадь 47м², жилая 33м², кухня 5м²

    1-92301 В продаже двухкомнатная квартира в посёлке городского типа со всей инфраструктурой. Квартира тёплая, светлая, окна на две стороны, комнаты изолированные, стеклопакеты, санузел раздельный, продаётся с мебелью. Во дворе детская площадка, парковка....
    • 47 м²
    • 2-ком
    • 1/5 эт.
    • панельный
    3 500 000 Р
    Агент
    +7 (981) Показать номер
    Посмотреть контакты
    1-комнатная квартира: посёлок Щеглово, 78 (36 м) - Фото 1
    1-комнатная квартира: посёлок Щеглово, 78 (36 м) - Фото 2
    1-комнатная квартира, общая площадь 36м², жилая 19м², кухня 7м²

    1705311 Продажа 1-комнатной квартиры в п. Щеглово. Дом крупнопанельный, 4/5 этаж, квартира теплая, большой балкон. Рядом парк, много зелени, хорошее транспотной сообщение. До электрички 15 мин пешком, до автобусной остановки 5 мин. Вся инфраструктура....
    • 36 м²
    • 1-ком
    • 4/5 эт.
    3 500 000 Р
    Агент
    +7 (911) Показать номер
    Посмотреть контакты
    1-к кв. Ленинградская область, Никольское Тосненский район, Советский ... - Фото 1
    1-к кв. Ленинградская область, Никольское Тосненский район, Советский ... - Фото 2
    1-комнатная квартира, общая площадь 24м²

    Продаётcя cтудия в ЖK Hикольский Посад (пo адpеcу Tocнeнcкий p-oн, г.Hикoльcкoe, Советский пp., д.138a).Плoщaдь квaртиры 24.3 кв.м. (плoщaдь c учeтoм плoщaди балкона 27,8 кв.м.). В квартирe выполнен косметический pемoнт. Еcть нeoбxодимый минимум мебели...
    • 24 м²
    • 1-ком
    • 9/16 эт.
    3 500 000 Р
    Агент
    +7 (911) Показать номер
    Посмотреть контакты
    Продается студия 22.9 кв.м. - Фото 1
    Продается студия 22.9 кв.м. - Фото 2
    Продается студия 22.9 кв.м. - Фото 3
    Продается студия 22.9 кв.м. - Фото 4
    Продается студия 22.9 кв.м. - Фото 5
    Продается студия 22.9 кв.м. - Фото 6
    Продается студия 22.9 кв.м. - Фото 7
    Продается студия 22.9 кв.м. - Фото 8
    студия, без ремонта, общая площадь 22.9м², жилая 15.8м², кухня 3.4м²

    Продается квартира студия в сданном жилом комплексе на 11 этаже одинадцатиэтажного дома. Общая площадь 22.90 кв. м. чистовая отделка от застройщика Жилой комплекс комфорт-класса «Невские Панорамы» находится в поселке им. Свердлова Всеволожского района,...
    • 22.9 м²
    • студия-ком
    • 11/11 эт.
    • монолит
    3 480 000 Р
    Агент
    +7 (812) Показать номер
    Посмотреть контакты
    1-к кв. Ленинградская область, Всеволожский район, пос. Щеглово 78 ... - Фото 1
    1-к кв. Ленинградская область, Всеволожский район, пос. Щеглово 78 ... - Фото 2
    1-комнатная квартира, общая площадь 36м², жилая 19м², кухня 7м²

    1705311 Продажа 1-комнатной квартиры в п. Щеглово. Дом крупнопанельный, 4/5 этаж, квартира теплая, большой балкон. Рядом парк, много зелени, хорошее транспотной сообщение. До электрички 15 мин пешком, до автобусной остановки 5 мин. Вся инфраструктура....
    • 36 м²
    • 1-ком
    • 4/5 эт.
    • панельный
    3 400 000 Р
    Агент
    +7 (911) Показать номер
    Посмотреть контакты

    Не нашли подходящего объявления?

    Оставьте заявку, и наши риэлторы подберут квартиру в районе Ивангорода

    (0)